東京都目黒区青葉台3丁目(渋谷駅)の賃貸:物件詳細
交通 所在地 |
駅徒歩 |
賃料 管理費等 |
敷金/保証金 礼金 |
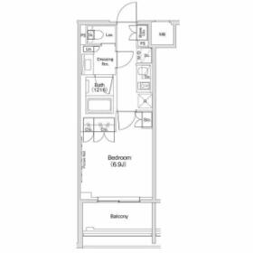
間取り 面積 |
物件種目 築年月 |
|
JR山手線/渋谷
東京都目黒区青葉台3丁目
|
11分
|
17.8万円
10,000円
|
1ヶ月 / なし
1ヶ月
|
1K
25.56m²
|
賃貸マンション
2022年12月(築3年1ヶ月)
|
ペット相談、楽器相談、常時ゴミ出し可能、IT重説対応物件
|
|
間取図
|
外観
建物外観を気になさる方へ、見た目の良い物件です
|
<
その他の画像
>
|
| 交通 | JR山手線 渋谷駅 徒歩11分 |
|---|
| その他の交通 | 京王井の頭線 神泉駅 徒歩6分 東急田園都市線 池尻大橋駅 徒歩12分 |
| 所在地 |
東京都目黒区青葉台3丁目
|
| 物件種目 |
賃貸マンション |
| 賃料 |
17.8万円 |
管理費等 |
10,000円 |
| 敷金 / 保証金 |
1ヶ月 / なし |
礼金 |
1ヶ月 |
| 敷引 |
- |
保証金償却 |
- |
| その他一時金 |
駆付けサポート24(2年):16,500円、鍵交換代等:33,000円~ |
保険等 |
要 |
| 維持費等 |
- |
| 間取り |
1K(洋6.9) |
専有面積 |
25.56m² |
| 築年月 |
2022年12月(築3年1ヶ月)
|
階建 / 階 |
11階建 / 6階 |
| 建物構造 |
鉄骨造 |
総戸数 |
- |
| 主要採光面 |
南西 |
駐車場 |
有 44,000円/月 |
| バイク置き場 |
有 11,000円/月 |
駐輪場 |
有 330円/月 |
| 建物名・部屋番号 |
ザ・パークハビオ渋谷クロス |
ペット |
相談 |
| アピールポイント |
セキュリティ面は、オートロック・TVインターホンなどを備え付けているので安心して暮らせます。室内設備は浴室乾燥機・洗面化粧台などが揃っており、とても充実しています。共用部には宅配ボックス・ゴミ出し24時間OKなどが揃っており、とても充実しています。収納はクロゼット・全居室収納など豊富なので、衣類や履き物の整理がしやすく便利です。こちらの物件のバルコニーの広さは4.6平米となっています。共用設備の充実している、楽しく生活できるマンションです。令和4年に建設された物件です。敷地内にはごみ置き場も設置されています。駅が周辺に2つあるので行動範囲が広がります。ニーズが高い1Kのお部屋、一人暮らしをする方にもおすすめです。こちらはエレベーター付きの物件です。 |
| リフォーム履歴 |
- |
| リノベーション履歴 |
- |
| 備考 |
賃貸保証等:加入要(初年度保証料:賃料等合計額の50%(最低保証料2万円)2年目以降:1年毎1万円)
管理形態/管理員の勤務形態:-/-
バルコニー:4.6m²
IT重説対応物件
室内設備は浴室乾燥機・洗面化粧台などが揃っているので、快適に過ごしやすいお部屋になります。共用部には宅配ボックス・ゴミ出し24時間OKなどが備わっておりとても充実しています。収納はクロゼット・全居室収納などが備え付けられているので、衣類や日用品の収納に重宝します。セキュリティ面は、オートロック・TVインターホンなどを備え付けているので安心して暮らせます。防犯カメラが設置されているため犯罪への抑止力となり、防犯対策として優れています。4.6㎡のバルコニーがある物件です。この物件は内観も綺麗で設備も充実した、2022年築となっています。よくお出かけをする方にも便利な、2駅利用可能なマンションです。2026年2月入居可能予定です。そこから新たな生活が始まります。エアコン付きなので暑い日も寒い日も安心して過ごせます。このマンションは駐輪場付きの物件です。
|
| エネルギー消費性能 |
- |
| 断熱性能 |
- |
| 目安光熱費 |
- |
| バス・トイレ |
バス・トイレ別、浴室乾燥機、オートバス、追焚機能、洗面所独立、洗面所、温水洗浄便座、トイレ |
| キッチン |
システムキッチン、2口コンロ、ガスコンロ可 |
| セキュリティー |
モニター付オートロック、オートロック、モニター付インターホン、防犯カメラ |
| 収納 |
全居室収納、収納スペース、クローゼット |
| 設備・サービス |
室内洗濯機置場、洗濯機置場、フローリング、都市ガス、エアコン、冷房 |
| TV・通信 |
インターネット対応、インターネット使用料無料、光ファイバー、CS、BS端子 |
| その他 |
宅配BOX、バイク置き場、バルコニー、駐輪場、エレベーター |
| 契約期間 |
2年 |
現況 |
居住中 |
| 条件等 |
- |
入居可能時期 |
2026年2月28日予定 |
| 更新料 |
新賃料 1ヶ月 |
物件番号 |
1131046219 |
| 情報公開日 |
2025年12月13日 |
次回更新予定日 |
2025年12月27日 |
| ケータイ用バーコード |
- スマートフォンでこの物件を見る
- スマートフォンからもこの物件をご覧になれます。
|
※「-」と表示されている項目については、情報提供会社にご確認ください。
| 周辺施設 |
TSU・SHI・MI(ツシミ) |
| 距離 |
577m |
写真を見る |
| 周辺施設 |
ライフ 目黒大橋店 |
| 距離 |
629m |
写真を見る |
| 周辺施設 |
ファミリーマート 目黒神泉町店 |
| 距離 |
62m |
写真を見る |
| 周辺施設 |
ニトリ 渋谷公園通り店 |
| 距離 |
1407m |
写真を見る |
ここから簡単にお問い合わせをすることができます。
(SSLでの暗号化での送信を希望されるお客さまは
こちら
よりお問い合わせください)
お問い合わせを行う前に
「個人情報の取り扱いについて」を必ずお読みください。
「個人情報の取り扱いについて」に同意いただいた場合は「上記にご同意の上 確認画面へ進む」のボタンをクリックしてください。
個人情報の取り扱いについて
皆さまが送付された個人情報はアットホーム(株)のサーバを経由し、お問い合わせ先の不動産会社にメールまたはFAXにて転送されるためアットホーム(株)にも保管されます。アットホーム(株)で保管された個人情報の取り扱いについては、【こちら】をご覧ください。
また、本画面でご記入いただいた個人情報は、お問い合わせ先の不動産会社でも保管します。 お問い合わせ先の不動産会社が保管する個人情報の取り扱いについては、不動産会社に直接お問い合わせください。
東京都知事免許(1)第107337号 |
|---|
- 交通:
- JR山手線/新橋駅 徒歩5分
- 東京都中央区銀座8丁目11-1 GINZA GS BLD.2 7階
- TEL:
- 03-6281-4770
- FAX:
- 03-6281-4771
- 所属団体:
- (公社)東京都宅地建物取引業協会会員(公社)首都圏不動産公正取引協議会加盟
取引態様:仲介  - 00271811
|
- スマートフォンで
この不動産会社を見る

|
- 提携サイト等より掲載されている物件情報につきましては、不動産会社詳細情報にリンクされていないものがあります。
- 物件に関するお問合せは、物件詳細ページの「情報提供会社」に表示されている不動産会社へ直接お願いいたします。
- 間取図は、現況を優先させていただきます。
- 映像は物件の一部を撮影したものです。物件の契約にあたっての最終判断はご自身の判断に基づいて行ってください。
- 仲介手数料について

アットホームは物件情報の適正化に努めております。
内容に誤りがある場合にはこちらへご連絡ください。