不動産 賃貸 マンション等の住宅情報:埼玉住まい情報


東京都板橋区大山金井町(大山駅)の賃貸:物件詳細

  • 物件詳細
  • 情報の見方
  • 印刷用画面
交通
所在地
駅徒歩 賃料
管理費等
敷金/保証金
礼金
間取り
面積
物件種目
築年月

東武東上線/大山

東京都板橋区大山金井町

7分

16.5万円

15,000円

なし / なし

なし

1DK

40.40m²

賃貸マンション

2025年12月
新築 

おすすめPOINTペット相談、常時ゴミ出し可能、最上階、高齢者相談、ルームシェア可、二人入居可、IT重説対応物件

おすすめコメント  スタッフ: A・T

収納はシューズボックス・クロゼットなど豊富なので、衣類や履き物の整理がしやすく便利です。セキュリティ面は、TVインターホン・オートロックなど充実しているので安心して生活できます。

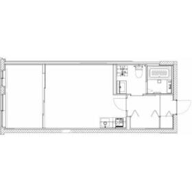
間取図

間取図

外観

外観

<
その他の画像
  • バス/シャワー
  • トイレ
  • 収納
  • 洗面
  • 販売店
  • コンビニ
  • コンビニ
  • 販売店
  • コンビニ
  • 公園
  • 病院
  • 販売店
>
    • とりあえず保存
    • お問い合わせ
    交通

    東武東上線 大山駅 徒歩7分

    その他の交通

    都営三田線 板橋区役所前駅 徒歩12分

    東武東上線 下板橋駅 徒歩12分

    所在地 東京都板橋区大山金井町
    物件種目 賃貸マンション
    賃料 16.5万円 管理費等 15,000円
    敷金 / 保証金 なし / なし 礼金 なし
    敷引 保証金償却
    その他一時金 契約事務手数料:11,000円、消臭抗菌サービス:11,000円、室内清掃費用:49,500円 保険等
    維持費等 RBI安心サポート( 家賃保証月額料金+家財保険+:2,700円/月 クレジットカード決済 初期費用可
    間取り 1DK 専有面積 40.40m²
    築年月 2025年12月 新築  階建 / 階 5階建 / 5階
    建物構造 RC 総戸数
    主要採光面 西 駐車場
    バイク置き場 駐輪場
    建物名・部屋番号 GENOVIA大山 502 ペット 相談
    リフォーム履歴
    リノベーション履歴
    備考
    賃貸保証等:加入要(初回保証料:50%(ペット飼育時100%) ★RBI安心サポート: 家賃保証月額料金+家財保険+家賃引落手数料+mamorocca →全て付帯して2,700円/月(税込))
    管理形態/管理員の勤務形態:-/-
    IT重説対応物件
    セブンイレブン 板橋大山店まで徒歩5分と近場にコンビニがあるのもポイント。共用部にはゴミ出し24時間OK・宅配ボックスなどが揃っております。風通しが良好なので、夏も涼しい風がはいってきます。失敗したくないお部屋探しなら板橋区や東武東上線大山付近に強い当社へご連絡ください。信頼できるスタッフが対応致します。
    ペット飼育可(大型犬・猫:敷金積み増し無し/多頭飼い・大型犬:基本敷金1ヶ月※頭数によって変動あり)。
    短期解約違約金:1年未満は総賃料の1ヶ月分。
    エネルギー消費性能
    断熱性能
    目安光熱費
    バス・トイレ バス・トイレ別、浴室乾燥機、洗面所独立、洗面所、シャワー、温水洗浄便座、トイレ
    キッチン システムキッチン、2口コンロ、ガスコンロ可
    セキュリティー モニター付オートロック、オートロック、モニター付インターホン、防犯カメラ
    収納 収納スペース、クローゼット、シューズボックス
    設備・サービス 室内洗濯機置場、洗濯機置場、都市ガス給湯、給湯、フローリング、都市ガス、エアコン
    TV・通信 インターネット対応、インターネット使用料無料、CS、BS端子
    その他 宅配BOX
    契約期間 2年 現況 空家
    条件等 入居可能時期 即時
    仲介手数料 1.1ヶ月    
    更新料 新賃料 1ヶ月 物件番号 1131194122
    情報公開日 2026年2月5日 次回更新予定日 2026年2月27日
    ケータイ用バーコード

    QRコード

    スマートフォンでこの物件を見る
    スマートフォンからもこの物件をご覧になれます。
    ※「-」と表示されている項目については、情報提供会社にご確認ください。

    この物件の周辺情報

    周辺施設 まいばすけっと 板橋熊野町店
    距離 275m
    周辺施設 セブンイレブン 板橋熊野町店
    距離 262m
    周辺施設 ファミリーマート 金井窪山手通り店
    距離 327m
    周辺施設 まいばすけっと 大山金井町店
    距離 358m
    周辺施設 セブンイレブン 板橋大山店
    距離 356m
    周辺施設 豊島区立池本だんだん公園
    距離 665m
    周辺施設 東京都保健医療公社豊島病院(公益財団法人)
    距離 1214m
    周辺施設 遊座大山商店街
    距離 549m

    クイックお問い合わせ

    ここから簡単にお問い合わせをすることができます。
    (SSLでの暗号化での送信を希望されるお客さまは こちら よりお問い合わせください)

    お問い合わせ内容(必須)
    お名前(必須) 姓  名 
    メールアドレス(必須)
    ※携帯電話のメールアドレスをご入力される方はこちらをご確認ください
    電話番号(必須)
    - -

    ※入力いただいた電話番号へSMSまたは音声でパスワードをご連絡します。

    携帯電話の番号をご入力の方へ

    携帯電話の番号をご入力の方へ
    確認画面にて送信ボタンをクリックするとSMSが携帯電話に届きます。
    そのSMSに記載のパスワード(認証番号)を入力し、お問い合わせを完了してください。
    尚、SMSの送信者番号は 0005 202 760 となります。
    これはアットホームの固定番号です。

    備考欄 希望条件、物件案内希望日、質問などがございましたらご記入ください。
    お問い合わせを行う前に「個人情報の取り扱いについて」を必ずお読みください。
    「個人情報の取り扱いについて」に同意いただいた場合は「上記にご同意の上 確認画面へ進む」のボタンをクリックしてください。

    個人情報の取り扱いについて

    皆さまが送付された個人情報はアットホーム(株)のサーバを経由し、お問い合わせ先の不動産会社にメールまたはFAXにて転送されるためアットホーム(株)にも保管されます。アットホーム(株)で保管された個人情報の取り扱いについては、【こちら】をご覧ください。
    また、本画面でご記入いただいた個人情報は、お問い合わせ先の不動産会社でも保管します。 お問い合わせ先の不動産会社が保管する個人情報の取り扱いについては、不動産会社に直接お問い合わせください。

    情報提供会社

    情報提供会社

    ハウス・トゥ・ハウス・ネットサービス(株) 板橋区役所前店

    国土交通大臣免許(4)第7400号

    交通:
    都営三田線/板橋区役所前駅 徒歩4分
    東京都板橋区仲宿46-12 
    TEL:
    03-6915-5666
    FAX:
    03-6915-5676
    所属団体:
    (公社)全日本不動産協会会員
    (公社)首都圏不動産公正取引協議会加盟

    取引態様:仲介

    • 会社情報
    • 00277079
    スマートフォンで
    この不動産会社を見る
    QRコード
    • とりあえず保存
    • お問い合わせ
    • 提携サイト等より掲載されている物件情報につきましては、不動産会社詳細情報にリンクされていないものがあります。
    • 物件に関するお問合せは、物件詳細ページの「情報提供会社」に表示されている不動産会社へ直接お願いいたします。
    • 間取図は、現況を優先させていただきます。
    • 映像は物件の一部を撮影したものです。物件の契約にあたっての最終判断はご自身の判断に基づいて行ってください。
    • 仲介手数料について仲介手数料

    アットホームは物件情報の適正化に努めております。 内容に誤りがある場合にはこちらへご連絡ください。

    【埼玉住まい情報】では、日本全国の物件から賃貸マンションや賃貸アパート・賃貸一戸建て等の賃貸住宅情報、新築マンション・分譲マンションや中古マンション等の売買マンション情報、新築一戸建てや中古一戸建てなどの戸建住宅、 土地など、総合的な不動産住宅情報検索サービスを提供致します。
    【埼玉住まい情報】から、選りすぐりの不動産物件を探してみましょう。

    【免責事項】
    このコーナーの運営はアットホーム株式会社(https://www.athome.co.jp/)が行っています。
    このコーナーに掲載している物件情報は、「アットホーム不動産情報ネットワーク」に加盟する不動産会社等(情報提供元)から提供されています。信頼性の高い情報提供が行えるよう、最大限の努力をしておりますが、その内容を保証するものではありません。 利用者のみなさまと各情報提供元との取引に起因する損害および情報が掲載されたことに起因する損害等については、株式会社イーシティ埼玉、およびアットホームは一切責任を負いません。
    各物件情報の内容や画像等はすべて現況を優先させていただきます。
    お取引等(お取引の準備、資金調達等を含みます)の際には、内容や契約条件等について、各情報提供元より十分な説明を受け、ご自身でご確認の上、判断してください。
    このコーナーへの物件情報のご掲載、その他不動産業務ソリューション等についての不動産会社様のお問合せはこちらからお願いいたします。

    物件画像: