宮城県仙台市青葉区国分町3丁目(勾当台公園駅)の賃貸:物件詳細
交通 所在地 |
駅徒歩 |
賃料 管理費等 |
敷金/保証金 礼金 |
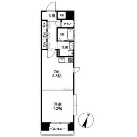
間取り 面積 |
物件種目 築年月 |
|
仙台市南北線/勾当台公園
宮城県仙台市青葉区国分町3丁目
|
8分
|
7.3万円
5,000円
|
1ヶ月 / なし
1ヶ月
|
ワンルーム
35.86m²
|
賃貸マンション
2005年4月(築20年11ヶ月)
|
角部屋、南向き、24時間換気システム、保証人不要
|
|
間取図
|
外観
|
<
その他の画像
>
|
| 交通 | 仙台市南北線 勾当台公園駅 徒歩8分 |
|---|
| その他の交通 | 仙台市南北線 北四番丁駅 徒歩11分 |
| 所在地 |
宮城県仙台市青葉区国分町3丁目
|
| 物件種目 |
賃貸マンション |
| 賃料 |
7.3万円 |
管理費等 |
5,000円 |
| 敷金 / 保証金 |
1ヶ月 / なし |
礼金 |
1ヶ月 |
| 敷引 |
- |
保証金償却 |
- |
| その他一時金 |
なし、鍵交換代等:17,600円~ |
保険等 |
要 2年 18,000円 |
| 維持費等 |
- |
| 間取り |
ワンルーム(洋7.2 DK6.3) |
専有面積 |
35.86m² |
| 築年月 |
2005年4月(築20年11ヶ月)
|
階建 / 階 |
10階建 / 9階 |
| 建物構造 |
RC |
総戸数 |
45戸 |
| 主要採光面 |
南 |
駐車場 |
有 25,000円/月 |
| バイク置き場 |
空無 |
駐輪場 |
有 無料 |
| 建物名・部屋番号 |
定禅寺ガーデンスクエア 906 |
ペット |
-
|
| アピールポイント |
一部リノベーション工事をいたしました! |
| リフォーム履歴 |
- |
| リノベーション履歴 |
- |
| 備考 |
賃貸保証等:利用可(初回家賃総額の50% 継続保証料毎月800円)
管理形態/管理員の勤務形態:-/-
|
| エネルギー消費性能 |
- |
| 断熱性能 |
- |
| 目安光熱費 |
- |
| バス・トイレ |
バス・トイレ別、シャワー付洗面化粧台、洗面所独立、温水洗浄便座 |
| キッチン |
ガスコンロ付 |
| セキュリティー |
オートロック、モニター付インターホン、防犯カメラ |
| 収納 |
クローゼット、シューズボックス |
| 設備・サービス |
室内洗濯機置場、洗濯機置場、給湯、都市ガス、エアコン |
| TV・通信 |
BS端子 |
| その他 |
宅配BOX、バイク置き場、バルコニー、駐輪場、エレベーター |
| 契約期間 |
2年 |
現況 |
空家 |
| 条件等 |
- |
入居可能時期 |
即時 |
| 更新料 |
なし |
物件番号 |
1131702610 |
| 情報公開日 |
2026年2月4日 |
次回更新予定日 |
2026年2月18日 |
| ケータイ用バーコード |
- スマートフォンでこの物件を見る
- スマートフォンからもこの物件をご覧になれます。
|
※「-」と表示されている項目については、情報提供会社にご確認ください。
| 周辺施設 |
ローソン仙台春日町店 |
| 距離 |
161m |
写真を見る |
| 周辺施設 |
セブンイレブン仙台北一番丁通店 |
| 距離 |
220m |
写真を見る |
| 周辺施設 |
ツルハドラッグ仙台支倉店 |
| 距離 |
500m |
写真を見る |
| 周辺施設 |
仙台木町通郵便局 |
| 距離 |
347m |
写真を見る |
| 周辺施設 |
ドン・キホーテ仙台晩翠通り店 |
| 距離 |
435m |
写真を見る |
ここから簡単にお問い合わせをすることができます。
(SSLでの暗号化での送信を希望されるお客さまは
こちら
よりお問い合わせください)
お問い合わせを行う前に
「個人情報の取り扱いについて」を必ずお読みください。
「個人情報の取り扱いについて」に同意いただいた場合は「上記にご同意の上 確認画面へ進む」のボタンをクリックしてください。
個人情報の取り扱いについて
皆さまが送付された個人情報はアットホーム(株)のサーバを経由し、お問い合わせ先の不動産会社にメールまたはFAXにて転送されるためアットホーム(株)にも保管されます。アットホーム(株)で保管された個人情報の取り扱いについては、【こちら】をご覧ください。
また、本画面でご記入いただいた個人情報は、お問い合わせ先の不動産会社でも保管します。 お問い合わせ先の不動産会社が保管する個人情報の取り扱いについては、不動産会社に直接お問い合わせください。
宮城県知事免許(5)第5157号 |
|---|
- 交通:
- 仙台市南北線/勾当台公園駅 徒歩7分
- 宮城県仙台市青葉区国分町3丁目11-9 アルファオフィスビル
- TEL:
- 022-716-0121
- FAX:
- 022-726-7357
- 所属団体:
- (公社)宮城県宅地建物取引業協会会員東北地区不動産公正取引協議会加盟
取引態様:仲介  - 20001888
|
- スマートフォンで
この不動産会社を見る

|
- 提携サイト等より掲載されている物件情報につきましては、不動産会社詳細情報にリンクされていないものがあります。
- 物件に関するお問合せは、物件詳細ページの「情報提供会社」に表示されている不動産会社へ直接お願いいたします。
- 間取図は、現況を優先させていただきます。
- 映像は物件の一部を撮影したものです。物件の契約にあたっての最終判断はご自身の判断に基づいて行ってください。
- 仲介手数料について

アットホームは物件情報の適正化に努めております。
内容に誤りがある場合にはこちらへご連絡ください。