神奈川県横浜市中区石川町4丁目(石川町駅)の賃貸:物件詳細
				
					
					
				
														
	
		
			
				交通 所在地 | 
				駅徒歩 | 
				賃料 管理費等 | 
				敷金/保証金 礼金 | 
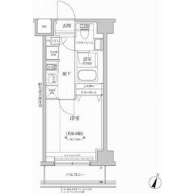
				間取り 面積 | 
				物件種目 築年月 | 
			
		
		
			
								| 
					 JR京浜東北線/石川町
											 
					神奈川県横浜市中区石川町4丁目 
				 | 
								
					 5分 
				 | 
								
					 9.2万円 
					10,000円 
				 | 
								
					 なし / なし 
					9.2万円 
				 | 
								
					 1K 
					21.10m² 
				 | 
								
					 賃貸マンション 
					2025年7月
										 
																  
															 
				 | 
			
						
				 ペット相談、分譲タイプ、常時ゴミ出し可能、最上階、南向き、24時間換気システム、外観タイル張り
  | 
			
					
	
		
		
		
					| 
			 間取図 
			
			
			
			
			
		 | 
		
			 外観 
			
			
			
			
			
		 | 
				
		
		
			
				
										<
										
						
							 
							その他の画像
						 
					 
					
										>
									 
				
			 
		 | 
	
				
 
	
		
			
																			          | 交通 | JR京浜東北線 石川町駅 徒歩5分  | 
|---|
| その他の交通 | ブルーライン 伊勢佐木長者町駅 徒歩10分 JR根岸線 関内駅 徒歩12分  | 
			
				| 所在地 | 
				
					神奈川県横浜市中区石川町4丁目
				 | 
			
			
				| 物件種目 | 
				賃貸マンション | 
			
		
		
			
				| 賃料 | 
				9.2万円 | 
				管理費等 | 
				10,000円 | 
			
			
				| 敷金 / 保証金 | 
				なし / なし | 
				礼金 | 
				9.2万円 | 
			
			
				| 敷引 | 
				- | 
				保証金償却 | 
				- | 
			
			
				| その他一時金 | 
				顔認証登録費用:5,500円、安心入居サポート:17,600円 | 
				保険等 | 
				要 2年 20,000円 | 
			
						
				| 維持費等 | 
				- | 
			
					
		
			
				| 間取り | 
				1K(洋室6) | 
				専有面積 | 
				21.10m² | 
			
			
				| 築年月 | 
				2025年7月
									  
												 | 
				階建 / 階 | 
				7階建 / 7階 | 
			
			
				| 建物構造 | 
				RC | 
				総戸数 | 
				- | 
			
			
				| 主要採光面 | 
				南 | 
				駐車場 | 
				無 | 
			
			
				| バイク置き場 | 
				無 | 
				駐輪場 | 
				- | 
			
			
				| 建物名・部屋番号 | 
				RELUXIA横濱元町 701 | 
				ペット | 
				
													相談												 | 
			
						
				| リフォーム履歴 | 
				- | 
			
			
				| リノベーション履歴 | 
				- | 
			
			
				| 備考 | 
				
					 
																	賃貸保証等:加入要(その他 【にじいろインシュア・ジェイリース等】賃料等の50%、【GTN】賃料等の70%)
											 						管理形態/管理員の勤務形態:-/巡回
											 						管理人巡回
											 						図面方位等、現況優先、諸条件要確認 
◆建物全館禁煙※但し、専有部分においては、退出時に天井壁クロスの張り替え(借主全額負担)を前提に容認します 
◆事務所使用不可 
◆駐車場・駐輪場:有、空き等詳細要確認 
◆退去時ルームクリーニング・エアコンクリーニング等の費用負担有 
◆短期解約違約金有:1年未満で賃料等の1ヶ月分 
◆解約予告:2ヶ月前
										 
					
				 | 
			
		
				
		
		| エネルギー消費性能 | 
		- | 
	
	
		| 断熱性能 | 
		- | 
	
	
		| 目安光熱費 | 
		- | 
	
	
		
									
				| バス・トイレ | 
				バス・トイレ別、浴室乾燥機、シャワー、温水洗浄便座、トイレ | 
			
						
				| キッチン | 
				システムキッチン、2口コンロ、ガスコンロ付 | 
			
						
				| セキュリティー | 
				モニター付オートロック、オートロック、モニター付インターホン、ディンプルキー、防犯カメラ | 
			
						
				| 収納 | 
				収納スペース、クローゼット、シューズボックス | 
			
						
				| 設備・サービス | 
				室内洗濯機置場、洗濯機置場、給湯、フローリング、都市ガス、エアコン | 
			
						
				| TV・通信 | 
				インターネット使用料無料、CS、BS端子 | 
			
						
				| その他 | 
				宅配BOX、バルコニー、エレベーター | 
			
					
		
			
				| 契約期間 | 
				2年 | 
				現況 | 
				空家 | 
			
			
				| 条件等 | 
				- | 
				入居可能時期 | 
				即時 | 
			
						
				| 仲介手数料 | 
				10.12万円 | 
				  | 
				  | 
			
						
				| 更新料 | 
				新賃料 1ヶ月 | 
				物件番号 | 
				1131934311 | 
			
			
				| 情報公開日 | 
				2025年7月28日 | 
				次回更新予定日 | 
				2025年11月12日 | 
			
						
				| ケータイ用バーコード | 
				
				
					
					
						
							- スマートフォンでこの物件を見る
 
							- スマートフォンからもこの物件をご覧になれます。
 
						 
					 
				 
				 | 
			
					
	 
	 									※「-」と表示されている項目については、情報提供会社にご確認ください。
						
	
			
			
			
				
					
						
							| 周辺施設 | 
							まいばすけっと横浜長者町2丁目店 | 
						
						
							| 距離 | 
							435m | 
							写真を見る | 						
					
				
			 
		 
					
			
				
					
						
							| 周辺施設 | 
							ファミリーマート横浜石川町店 | 
						
						
							| 距離 | 
							173m | 
							写真を見る | 						
					
				
			 
		 
		 
				
			
			
				
					
						
							| 周辺施設 | 
							石川町駅前郵便局 | 
						
						
							| 距離 | 
							459m | 
							写真を見る | 						
					
				
			 
		 
					
			
				
					
						
							| 周辺施設 | 
							山手イタリア山庭園 | 
						
						
							| 距離 | 
							554m | 
							写真を見る | 						
					
				
			 
		 
		 
				
			
			
				
					
						
							| 周辺施設 | 
							横浜掖済会病院 | 
						
						
							| 距離 | 
							531m | 
							写真を見る | 						
					
				
			 
		 
					
			
				
					
						
							| 周辺施設 | 
							ドラッグストアスマイル石川町店 | 
						
						
							| 距離 | 
							634m | 
							写真を見る | 						
					
				
			 
		 
		 
		 									
												
					
					  ここから簡単にお問い合わせをすることができます。
(SSLでの暗号化での送信を希望されるお客さまは
													こちら
											  よりお問い合わせください)
					  
					
						
						
					
					お問い合わせを行う前に
「個人情報の取り扱いについて」を必ずお読みください。
「個人情報の取り扱いについて」に同意いただいた場合は「上記にご同意の上 確認画面へ進む」のボタンをクリックしてください。 
 
					
					
						個人情報の取り扱いについて
						皆さまが送付された個人情報はアットホーム(株)のサーバを経由し、お問い合わせ先の不動産会社にメールまたはFAXにて転送されるためアットホーム(株)にも保管されます。アットホーム(株)で保管された個人情報の取り扱いについては、【こちら】をご覧ください。
						また、本画面でご記入いただいた個人情報は、お問い合わせ先の不動産会社でも保管します。 お問い合わせ先の不動産会社が保管する個人情報の取り扱いについては、不動産会社に直接お問い合わせください。
					 
				 
				
														
				  
				  
					神奈川県知事免許(11)第12569号  | 
|---|
- 交通:
 - JR京浜東北線/石川町駅 徒歩2分
 - 神奈川県横浜市中区石川町2丁目66 
 - TEL:
 - 045-252-4480
 - FAX:
 - 045-252-4475
 - 所属団体:
 - (公社)神奈川県宅地建物取引業協会会員(公社)首都圏不動産公正取引協議会加盟
 
 取引態様:仲介  - 00020020
 
  | 
						  						  
							
							  
								- スマートフォンで
 この不動産会社を見る 
								    
							   
							 
						   | 
						  						
					  
					 
				   
				 
							
						
												
			
					
- 提携サイト等より掲載されている物件情報につきましては、不動産会社詳細情報にリンクされていないものがあります。
 
- 物件に関するお問合せは、物件詳細ページの「情報提供会社」に表示されている不動産会社へ直接お願いいたします。
 
- 間取図は、現況を優先させていただきます。
 
- 映像は物件の一部を撮影したものです。物件の契約にあたっての最終判断はご自身の判断に基づいて行ってください。
 
- 仲介手数料について

 
アットホームは物件情報の適正化に努めております。
内容に誤りがある場合にはこちらへご連絡ください。