神奈川県大和市福田1丁目(桜ヶ丘駅)の賃貸:物件詳細
交通 所在地 |
駅徒歩 |
賃料 管理費等 |
敷金/保証金 礼金 |
間取り 面積 |
物件種目 築年月 |
|
小田急江ノ島線/桜ヶ丘
神奈川県大和市福田1丁目
|
4分
|
3.3万円
10,000円
|
なし / なし
なし
|
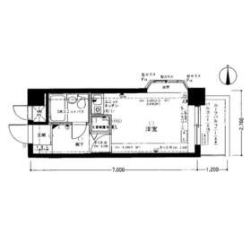
1K
18.90m²
|
賃貸マンション
1988年8月(築37年7ヶ月)
|
分譲タイプ、角部屋、最上階、二人入居可、2面採光
|
|
間取図
|
外観
|
その他の画像
|
| 交通 | 小田急江ノ島線 桜ヶ丘駅 徒歩4分 |
|---|
| その他の交通 | 小田急江ノ島線 大和駅 徒歩28分 相鉄本線 大和駅 徒歩29分 |
| 所在地 |
神奈川県大和市福田1丁目
|
| 物件種目 |
賃貸マンション |
| 賃料 |
3.3万円 |
管理費等 |
10,000円 |
| 敷金 / 保証金 |
なし / なし |
礼金 |
なし |
| 敷引 |
- |
保証金償却 |
- |
| その他一時金 |
契約事務手数料:5,500円、退去時ハウスクリーニング:38,500円、退去時エアコン分解清掃:13,200円、鍵交換代等:22,000円~ |
保険等 |
要 2年 20,000円 |
| 維持費等 |
24H生活サポート:1,650円/月 |
| 間取り |
1K(洋室6) |
専有面積 |
18.90m² |
| 築年月 |
1988年8月(築37年7ヶ月)
|
階建 / 階 |
6階建 / 6階 |
| 建物構造 |
RC |
総戸数 |
- |
| 主要採光面 |
東 |
駐車場 |
無 |
| バイク置き場 |
有 |
駐輪場 |
有 |
| 建物名・部屋番号 |
ライオンズマンション桜ヶ丘駅前 |
ペット |
-
|
| リフォーム履歴 |
- |
| リノベーション履歴 |
- |
| 備考 |
賃貸保証等:加入要(初回契約時:50%、月額:1.5%)
管理形態/管理員の勤務形態:-/-
・短期解約違約金有 1年未満の解約で総賃料の3.5ヶ月分
・解約予告2ヶ月前
・短期解約違約金有 1年未満の解約で総賃料の3.5ヶ月分
・解約予告2ヶ月前
|
| エネルギー消費性能 |
- |
| 断熱性能 |
- |
| 目安光熱費 |
- |
| バス・トイレ |
洗面台、バス・トイレ同室、トイレ |
| キッチン |
システムキッチン、電気コンロ |
| セキュリティー |
モニター付オートロック、オートロック、モニター付インターホン |
| 収納 |
シューズボックス |
| 設備・サービス |
室内洗濯機置場、洗濯機置場、出窓、都市ガス、エアコン |
| TV・通信 |
光ファイバー、ケーブルTV、CS、BS端子 |
| その他 |
宅配BOX、バイク置き場、バルコニー、駐輪場、エレベーター |
| 契約期間 |
2年 |
現況 |
空家 |
| 条件等 |
- |
入居可能時期 |
即時 |
| 更新料 |
新賃料 1ヶ月 |
物件番号 |
1132406320 |
| 情報公開日 |
2026年2月1日 |
次回更新予定日 |
2026年2月15日 |
| ケータイ用バーコード |
- スマートフォンでこの物件を見る
- スマートフォンからもこの物件をご覧になれます。
|
※「-」と表示されている項目については、情報提供会社にご確認ください。
ここから簡単にお問い合わせをすることができます。
(SSLでの暗号化での送信を希望されるお客さまは
こちら
よりお問い合わせください)
お問い合わせを行う前に
「個人情報の取り扱いについて」を必ずお読みください。
「個人情報の取り扱いについて」に同意いただいた場合は「上記にご同意の上 確認画面へ進む」のボタンをクリックしてください。
個人情報の取り扱いについて
皆さまが送付された個人情報はアットホーム(株)のサーバを経由し、お問い合わせ先の不動産会社にメールまたはFAXにて転送されるためアットホーム(株)にも保管されます。アットホーム(株)で保管された個人情報の取り扱いについては、【こちら】をご覧ください。
また、本画面でご記入いただいた個人情報は、お問い合わせ先の不動産会社でも保管します。 お問い合わせ先の不動産会社が保管する個人情報の取り扱いについては、不動産会社に直接お問い合わせください。
東京都知事免許(5)第84396号 |
|---|
- 交通:
- JR総武線/信濃町駅 徒歩5分
- 東京都新宿区信濃町10-11 リアルワンビル3.4F
- TEL:
- 03-5925-8782
- FAX:
- 03-3341-1777
- 所属団体:
- (公社)全日本不動産協会会員(公社)首都圏不動産公正取引協議会加盟
取引態様:代理  - 00786204
|
- スマートフォンで
この不動産会社を見る

|
- 提携サイト等より掲載されている物件情報につきましては、不動産会社詳細情報にリンクされていないものがあります。
- 物件に関するお問合せは、物件詳細ページの「情報提供会社」に表示されている不動産会社へ直接お願いいたします。
- 間取図は、現況を優先させていただきます。
- 映像は物件の一部を撮影したものです。物件の契約にあたっての最終判断はご自身の判断に基づいて行ってください。
- 仲介手数料について

アットホームは物件情報の適正化に努めております。
内容に誤りがある場合にはこちらへご連絡ください。