神奈川県横浜市中区末吉町2丁目(日ノ出町駅)の賃貸:物件詳細
交通 所在地 |
駅徒歩 |
賃料 管理費等 |
敷金/保証金 礼金 |
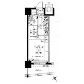
間取り 面積 |
物件種目 築年月 |
|
京急本線/日ノ出町
神奈川県横浜市中区末吉町2丁目
|
6分
|
7万円
15,000円
|
なし / なし
1ヶ月
|
1K
23.10m²
|
賃貸マンション
2008年3月(築17年10ヶ月)
|
分譲タイプ、高齢者相談、24時間換気システム、IT重説対応物件、保証人不要
|
|
間取図
|
外観
|
<
その他の画像
>
|
| 交通 | 京急本線 日ノ出町駅 徒歩6分 |
|---|
| その他の交通 | JR京浜東北線 桜木町駅 徒歩16分 ブルーライン 阪東橋駅 徒歩9分 |
| 所在地 |
神奈川県横浜市中区末吉町2丁目
|
| 物件種目 |
賃貸マンション |
| 賃料 |
7万円 |
管理費等 |
15,000円 |
| 敷金 / 保証金 |
なし / なし |
礼金 |
1ヶ月 |
| 敷引 |
- |
保証金償却 |
- |
| その他一時金 |
室内抗菌代(必須):13,000円、鍵交換費用(必須):33,000円 |
保険等 |
不要 |
| 維持費等 |
ベルプラス(必須):2,200円/月 |
| 間取り |
1K(洋6.7) |
専有面積 |
23.10m² |
| 築年月 |
2008年3月(築17年10ヶ月)
|
階建 / 階 |
9階建 / 6階 |
| 建物構造 |
RC |
総戸数 |
- |
| 主要採光面 |
|
駐車場 |
無 |
| バイク置き場 |
- |
駐輪場 |
有 |
| 建物名・部屋番号 |
グランフォース横浜伊勢佐木町 603 |
ペット |
-
|
| アピールポイント |
【お部屋探しはへやなび!】
ご入居に関してのお困り事、お任せ!
◆ご内見は現地待ち合わせも可能です!もしくはご来店後に数件まとめてご案内(車)いたします!
◆公式LINEでのご対応も可能
◆クレジット決済も全物件ご対応できます!
【当店限定!初期費用分割システム(スムーズ)対応可能】
※分割3回~46回払いまでご対応(3回払いは金利0%)※規定有 |
| リフォーム履歴 |
- |
| リノベーション履歴 |
- |
| 備考 |
賃貸保証等:加入要(初回契約時:50%、[リロ:月1,000円][JRAG:1万円/年(月330円)] [カーサ:月1%][ジャックス:月額保証料1%])
管理形態/管理員の勤務形態:-/-
IT重説対応物件
短期解約違約金:1年未満は総賃料2ヶ月分、1年以上1.5年未満は総賃料1.5ヶ月分
物件の詳細や諸条件(入居時期・保証人・初期費用・分割・入居審査・交渉事など)について、何でもご相談ください。LINEでもご対応可能です。
初期費用の分割(スムーズ) は、事前審査可能!
・クレジットカード持ってなくても◎
・3回~24回払いまでご対応(3回払いは金利0%)※規定有
|
| エネルギー消費性能 |
- |
| 断熱性能 |
- |
| 目安光熱費 |
- |
| バス・トイレ |
バス・トイレ別、浴室乾燥機、洗面所独立、洗面所、温水洗浄便座、トイレ |
| キッチン |
システムキッチン、2口コンロ、ガスコンロ可 |
| セキュリティー |
モニター付オートロック、オートロック、モニター付インターホン、防犯カメラ |
| 収納 |
収納スペース、クローゼット、シューズボックス |
| 設備・サービス |
室内洗濯機置場、洗濯機置場、フローリング、都市ガス、エアコン |
| TV・通信 |
CS、BS端子 |
| その他 |
宅配BOX、バルコニー、駐輪場、エレベーター |
| 契約期間 |
2年 |
現況 |
居住中 |
| 条件等 |
- |
入居可能時期 |
2026年2月上旬予定 |
| 更新料 |
新賃料 1.5ヶ月 |
物件番号 |
1132818219 |
| 情報公開日 |
2025年12月15日 |
次回更新予定日 |
2025年12月29日 |
| ケータイ用バーコード |
- スマートフォンでこの物件を見る
- スマートフォンからもこの物件をご覧になれます。
|
※「-」と表示されている項目については、情報提供会社にご確認ください。
| 周辺施設 |
ミニストップ 黄金橋店 |
| 距離 |
48m |
写真を見る |
| 周辺施設 |
まいばすけっと 末吉町2丁目店 |
| 距離 |
125m |
写真を見る |
| 周辺施設 |
セブンイレブン 横浜伊勢佐木町4丁目店 |
| 距離 |
254m |
写真を見る |
| 周辺施設 |
ローソンストア100 LS横浜初音町店 |
| 距離 |
277m |
写真を見る |
| 周辺施設 |
大岡川(旭橋) |
| 距離 |
237m |
写真を見る |
| 周辺施設 |
サミットストア 横浜曙町店 |
| 距離 |
272m |
写真を見る |
| 周辺施設 |
ハックドラッグ曙町店 |
| 距離 |
283m |
写真を見る |
ここから簡単にお問い合わせをすることができます。
(SSLでの暗号化での送信を希望されるお客さまは
こちら
よりお問い合わせください)
お問い合わせを行う前に
「個人情報の取り扱いについて」を必ずお読みください。
「個人情報の取り扱いについて」に同意いただいた場合は「上記にご同意の上 確認画面へ進む」のボタンをクリックしてください。
個人情報の取り扱いについて
皆さまが送付された個人情報はアットホーム(株)のサーバを経由し、お問い合わせ先の不動産会社にメールまたはFAXにて転送されるためアットホーム(株)にも保管されます。アットホーム(株)で保管された個人情報の取り扱いについては、【こちら】をご覧ください。
また、本画面でご記入いただいた個人情報は、お問い合わせ先の不動産会社でも保管します。 お問い合わせ先の不動産会社が保管する個人情報の取り扱いについては、不動産会社に直接お問い合わせください。
神奈川県知事免許(1)第31349号 |
|---|
- 交通:
- JR京浜東北線/関内駅 徒歩1分
- 神奈川県横浜市中区港町4丁目16 リアル関内ビル3F
- TEL:
- 045-263-6366
- FAX:
- 045-263-6375
- 所属団体:
- (公社)全日本不動産協会会員(公社)首都圏不動産公正取引協議会加盟
取引態様:仲介  - 00270745
|
- スマートフォンで
この不動産会社を見る

|
- 提携サイト等より掲載されている物件情報につきましては、不動産会社詳細情報にリンクされていないものがあります。
- 物件に関するお問合せは、物件詳細ページの「情報提供会社」に表示されている不動産会社へ直接お願いいたします。
- 間取図は、現況を優先させていただきます。
- 映像は物件の一部を撮影したものです。物件の契約にあたっての最終判断はご自身の判断に基づいて行ってください。
- 仲介手数料について

アットホームは物件情報の適正化に努めております。
内容に誤りがある場合にはこちらへご連絡ください。