東京都江東区古石場2丁目(門前仲町駅)の賃貸:物件詳細
交通 所在地 |
駅徒歩 |
賃料 管理費等 |
敷金/保証金 礼金 |
間取り 面積 |
物件種目 築年月 |
|
東京メトロ東西線/門前仲町
東京都江東区古石場2丁目
|
10分
|
25.5万円
20,000円
|
1ヶ月 / なし
1ヶ月
|
3LDK
82.27m²
|
賃貸マンション
2002年7月(築23年6ヶ月)
|
ペット相談、分譲タイプ、フロントサービス、常時ゴミ出し可能、南向き、高齢者相談、二人入居可、管理人常駐、IT重説対応物件、保証人不要
|
|
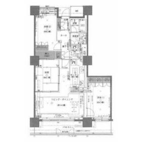
間取図
|
外観
外観は落ち着いています
|
<
その他の画像
>
|
| 交通 | 東京メトロ東西線 門前仲町駅 徒歩10分 |
|---|
| その他の交通 | JR京葉線 越中島駅 徒歩10分 東京メトロ有楽町線 豊洲駅 徒歩21分 |
| 所在地 |
東京都江東区古石場2丁目
|
| 物件種目 |
賃貸マンション |
| 賃料 |
25.5万円 |
管理費等 |
20,000円 |
| 敷金 / 保証金 |
1ヶ月 / なし |
礼金 |
1ヶ月 |
| 敷引 |
- |
保証金償却 |
- |
| その他一時金 |
コンフォートプラス24:22,000円 |
保険等 |
要 2年 23,000円 |
| 維持費等 |
- |
| 間取り |
3LDK(LDK18.1、洋6.9、洋6.2、和6.1) |
専有面積 |
82.27m² |
| 築年月 |
2002年7月(築23年6ヶ月)
|
階建 / 階 |
地上35階地下2階建 / 21階 |
| 建物構造 |
RC |
総戸数 |
- |
| 主要採光面 |
南 |
駐車場 |
近有 40,000円/月 |
| バイク置き場 |
- |
駐輪場 |
有 |
| 建物名・部屋番号 |
ウエルタワー深川 |
ペット |
相談 |
| アピールポイント |
室内設備は浴室乾燥機・洗面化粧台などが揃っており、とても充実しています。共用部にはゴミ出し24時間OK・宅配ボックスなど様々な設備やサービスが揃っているので便利です。セキュリティ面は、オートロック・TVインターホンなど充実しているので、防犯対策もばっちりです。収納はクロゼット・押入など豊富なので、広々と空間を利用することも可能です。こちらのお部屋で新しい生活を始めてみませんか。陽当りの良い明るい環境が魅力の一押し物件となっています。こちらのお部屋は2026年2月の入居日指定です。駐輪場付きの物件です。こちらは家賃25.5万円の物件です。コンロとシンクの間に隙間がなく、掃除が簡単なためキッチンを綺麗に保ちやすいシステムキッチンを備えております。こだわりの条件の中でもニーズの高い、二人入居可能物件。 |
| リフォーム履歴 |
- |
| リノベーション履歴 |
- |
| 備考 |
賃貸保証等:加入要(初回 賃料等総額の50%~)
管理形態/管理員の勤務形態:-/常駐
IT重説対応物件
収納はクロゼット・押入など豊富なので、広々と空間を利用することも可能です。セキュリティ面は、オートロック・TVインターホンなど充実しているので安心して生活できます。共用部にはゴミ出し24時間OK・宅配ボックスなどが揃っており、とても充実しています。室内設備は洗面所独立・浴室乾燥機など充実した設備を備え付けています。スイッチ一つで温度管理できるエアコン付きのマンション。防犯意識の高いお客様からのニーズがある、防犯カメラ付きのマンションです。インターネットが繋がっているマンションなので生活しやすくなっています。忙しい方にもおすすめの、敷地内ごみ置き場付きの物件です。駐輪場付きのマンションです。この物件は令和8年2月の入居日指定と決定になりましたので確認ください。畳部屋の使用頻度が低い方向けの全居室フローリング設置。
|
| エネルギー消費性能 |
- |
| 断熱性能 |
- |
| 目安光熱費 |
- |
| バス・トイレ |
バス・トイレ別、浴室乾燥機、追焚機能、洗面所独立、洗面所、温水洗浄便座、トイレ |
| キッチン |
システムキッチン、浄水器、3口以上コンロ、ガスコンロ可、グリル |
| セキュリティー |
モニター付オートロック、オートロック、モニター付インターホン、防犯カメラ |
| 収納 |
収納スペース、クローゼット |
| 設備・サービス |
床暖房、室内洗濯機置場、洗濯機置場、全居室フローリング、都市ガス、ビルトインエアコン、エアコン、暖房、冷房 |
| TV・通信 |
インターネット対応、CATVインターネット、ケーブルTV、CS、BS端子 |
| その他 |
宅配BOX、エレベーター2基以上、共用ゲストルーム、バルコニー、駐輪場 |
| 契約期間 |
3年 |
現況 |
居住中 |
| 条件等 |
定期借家 |
入居可能時期 |
2026年2月中旬予定 |
| 更新料 |
新賃料 1ヶ月 |
物件番号 |
1132836119 |
| 情報公開日 |
2025年12月15日 |
次回更新予定日 |
2025年12月29日 |
| ケータイ用バーコード |
- スマートフォンでこの物件を見る
- スマートフォンからもこの物件をご覧になれます。
|
※「-」と表示されている項目については、情報提供会社にご確認ください。
| 周辺施設 |
ファミリーマート 門前仲町店 |
| 距離 |
815m |
写真を見る |
| 周辺施設 |
イトーヨーカドー 木場店 |
| 距離 |
748m |
写真を見る |
| 周辺施設 |
スーパービバホーム 豊洲店 |
| 距離 |
1704m |
写真を見る |
| 周辺施設 |
マクドナルド 月島駅前店 |
| 距離 |
1965m |
写真を見る |
| 周辺施設 |
銀座コージーコーナー 門前仲町店 |
| 距離 |
805m |
写真を見る |
ここから簡単にお問い合わせをすることができます。
(SSLでの暗号化での送信を希望されるお客さまは
こちら
よりお問い合わせください)
お問い合わせを行う前に
「個人情報の取り扱いについて」を必ずお読みください。
「個人情報の取り扱いについて」に同意いただいた場合は「上記にご同意の上 確認画面へ進む」のボタンをクリックしてください。
個人情報の取り扱いについて
皆さまが送付された個人情報はアットホーム(株)のサーバを経由し、お問い合わせ先の不動産会社にメールまたはFAXにて転送されるためアットホーム(株)にも保管されます。アットホーム(株)で保管された個人情報の取り扱いについては、【こちら】をご覧ください。
また、本画面でご記入いただいた個人情報は、お問い合わせ先の不動産会社でも保管します。 お問い合わせ先の不動産会社が保管する個人情報の取り扱いについては、不動産会社に直接お問い合わせください。
東京都知事免許(1)第107337号 |
|---|
- 交通:
- JR山手線/新橋駅 徒歩5分
- 東京都中央区銀座8丁目11-1 GINZA GS BLD.2 7階
- TEL:
- 03-6281-4770
- FAX:
- 03-6281-4771
- 所属団体:
- (公社)東京都宅地建物取引業協会会員(公社)首都圏不動産公正取引協議会加盟
取引態様:仲介  - 00271811
|
- スマートフォンで
この不動産会社を見る

|
- 提携サイト等より掲載されている物件情報につきましては、不動産会社詳細情報にリンクされていないものがあります。
- 物件に関するお問合せは、物件詳細ページの「情報提供会社」に表示されている不動産会社へ直接お願いいたします。
- 間取図は、現況を優先させていただきます。
- 映像は物件の一部を撮影したものです。物件の契約にあたっての最終判断はご自身の判断に基づいて行ってください。
- 仲介手数料について

アットホームは物件情報の適正化に努めております。
内容に誤りがある場合にはこちらへご連絡ください。