神奈川県横浜市南区永楽町1丁目(伊勢佐木長者町駅)の賃貸:物件詳細
交通 所在地 |
駅徒歩 |
賃料 管理費等 |
敷金/保証金 礼金 |
間取り 面積 |
物件種目 築年月 |
|
ブルーライン/伊勢佐木長者町
神奈川県横浜市南区永楽町1丁目
|
6分
|
7.4万円
15,000円
|
なし / なし
なし
|
1K
21.31m²
|
賃貸マンション
2017年6月(築8年7ヶ月)
|
ペット相談、デザイナーズ、分譲タイプ、常時ゴミ出し可能、角部屋、二人入居可、24時間換気システム、外観タイル張り、IT重説対応物件、保証人不要
|
|
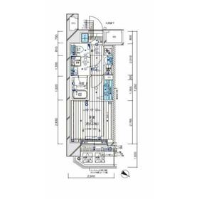
間取図
|
外観
|
<
その他の画像
>
|
| 交通 | ブルーライン 伊勢佐木長者町駅 徒歩6分 |
|---|
| その他の交通 | JR京浜東北線 関内駅 徒歩13分 京急本線 日ノ出町駅 徒歩15分 |
| 所在地 |
神奈川県横浜市南区永楽町1丁目
|
| 物件種目 |
賃貸マンション |
| 賃料 |
7.4万円 |
管理費等 |
15,000円 |
| 敷金 / 保証金 |
なし / なし |
礼金 |
なし |
| 敷引 |
- |
保証金償却 |
- |
| その他一時金 |
退去時鍵交換費用(契約時請求):29,700円、AMLクラブサポート費用(契約時請求):16,500円、室内清掃費用:49,500円 |
保険等 |
要 2年 16,000円 |
| 維持費等 |
- |
クレジットカード決済 |
初期費用可 |
| 間取り |
1K(洋6) |
専有面積 |
21.31m² |
| 築年月 |
2017年6月(築8年7ヶ月)
|
階建 / 階 |
11階建 / 2階 |
| 建物構造 |
RC |
総戸数 |
- |
| 主要採光面 |
北東 |
駐車場 |
- |
| バイク置き場 |
- |
駐輪場 |
- |
| 建物名・部屋番号 |
メインステージ横濱伊勢佐木Ⅱ |
ペット |
相談 |
| アピールポイント |
☆お部屋探しは桜関へ!☆ご入居に関してのお困り事、お任せ!
物件の詳細や諸条件(入居時期・保証人・初期費用・分割・入居審査・交渉事など)について、何でもご相談ください。桜関(045-334-7752)にお電話いただけるとスムーズです。LINEでもご対応可能です。 |
| リフォーム履歴 |
- |
| リノベーション履歴 |
- |
| 備考 |
賃貸保証等:加入要(家賃総額より50%~)
管理形態/管理員の勤務形態:-/巡回
IT重説対応物件、管理人巡回
物件の詳細や諸条件(入居時期・保証人・初期費用・分割・入居審査・交渉事など)について、何でもご相談ください。桜関(045-334-7752)にお電話いただけるとスムーズです。LINEでもご対応可能です。
セキュリティ面は、オートロック・TVインターホンなどを備え付けているので安心して暮らせます。共用部には宅配ボックス・ゴミ出し24時間OKなど様々な設備やサービスが揃っているので便利です。収納はシューズボックス・クロゼットなどが備え付けられているので、衣類や日用品の収納に重宝します。室内設備は洗面所独立・浴室乾燥機など大変充実しております。このマンションではご相談次第でペットの飼育OKです。自由にインテリアを楽しめる、フローリングのお部屋です。魅力も多い賃貸物件はいかがでしょうか。通風システムが整った換気がしやすいマンションです。エレベーターがある物件です。共用部に防犯カメラを設置しているので、トラブルが発生した時も映像を確認できる安心感があります。地上11階建てのイチオシの物件です。
|
| エネルギー消費性能 |
- |
| 断熱性能 |
- |
| 目安光熱費 |
- |
| バス・トイレ |
バス・トイレ別、浴室暖房、浴室乾燥機、洗面所独立、洗面所、洗面台、シャワー、トイレ |
| キッチン |
システムキッチン、2口コンロ、ガスコンロ可 |
| セキュリティー |
モニター付オートロック、オートロック、モニター付インターホン、防犯カメラ |
| 収納 |
収納スペース、クローゼット、シューズボックス |
| 設備・サービス |
室内洗濯機置場、洗濯機置場、都市ガス給湯、給湯、全居室フローリング、フローリング、都市ガス、エアコン、ダウンライト、照明器具 |
| TV・通信 |
インターネット対応、インターネット使用料無料、光ファイバー |
| その他 |
宅配BOX、バルコニー、エレベーター |
| 契約期間 |
2年 |
現況 |
居住中 |
| 条件等 |
- |
入居可能時期 |
2026年1月上旬予定 |
| 更新料 |
新賃料 1.5ヶ月 |
物件番号 |
1132946619 |
| 情報公開日 |
2025年12月22日 |
次回更新予定日 |
2026年1月5日 |
| ケータイ用バーコード |
- スマートフォンでこの物件を見る
- スマートフォンからもこの物件をご覧になれます。
|
※「-」と表示されている項目については、情報提供会社にご確認ください。
| 周辺施設 |
伊勢佐木長者町 |
| 距離 |
536m |
写真を見る |
| 周辺施設 |
伊勢佐木町ワシントンホテル |
| 距離 |
634m |
写真を見る |
| 周辺施設 |
ドン・キホーテ |
| 距離 |
701m |
写真を見る |
| 周辺施設 |
すき家 阪東橋店 |
| 距離 |
719m |
写真を見る |
ここから簡単にお問い合わせをすることができます。
(SSLでの暗号化での送信を希望されるお客さまは
こちら
よりお問い合わせください)
お問い合わせを行う前に
「個人情報の取り扱いについて」を必ずお読みください。
「個人情報の取り扱いについて」に同意いただいた場合は「上記にご同意の上 確認画面へ進む」のボタンをクリックしてください。
個人情報の取り扱いについて
皆さまが送付された個人情報はアットホーム(株)のサーバを経由し、お問い合わせ先の不動産会社にメールまたはFAXにて転送されるためアットホーム(株)にも保管されます。アットホーム(株)で保管された個人情報の取り扱いについては、【こちら】をご覧ください。
また、本画面でご記入いただいた個人情報は、お問い合わせ先の不動産会社でも保管します。 お問い合わせ先の不動産会社が保管する個人情報の取り扱いについては、不動産会社に直接お問い合わせください。
神奈川県知事免許(1)第32671号 |
|---|
- 交通:
- JR京浜東北線/桜木町駅 徒歩2分
- 神奈川県横浜市中区花咲町3丁目87番地 桜木町SSビル4階
- TEL:
- 045-334-7752
- FAX:
- 045-334-7754
- 所属団体:
- (公社)全日本不動産協会会員(公社)首都圏不動産公正取引協議会加盟
取引態様:仲介  - 00280910
|
- スマートフォンで
この不動産会社を見る

|
- 提携サイト等より掲載されている物件情報につきましては、不動産会社詳細情報にリンクされていないものがあります。
- 物件に関するお問合せは、物件詳細ページの「情報提供会社」に表示されている不動産会社へ直接お願いいたします。
- 間取図は、現況を優先させていただきます。
- 映像は物件の一部を撮影したものです。物件の契約にあたっての最終判断はご自身の判断に基づいて行ってください。
- 仲介手数料について

アットホームは物件情報の適正化に努めております。
内容に誤りがある場合にはこちらへご連絡ください。