不動産 賃貸 マンション等の住宅情報:埼玉住まい情報


愛知県稲沢市下津本郷町(稲沢駅)の賃貸:物件詳細

  • 物件詳細
  • 情報の見方
  • 印刷用画面
交通
所在地
駅徒歩 賃料
管理費等
敷金/保証金
礼金
間取り
面積
物件種目
築年月

東海道本線/稲沢

愛知県稲沢市下津本郷町

19分

9.5万円

4,000円

なし / なし

9.5万円

3LDK

73.30m²

賃貸テラスハウス

2026年3月
新築 

おすすめPOINTペット相談、駐車場2台分、角部屋、二人入居可、IT重説対応物件

おすすめコメント  スタッフ: 千田

新築3LDKテラス。リードフック・足洗場付きでペットとの暮らしに配慮。

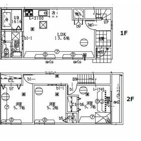
間取図

間取図

外観

外観

<
その他の画像
  • リビング
  • キッチン
  • バス/シャワー
  • 洗面
  • トイレ
  • 室内
  • 収納
  • その他
  • 玄関
  • 設備
  • バルコニー
  • その他
  • コンビニ
>
    • とりあえず保存
    • お問い合わせ
    交通

    東海道本線 稲沢駅 徒歩19分

    その他の交通

    名鉄名古屋本線 国府宮駅 徒歩42分

    名鉄名古屋本線 奥田駅 徒歩48分

    所在地 愛知県稲沢市下津本郷町
    物件種目 賃貸テラスハウス
    賃料 9.5万円 管理費等 4,000円
    敷金 / 保証金 なし / なし 礼金 9.5万円
    敷引 保証金償却
    その他一時金 定額クリーニング費:50,000円、鍵交換料:13,200円、室内消毒料:35,200円 保険等
    維持費等 家財保険:1,000円/月、BLCサポート:1,980円/月
    間取り 3LDK(K13.6、洋5.2、洋5.7、洋5.7) 専有面積 73.30m²
    築年月 2026年3月 新築  階建 / 階 2階建
    建物構造 木造 総戸数
    主要採光面 駐車場 有 7,500円/月
    バイク置き場 駐輪場
    建物名・部屋番号 リバーサイドオリヅ ペット 相談
    リフォーム履歴
    リノベーション履歴
    備考
    賃貸保証等:加入要(JACCS 初回:月額総賃料の70% 更新料11000円/年 引落手数料750円/月)
    管理形態/管理員の勤務形態:-/-
    IT重説対応物件、2×4工法
    ※ペット飼育時、礼金1ヶ月追加となります。
    ※駐車場は縦列駐車2台込みで7,500円となります。
    2026年3月下旬入居開始予定の新築テラスハウス「リバーサイドオリヅ」。3LDK・73.3㎡のゆとりある住空間で、ペットと暮らすことを前提に設計された住まいです。リードフックと足洗場を備えており、散歩後のケアや雨の日の動線もスムーズ。庭先でのひとときから室内への流れが自然に整います。室内はすべて新築・未使用で、浴室1坪、浴室乾燥機、システムキッチン、ネット無料、宅配ボックスなど設備も充実。メゾネット構造のため生活空間を分けやすく、家族とペットそれぞれの居場所をつくりやすい点も魅力です。真新しい空間で、ペットと一緒に新しい暮らしをスタートしたい方におすすめの一邸です。
    エネルギー消費性能
    断熱性能
    目安光熱費
    バス・トイレ バス・トイレ別、浴室乾燥機、追焚機能、洗面所独立、洗面所、シャワー、温水洗浄便座、トイレ
    キッチン システムキッチン、3口以上コンロ、グリル
    セキュリティー モニター付インターホン
    収納 全居室収納、収納スペース、クローゼット、シューズボックス、床下収納
    設備・サービス 室内洗濯機置場、洗濯機置場、プロパンガス給湯、給湯、室内物干し、プロパンガス、エアコン
    TV・通信 インターネット使用料無料
    その他 宅配BOX、専用庭、バルコニー、駐輪場
    契約期間 2年 現況 未完成
    条件等 入居可能時期 2026年3月下旬予定
    更新料 15,000円 物件番号 1132963919
    情報公開日 2025年12月15日 次回更新予定日 2026年1月4日
    ケータイ用バーコード

    QRコード

    スマートフォンでこの物件を見る
    スマートフォンからもこの物件をご覧になれます。
    ※「-」と表示されている項目については、情報提供会社にご確認ください。

    この物件の周辺情報

    周辺施設 セブンイレブン 稲沢下津大門町店
    距離 532m

    クイックお問い合わせ

    ここから簡単にお問い合わせをすることができます。
    (SSLでの暗号化での送信を希望されるお客さまは こちら よりお問い合わせください)

    お問い合わせ内容(必須)
    お名前(必須) 姓  名 
    メールアドレス(必須)
    ※携帯電話のメールアドレスをご入力される方はこちらをご確認ください
    電話番号(必須)
    - -

    ※入力いただいた電話番号へSMSまたは音声でパスワードをご連絡します。

    携帯電話の番号をご入力の方へ

    携帯電話の番号をご入力の方へ
    確認画面にて送信ボタンをクリックするとSMSが携帯電話に届きます。
    そのSMSに記載のパスワード(認証番号)を入力し、お問い合わせを完了してください。
    尚、SMSの送信者番号は 0005 202 760 となります。
    これはアットホームの固定番号です。

    備考欄 希望条件、物件案内希望日、質問などがございましたらご記入ください。
    お問い合わせを行う前に「個人情報の取り扱いについて」を必ずお読みください。
    「個人情報の取り扱いについて」に同意いただいた場合は「上記にご同意の上 確認画面へ進む」のボタンをクリックしてください。

    個人情報の取り扱いについて

    皆さまが送付された個人情報はアットホーム(株)のサーバを経由し、お問い合わせ先の不動産会社にメールまたはFAXにて転送されるためアットホーム(株)にも保管されます。アットホーム(株)で保管された個人情報の取り扱いについては、【こちら】をご覧ください。
    また、本画面でご記入いただいた個人情報は、お問い合わせ先の不動産会社でも保管します。 お問い合わせ先の不動産会社が保管する個人情報の取り扱いについては、不動産会社に直接お問い合わせください。

    情報提供会社

    情報提供会社

    (株)ブルーボックス 稲沢支店

    国土交通大臣免許(7)第5463号

    交通:
    名鉄名古屋本線/国府宮駅 徒歩12分
    愛知県稲沢市前田1丁目1-1 
    TEL:
    0587-23-0015
    FAX:
    0587-23-7977
    所属団体:
    (公社)愛知県宅地建物取引業協会会員
    東海不動産公正取引協議会加盟

    取引態様:仲介

    • 会社情報
    • 40002404
    スマートフォンで
    この不動産会社を見る
    QRコード
    • とりあえず保存
    • お問い合わせ
    • 提携サイト等より掲載されている物件情報につきましては、不動産会社詳細情報にリンクされていないものがあります。
    • 物件に関するお問合せは、物件詳細ページの「情報提供会社」に表示されている不動産会社へ直接お願いいたします。
    • 間取図は、現況を優先させていただきます。
    • 映像は物件の一部を撮影したものです。物件の契約にあたっての最終判断はご自身の判断に基づいて行ってください。
    • 仲介手数料について仲介手数料

    アットホームは物件情報の適正化に努めております。 内容に誤りがある場合にはこちらへご連絡ください。

    【埼玉住まい情報】では、日本全国の物件から賃貸マンションや賃貸アパート・賃貸一戸建て等の賃貸住宅情報、新築マンション・分譲マンションや中古マンション等の売買マンション情報、新築一戸建てや中古一戸建てなどの戸建住宅、 土地など、総合的な不動産住宅情報検索サービスを提供致します。
    【埼玉住まい情報】から、選りすぐりの不動産物件を探してみましょう。

    【免責事項】
    このコーナーの運営はアットホーム株式会社(https://www.athome.co.jp/)が行っています。
    このコーナーに掲載している物件情報は、「アットホーム不動産情報ネットワーク」に加盟する不動産会社等(情報提供元)から提供されています。信頼性の高い情報提供が行えるよう、最大限の努力をしておりますが、その内容を保証するものではありません。 利用者のみなさまと各情報提供元との取引に起因する損害および情報が掲載されたことに起因する損害等については、株式会社イーシティ埼玉、およびアットホームは一切責任を負いません。
    各物件情報の内容や画像等はすべて現況を優先させていただきます。
    お取引等(お取引の準備、資金調達等を含みます)の際には、内容や契約条件等について、各情報提供元より十分な説明を受け、ご自身でご確認の上、判断してください。
    このコーナーへの物件情報のご掲載、その他不動産業務ソリューション等についての不動産会社様のお問合せはこちらからお願いいたします。

    物件画像: