東京都世田谷区宮坂2丁目(山下駅)の賃貸:物件詳細
交通 所在地 |
駅徒歩 |
賃料 管理費等 |
敷金/保証金 礼金 |
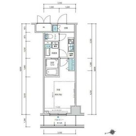
間取り 面積 |
物件種目 築年月 |
|
東急世田谷線/山下
東京都世田谷区宮坂2丁目
|
6分
|
11.2万円
なし
|
1ヶ月 / なし
1ヶ月
|
1K
26.64m²
|
賃貸マンション
2014年11月(築11年)
|
外観タイル張り
|
|
間取図
|
外観
|
<
その他の画像
>
|
|
|
| 交通 | 東急世田谷線 山下駅 徒歩6分 |
|---|
| その他の交通 | 小田急小田原線 豪徳寺駅 徒歩6分 小田急小田原線 経堂駅 徒歩8分 |
| 所在地 |
東京都世田谷区宮坂2丁目
|
| 物件種目 |
賃貸マンション |
| 賃料 |
11.2万円 |
管理費等 |
なし |
| 敷金 / 保証金 |
1ヶ月 / なし |
礼金 |
1ヶ月 |
| 敷引 |
- |
保証金償却 |
- |
| その他一時金 |
なし、鍵交換代等:22,000円~ |
保険等 |
要 |
| 維持費等 |
- |
クレジットカード決済 |
初期費用可 |
| 間取り |
1K |
専有面積 |
26.64m² |
| 築年月 |
2014年11月(築11年)
|
階建 / 階 |
8階建 / 2階 |
| 建物構造 |
RC |
総戸数 |
90戸 |
| 主要採光面 |
西 |
駐車場 |
有 27,500円/月 |
| バイク置き場 |
- |
駐輪場 |
- |
| 建物名・部屋番号 |
リージア経堂イーストプレイス |
ペット |
-
|
| アピールポイント |
☆当店の強みをお伝えします☆
①クレジットカードの初期費用分割払いを、喜んでお受けいたします(クレジットカード以外もOK)
②他社様がネットに掲載されている物件は、全てお調べし、【好条件】でご紹介いたします
他社様で「お申込み」された物件でも、【好条件】でご紹介できる場合がございます
③「審査が不安…」「保証人がいない…」「値段交渉をして欲しい…」などなど、
どのようなご条件でも、遠慮なくご相談いただけます
④ご検討されている「エリア」「沿線」が「広範囲」「複数」でも、一度で漏れなくお探しいただけます
ポータルサイトや他社サイトで気になるお部屋がございましたらお気軽にご相談ください
お客様のご来店を心よりお待ちしております |
| リフォーム履歴 |
- |
| リノベーション履歴 |
- |
| 備考 |
賃貸保証等:加入要(初回:賃料等の50%、継続保証委託料:年10000円、引落し手数料:月300円(税別))
管理形態/管理員の勤務形態:-/-
外壁コンクリート
保険等加入加入要/1年間10400円駐車場のうち高架下のみ27500円退去時室内清掃費35000円エアコン洗浄15000円CATVでBSCS視聴可(CATVBS別途契約要有償)
|
| エネルギー消費性能 |
- |
| 断熱性能 |
- |
| 目安光熱費 |
- |
| バス・トイレ |
トイレ |
| キッチン |
- |
| セキュリティー |
モニター付オートロック、オートロック、カードキー、ディンプルキー、防犯カメラ |
| 収納 |
- |
| 設備・サービス |
都市ガス、エアコン |
| TV・通信 |
インターネット対応、光ファイバー、ケーブルTV |
| その他 |
宅配BOX、エレベーター |
| 契約期間 |
2年 |
現況 |
空家 |
| 条件等 |
定期借家 |
入居可能時期 |
指定有り2025年11月8日 |
| 更新料 |
- |
物件番号 |
1133046016 |
| 情報公開日 |
2025年10月27日 |
次回更新予定日 |
2025年11月10日 |
| ケータイ用バーコード |
- スマートフォンでこの物件を見る
- スマートフォンからもこの物件をご覧になれます。
|
※「-」と表示されている項目については、情報提供会社にご確認ください。
| 周辺施設 |
経堂コルティ |
| 距離 |
899m |
写真を見る |
| 周辺施設 |
トップパルケ 豪徳寺店 |
| 距離 |
575m |
写真を見る |
| 周辺施設 |
セブン-イレブン 世田谷経堂本町通り店 |
| 距離 |
400m |
写真を見る |
| 周辺施設 |
ココカラファイン 豪徳寺二番店 |
| 距離 |
613m |
写真を見る |
| 周辺施設 |
すし銚子丸 経堂店 |
| 距離 |
589m |
写真を見る |
| 周辺施設 |
竹川内科医院 |
| 距離 |
511m |
写真を見る |
| 周辺施設 |
経堂駅前郵便局 |
| 距離 |
678m |
写真を見る |
| 周辺施設 |
世田谷区役所 経堂出張所 |
| 距離 |
347m |
写真を見る |
ここから簡単にお問い合わせをすることができます。
(SSLでの暗号化での送信を希望されるお客さまは
こちら
よりお問い合わせください)
お問い合わせを行う前に
「個人情報の取り扱いについて」を必ずお読みください。
「個人情報の取り扱いについて」に同意いただいた場合は「上記にご同意の上 確認画面へ進む」のボタンをクリックしてください。
個人情報の取り扱いについて
皆さまが送付された個人情報はアットホーム(株)のサーバを経由し、お問い合わせ先の不動産会社にメールまたはFAXにて転送されるためアットホーム(株)にも保管されます。アットホーム(株)で保管された個人情報の取り扱いについては、【こちら】をご覧ください。
また、本画面でご記入いただいた個人情報は、お問い合わせ先の不動産会社でも保管します。 お問い合わせ先の不動産会社が保管する個人情報の取り扱いについては、不動産会社に直接お問い合わせください。
国土交通大臣免許(1)第10782号 |
|---|
- 交通:
- 小田急小田原線/下北沢駅 徒歩1分
- 東京都世田谷区北沢2丁目12-4 新第2マツヤビル 5階
- TEL:
- 03-5431-5393
- FAX:
- 03-5431-5392
- 所属団体:
- (公社)全日本不動産協会会員(公社)首都圏不動産公正取引協議会加盟
取引態様:仲介  - 00785877
|
- スマートフォンで
この不動産会社を見る

|
- 提携サイト等より掲載されている物件情報につきましては、不動産会社詳細情報にリンクされていないものがあります。
- 物件に関するお問合せは、物件詳細ページの「情報提供会社」に表示されている不動産会社へ直接お願いいたします。
- 間取図は、現況を優先させていただきます。
- 映像は物件の一部を撮影したものです。物件の契約にあたっての最終判断はご自身の判断に基づいて行ってください。
- 仲介手数料について

アットホームは物件情報の適正化に努めております。
内容に誤りがある場合にはこちらへご連絡ください。