東京都荒川区西尾久4丁目(尾久駅)の賃貸:物件詳細
交通 所在地 |
駅徒歩 |
賃料 管理費等 |
敷金/保証金 礼金 |
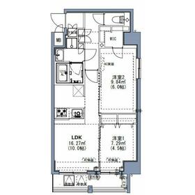
間取り 面積 |
物件種目 築年月 |
|
JR高崎線/尾久
東京都荒川区西尾久4丁目
|
8分
|
19.5万円
15,000円
|
1ヶ月 / なし
なし
|
2LDK
50.22m²
|
賃貸マンション
2023年9月(築2年4ヶ月)
|
ペット相談、角部屋、高齢者相談、二人入居可、IT重説対応物件
|
|
間取図
|
外観
外観も気になるポイント
|
<
その他の画像
>
|
| 交通 | JR高崎線 尾久駅 徒歩8分 |
|---|
| その他の交通 | JR山手線 田端駅 徒歩10分 都電荒川線 小台駅 徒歩11分 |
| 所在地 |
東京都荒川区西尾久4丁目
|
| 物件種目 |
賃貸マンション |
| 賃料 |
19.5万円 |
管理費等 |
15,000円 |
| 敷金 / 保証金 |
1ヶ月 / なし |
礼金 |
なし |
| 敷引 |
- |
保証金償却 |
- |
| その他一時金 |
なし、鍵交換代等:33,000円~ |
保険等 |
要 |
| 維持費等 |
- |
| 間取り |
2LDK(LDK10、洋6、洋4.5) |
専有面積 |
50.22m² |
| 築年月 |
2023年9月(築2年4ヶ月)
|
階建 / 階 |
13階建 / 11階 |
| 建物構造 |
RC |
総戸数 |
- |
| 主要採光面 |
南西 |
駐車場 |
近有 35,000円/月 |
| バイク置き場 |
有 2,200円/月 |
駐輪場 |
有 無料 |
| 建物名・部屋番号 |
S-RESIDENCE尾久azure |
ペット |
相談 |
| アピールポイント |
セキュリティ面は、TVインターホン・オートロックなどを設置しているので安全面でも優れております。室内設備は浴室乾燥機・洗面所独立など大変充実しております。共用部には宅配ボックスが付いているため、好きなタイミングで荷物を受け取ることができます。現在空家となっておりますので、お早めのお引越しが可能な物件です。2LDKは圧迫感を感じさせず、広く開放的な空間を作り出してくれます。こちらでご紹介させて頂いているお部屋、11階にあります。敷地内にゴミ置き場を備えているので敷地外に出る必要が無く、短時間でごみ出しを終えられます。近隣の駐車場がご利用いただけます。駐輪場付きのマンションです。角部屋は隣接する住戸が少ないので、隣人との騒音トラブルのリスクが下がります。 |
| リフォーム履歴 |
- |
| リノベーション履歴 |
- |
| 備考 |
賃貸保証等:加入要(初回 賃料等総額の50%~)
管理形態/管理員の勤務形態:-/-
IT重説対応物件
共用部には宅配ボックスが付いているため、好きなタイミングで荷物を受け取ることができます。セキュリティ面は、TVインターホン・オートロックなど充実しているので安心して生活できます。室内設備は浴室乾燥機・洗面化粧台など豊富に揃っており、過ごしやすいお部屋になっております。BS・CSが利用可能なので、幅広いアニメや映画も楽しめます。陽当たりが良いので、洗濯物が臭わずに乾きます。こちらのお部屋で新しい生活を始めてみませんか。急な転勤に嬉しい条件。礼金不要なので、すぐに入居したい方はこちらへどうぞ。居住者用の駐輪場が付いている物件です。2LDKで、快適なキッチンとリビングになっています。こちらの物件でペットの飼育をご希望の際は、お気軽にご相談ください。
|
| エネルギー消費性能 |
- |
| 断熱性能 |
- |
| 目安光熱費 |
- |
| バス・トイレ |
バス・トイレ別、浴室乾燥機、洗面所独立、洗面所、温水洗浄便座、トイレ |
| キッチン |
カウンターキッチン、システムキッチン、3口以上コンロ、ガスコンロ可 |
| セキュリティー |
モニター付オートロック、オートロック、モニター付インターホン |
| 収納 |
ウォークインクローゼット、収納スペース、クローゼット |
| 設備・サービス |
エアコン2台以上、室内洗濯機置場、洗濯機置場、全居室フローリング、フローリング、エアコン、冷房 |
| TV・通信 |
インターネット使用料無料、CS、BS端子 |
| その他 |
宅配BOX、バイク置き場、バルコニー、駐輪場、エレベーター |
| 契約期間 |
2年 |
現況 |
空家 |
| 条件等 |
- |
入居可能時期 |
即時 |
| 更新料 |
- |
物件番号 |
1133194119 |
| 情報公開日 |
2025年12月16日 |
次回更新予定日 |
2025年12月30日 |
| ケータイ用バーコード |
- スマートフォンでこの物件を見る
- スマートフォンからもこの物件をご覧になれます。
|
※「-」と表示されている項目については、情報提供会社にご確認ください。
| 周辺施設 |
まいばすけっと 熊野前店 |
| 距離 |
1346m |
写真を見る |
| 周辺施設 |
エネルギースーパーたじま 駒込店 |
| 距離 |
2268m |
写真を見る |
| 周辺施設 |
セブンイレブン 熊の前店 |
| 距離 |
1333m |
写真を見る |
| 周辺施設 |
ファミリーマート 駒込霜降橋店 |
| 距離 |
2213m |
写真を見る |
| 周辺施設 |
ジョナサン東尾久店 |
| 距離 |
1262m |
写真を見る |
| 周辺施設 |
オリンピック 熊野前店 |
| 距離 |
1248m |
写真を見る |
ここから簡単にお問い合わせをすることができます。
(SSLでの暗号化での送信を希望されるお客さまは
こちら
よりお問い合わせください)
お問い合わせを行う前に
「個人情報の取り扱いについて」を必ずお読みください。
「個人情報の取り扱いについて」に同意いただいた場合は「上記にご同意の上 確認画面へ進む」のボタンをクリックしてください。
個人情報の取り扱いについて
皆さまが送付された個人情報はアットホーム(株)のサーバを経由し、お問い合わせ先の不動産会社にメールまたはFAXにて転送されるためアットホーム(株)にも保管されます。アットホーム(株)で保管された個人情報の取り扱いについては、【こちら】をご覧ください。
また、本画面でご記入いただいた個人情報は、お問い合わせ先の不動産会社でも保管します。 お問い合わせ先の不動産会社が保管する個人情報の取り扱いについては、不動産会社に直接お問い合わせください。
東京都知事免許(1)第107337号 |
|---|
- 交通:
- JR山手線/新橋駅 徒歩5分
- 東京都中央区銀座8丁目11-1 GINZA GS BLD.2 7階
- TEL:
- 03-6281-4770
- FAX:
- 03-6281-4771
- 所属団体:
- (公社)東京都宅地建物取引業協会会員(公社)首都圏不動産公正取引協議会加盟
取引態様:仲介  - 00271811
|
- スマートフォンで
この不動産会社を見る

|
- 提携サイト等より掲載されている物件情報につきましては、不動産会社詳細情報にリンクされていないものがあります。
- 物件に関するお問合せは、物件詳細ページの「情報提供会社」に表示されている不動産会社へ直接お願いいたします。
- 間取図は、現況を優先させていただきます。
- 映像は物件の一部を撮影したものです。物件の契約にあたっての最終判断はご自身の判断に基づいて行ってください。
- 仲介手数料について

アットホームは物件情報の適正化に努めております。
内容に誤りがある場合にはこちらへご連絡ください。