福岡県福岡市中央区大名1丁目(赤坂駅)の賃貸:物件詳細
交通 所在地 |
駅徒歩 |
賃料 管理費等 |
敷金/保証金 礼金 |
間取り 面積 |
物件種目 築年月 |
|
地下鉄空港線/赤坂
福岡県福岡市中央区大名1丁目
|
5分
|
6.1万円
1,000円
|
なし / なし
なし
|
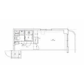
1K
22.61m²
|
賃貸マンション
1985年1月(築41年)
|
デザイナーズ、オール電化、IT重説対応物件
|
|
間取図
|
外観
|
<
その他の画像
>
|
| 交通 | 地下鉄空港線 赤坂駅 徒歩5分 |
|---|
| その他の交通 | 西鉄天神大牟田線 西鉄福岡(天神)駅 徒歩11分 地下鉄七隈線 薬院大通駅 徒歩11分 |
| 所在地 |
福岡県福岡市中央区大名1丁目
|
| 物件種目 |
賃貸マンション |
| 賃料 |
6.1万円 |
管理費等 |
1,000円 |
| 敷金 / 保証金 |
なし / なし |
礼金 |
なし |
| 敷引 |
- |
保証金償却 |
- |
| その他一時金 |
なし |
保険等 |
要 |
| 維持費等 |
- |
クレジットカード決済 |
初期費用可 |
| 間取り |
1K |
専有面積 |
22.61m² |
| 築年月 |
1985年1月(築41年)
|
階建 / 階 |
8階建 / 3階 |
| 建物構造 |
RC |
総戸数 |
- |
| 主要採光面 |
|
駐車場 |
- |
| バイク置き場 |
- |
駐輪場 |
- |
| 建物名・部屋番号 |
エクシード大名 304 |
ペット |
-
|
| アピールポイント |
独立した洗面所があり、身支度にもお使いいただけます。共用部にはエレベータ・敷地内ごみ置き場など様々な設備やサービスが揃っているので便利です。加入すればすぐにCATVを視聴できるCATV受信環境が整っています。お部屋から徒歩5分の場所に駅が位置するので、毎日の移動時間を削減できます。こちらの物件はマンションです。全居室フローリングのお住まいです。2駅利用可能な利便性の高い物件です。お掃除がしやすいIH調理器でお料理をすることができます。調べ物も買い物もパソコン一台で。インターネット有り物件で試してみて下さい。 |
| リフォーム履歴 |
- |
| リノベーション履歴 |
- |
| 備考 |
管理形態/管理員の勤務形態:-/巡回
IT重説対応物件、管理人巡回
こちらの物件は洗面所が独立しています。共用部には敷地内ごみ置き場・エレベータなどが備わっておりとても充実しています。初期費用のカード決済ができます。マンションにはシューズボックスが付いており、靴の整理整頓も快適です。この物件は駅から徒歩5分のマンションです。造りとデザインに関して、自信をもって情報を提供できるマンションです。行き先に応じて駅を選べる2駅利用可能なマンションです。転居先に住み心地も良いこちらの賃貸物件。充実した新生活を過ごしましょう。暑い日も寒い日も使えるエアコンが付いており、空調管理に便利。
|
| エネルギー消費性能 |
- |
| 断熱性能 |
- |
| 目安光熱費 |
- |
| バス・トイレ |
バス・トイレ別、洗面所独立、洗面所、洗面台、トイレ |
| キッチン |
IHクッキングヒーター |
| セキュリティー |
- |
| 収納 |
収納スペース、シューズボックス |
| 設備・サービス |
室内洗濯機置場、洗濯機置場、全居室フローリング、フローリング、エアコン |
| TV・通信 |
インターネット対応、インターネット使用料無料、ケーブルTV |
| その他 |
バルコニー、エレベーター |
| 契約期間 |
2年 |
現況 |
空家 |
| 条件等 |
- |
入居可能時期 |
相談 |
| 更新料 |
- |
物件番号 |
1133304319 |
| 情報公開日 |
2025年12月16日 |
次回更新予定日 |
2025年12月30日 |
| ケータイ用バーコード |
- スマートフォンでこの物件を見る
- スマートフォンからもこの物件をご覧になれます。
|
※「-」と表示されている項目については、情報提供会社にご確認ください。
| 周辺施設 |
レガネットキュート 赤坂門店 |
| 距離 |
479m |
写真を見る |
| 周辺施設 |
サニー警固店 |
| 距離 |
545m |
写真を見る |
| 周辺施設 |
BON REPAS(ボンラパス) 薬院六つ角店 |
| 距離 |
633m |
写真を見る |
| 周辺施設 |
ファミリーマート 福岡大名一丁目店 |
| 距離 |
44m |
写真を見る |
| 周辺施設 |
セブンイレブン 福岡大名1丁目店 |
| 距離 |
198m |
写真を見る |
| 周辺施設 |
ペインクリニックセンタービル |
| 距離 |
456m |
写真を見る |
| 周辺施設 |
マロニエ薬局 |
| 距離 |
518m |
写真を見る |
| 周辺施設 |
福岡中央銀行本店 |
| 距離 |
592m |
写真を見る |
ここから簡単にお問い合わせをすることができます。
(SSLでの暗号化での送信を希望されるお客さまは
こちら
よりお問い合わせください)
お問い合わせを行う前に
「個人情報の取り扱いについて」を必ずお読みください。
「個人情報の取り扱いについて」に同意いただいた場合は「上記にご同意の上 確認画面へ進む」のボタンをクリックしてください。
個人情報の取り扱いについて
皆さまが送付された個人情報はアットホーム(株)のサーバを経由し、お問い合わせ先の不動産会社にメールまたはFAXにて転送されるためアットホーム(株)にも保管されます。アットホーム(株)で保管された個人情報の取り扱いについては、【こちら】をご覧ください。
また、本画面でご記入いただいた個人情報は、お問い合わせ先の不動産会社でも保管します。 お問い合わせ先の不動産会社が保管する個人情報の取り扱いについては、不動産会社に直接お問い合わせください。
福岡県知事免許(1)第20747号 |
|---|
- 交通:
- 西鉄天神大牟田線/薬院駅 徒歩5分 【バス】 渡辺通1丁目 停歩5分
- 福岡県福岡市中央区白金1丁目4-25 セントラルイマージュ405
- TEL:
- 092-707-2622
- FAX:
- 092-707-2623
- 所属団体:
- (公社)福岡県宅地建物取引業協会会員(一社)九州不動産公正取引協議会加盟
取引態様:仲介  - 80507977
|
- スマートフォンで
この不動産会社を見る

|
- 提携サイト等より掲載されている物件情報につきましては、不動産会社詳細情報にリンクされていないものがあります。
- 物件に関するお問合せは、物件詳細ページの「情報提供会社」に表示されている不動産会社へ直接お願いいたします。
- 間取図は、現況を優先させていただきます。
- 映像は物件の一部を撮影したものです。物件の契約にあたっての最終判断はご自身の判断に基づいて行ってください。
- 仲介手数料について

アットホームは物件情報の適正化に努めております。
内容に誤りがある場合にはこちらへご連絡ください。