兵庫県西宮市松下町(さくら夙川駅)の賃貸:物件詳細
交通 所在地 |
駅徒歩 |
賃料 管理費等 |
敷金/保証金 礼金 |
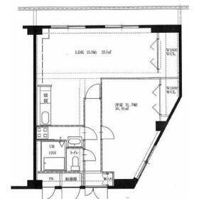
間取り 面積 |
物件種目 築年月 |
|
JR東海道本線/さくら夙川
兵庫県西宮市松下町
|
6分
|
7.5万円
12,000円
|
なし / なし
23万円
|
1LDK
62.42m²
|
賃貸マンション
1973年10月(築52年5ヶ月)
|
南向き、高齢者相談、二人入居可、24時間換気システム、閑静な住宅街、IT重説対応物件
|
|
間取図
|
外観
|
<
その他の画像
>
|
| 交通 | JR東海道本線 さくら夙川駅 徒歩6分 |
|---|
| その他の交通 | 阪神本線 香櫨園駅 徒歩6分 阪急神戸線 夙川駅 徒歩9分 |
| 所在地 |
兵庫県西宮市松下町
|
| 物件種目 |
賃貸マンション |
| 賃料 |
7.5万円 |
管理費等 |
12,000円 |
| 敷金 / 保証金 |
なし / なし |
礼金 |
23万円 |
| 敷引 |
- |
保証金償却 |
- |
| その他一時金 |
なし、鍵交換代等:16,500円~ |
保険等 |
不要 |
| 維持費等 |
- |
クレジットカード決済 |
初期費用可 |
| 間取り |
1LDK(LDK15.5、洋11.5) |
専有面積 |
62.42m² |
| 築年月 |
1973年10月(築52年5ヶ月)
|
階建 / 階 |
8階建 / 5階 |
| 建物構造 |
RC |
総戸数 |
- |
| 主要採光面 |
南 |
駐車場 |
有 18,700円/月 |
| バイク置き場 |
無 |
駐輪場 |
有 |
| 建物名・部屋番号 |
夙川ニューコーポ |
ペット |
-
|
| アピールポイント |
通話ボタンを押せば相手の声が聞けるので、会話したうえで直接会うかを決められるインターホンが付いております。共用部には敷地内ごみ置き場・エレベータなどが揃っており、とても充実しています。収納はクロゼット・シューズボックスなどが備え付けられているので、衣類や日用品の収納に重宝します。忙しい朝でも鏡を見ながらサッと身支度を整えることができる洗面化粧台を備えております。通勤やお出かけに便利な、徒歩6分に駅のある物件です。クレジットカードで初期費用をお支払いいただける物件です。ネットの回線を繋げているのでパソコンが使える生活。快適な暮らしを送るためのエアコンが設置されている物件となっています。収納性に優れていてキッチン回りを綺麗に保ちやすくなるシステムキッチンがあります。マンションタイプのお部屋です。たくさんの料理をまとめて作ることができるので作り置きも一気にできる、3口コンロがついた物件です。 |
| リフォーム履歴 |
- |
| リノベーション履歴 |
- |
| 備考 |
管理形態/管理員の勤務形態:-/-
駐車場礼金:2.75万円 駐車場敷金:2.5万円
IT重説対応物件
物件のお問い合わせはSumoSumoまで♪♪
来客時にはTVインターホンで訪問者の顔を確認することがきるので防犯対策につながります。化粧品やスタイリング剤などをまとめて出して、サッと身支度を整えられる独立洗面台が付いております。収納はシューズボックス・クロゼットなど豊富なので、広々と空間を利用することも可能です。共用部にはエレベータ・敷地内ごみ置き場などが揃っております。お料理好きにはたまらない、システムキッチン付きのマンションです。新たな回線工事が必要ない、経済的なネット回線工事済み物件です。駐車場に空きがあるので車を所有している方も安心です。2つの路線をご利用できる場所にあり、アクセスはとても便利です。同時にたくさん調理できるため、短い時間で一気に料理できる3口コンロが付いている物件です。毎日の生活が楽しくなるお家、1LDKで広くて落ち着きます。駐輪場付きのマンションです。
|
| エネルギー消費性能 |
- |
| 断熱性能 |
- |
| 目安光熱費 |
- |
| バス・トイレ |
バス・トイレ別、シャワー付洗面化粧台、洗面所独立、洗面所、洗面台、シャワー、温水洗浄便座、トイレ |
| キッチン |
アイランドキッチン、カウンターキッチン、システムキッチン、独立型キッチン、3口以上コンロ、ガスコンロ可、グリル |
| セキュリティー |
モニター付インターホン |
| 収納 |
ウォークインクローゼット、収納スペース、クローゼット、シューズボックス |
| 設備・サービス |
室内洗濯機置場、洗濯機置場、都市ガス給湯、給湯、全居室フローリング、フローリング、都市ガス、エアコン、人感センサー付照明 |
| TV・通信 |
インターネット対応、CATVインターネット、ケーブルTV、CS、BS端子 |
| その他 |
駐輪場、エレベーター |
| 契約期間 |
2年 |
現況 |
空家 |
| 条件等 |
- |
入居可能時期 |
即時 |
| 更新料 |
- |
物件番号 |
1133389822 |
| 情報公開日 |
2026年2月7日 |
次回更新予定日 |
2026年2月23日 |
| ケータイ用バーコード |
- スマートフォンでこの物件を見る
- スマートフォンからもこの物件をご覧になれます。
|
※「-」と表示されている項目については、情報提供会社にご確認ください。
| 周辺施設 |
ライフ夙川店 |
| 距離 |
336m |
写真を見る |
| 周辺施設 |
ダイエーグルメシティ夙川店 |
| 距離 |
633m |
写真を見る |
| 周辺施設 |
成城石井 夙川店 |
| 距離 |
810m |
写真を見る |
| 周辺施設 |
セブンイレブン 西宮夙川店 |
| 距離 |
350m |
写真を見る |
| 周辺施設 |
ファミリーマート 西宮宮西店 |
| 距離 |
556m |
写真を見る |
| 周辺施設 |
ウエルシア芦屋春日店 |
| 距離 |
793m |
写真を見る |
ここから簡単にお問い合わせをすることができます。
(SSLでの暗号化での送信を希望されるお客さまは
こちら
よりお問い合わせください)
お問い合わせを行う前に
「個人情報の取り扱いについて」を必ずお読みください。
「個人情報の取り扱いについて」に同意いただいた場合は「上記にご同意の上 確認画面へ進む」のボタンをクリックしてください。
個人情報の取り扱いについて
皆さまが送付された個人情報はアットホーム(株)のサーバを経由し、お問い合わせ先の不動産会社にメールまたはFAXにて転送されるためアットホーム(株)にも保管されます。アットホーム(株)で保管された個人情報の取り扱いについては、【こちら】をご覧ください。
また、本画面でご記入いただいた個人情報は、お問い合わせ先の不動産会社でも保管します。 お問い合わせ先の不動産会社が保管する個人情報の取り扱いについては、不動産会社に直接お問い合わせください。
国土交通大臣免許(2)第9550号 |
|---|
- 交通:
- 阪急神戸線/西宮北口駅 徒歩1分
- 兵庫県西宮市甲風園1丁目5-8
- TEL:
- 078-600-0540
- 所属団体:
- (公社)全日本不動産協会会員(公社)近畿地区不動産公正取引協議会加盟
取引態様:仲介  - 50026780
|
- スマートフォンで
この不動産会社を見る

|
- 提携サイト等より掲載されている物件情報につきましては、不動産会社詳細情報にリンクされていないものがあります。
- 物件に関するお問合せは、物件詳細ページの「情報提供会社」に表示されている不動産会社へ直接お願いいたします。
- 間取図は、現況を優先させていただきます。
- 映像は物件の一部を撮影したものです。物件の契約にあたっての最終判断はご自身の判断に基づいて行ってください。
- 仲介手数料について

アットホームは物件情報の適正化に努めております。
内容に誤りがある場合にはこちらへご連絡ください。