神奈川県川崎市幸区南幸町3丁目(尻手駅)の賃貸:物件詳細
				
					
					
				
														
	
		
			
				交通 所在地 | 
				駅徒歩 | 
				賃料 管理費等 | 
				敷金/保証金 礼金 | 
				間取り 面積 | 
				物件種目 築年月 | 
			
		
		
			
								| 
					 JR南武線/尻手
											 
					神奈川県川崎市幸区南幸町3丁目 
				 | 
								
					 3分 
				 | 
								
					 11.2万円 
					5,000円 
				 | 
								
					 1ヶ月 / なし 
					1ヶ月 
				 | 
								
					 1K 
					25.02m² 
				 | 
								
					 賃貸マンション 
					2010年2月(築15年10ヶ月)
																				 
				 | 
			
						
				 南向き、オール電化
  | 
			
					
	
		
		
		
					| 
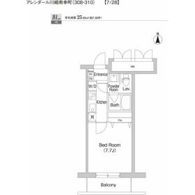
			 間取図 
			
			
			
			
			
		 | 
		
			 外観 
			
			
			
			
			
		 | 
				
		
		
			
				
										<
										
						
							 
							その他の画像
						 
					 
					
										>
									 
				
			 
		 | 
	
				
 
	
		
			
																			          | 交通 | JR南武線 尻手駅 徒歩3分  | 
|---|
| その他の交通 | JR南武線 矢向駅 徒歩15分 JR京浜東北線 川崎駅 徒歩15分  | 
			
				| 所在地 | 
				
					神奈川県川崎市幸区南幸町3丁目
				 | 
			
			
				| 物件種目 | 
				賃貸マンション | 
			
		
		
			
				| 賃料 | 
				11.2万円 | 
				管理費等 | 
				5,000円 | 
			
			
				| 敷金 / 保証金 | 
				1ヶ月 / なし | 
				礼金 | 
				1ヶ月 | 
			
			
				| 敷引 | 
				- | 
				保証金償却 | 
				- | 
			
			
				| その他一時金 | 
				鍵交換費用:36,300円 | 
				保険等 | 
				要 | 
			
						
				| 維持費等 | 
				- | 
			
					
		
			
				| 間取り | 
				1K(洋7.7) | 
				専有面積 | 
				25.02m² | 
			
			
				| 築年月 | 
				2010年2月(築15年10ヶ月)
												 | 
				階建 / 階 | 
				5階建 / 4階 | 
			
			
				| 建物構造 | 
				RC | 
				総戸数 | 
				- | 
			
			
				| 主要採光面 | 
				南 | 
				駐車場 | 
				有 19,800円/月 | 
			
			
				| バイク置き場 | 
				有 2,200円/月 | 
				駐輪場 | 
				空無 | 
			
			
				| 建物名・部屋番号 | 
				プライムアーバン川崎南幸町 404 | 
				ペット | 
				
								-
								 | 
			
						
				| リフォーム履歴 | 
				- | 
			
			
				| リノベーション履歴 | 
				- | 
			
			
				| 備考 | 
				
					 
																	賃貸保証等:加入要(エポスカード、クレディセゾン、オリコフォレントインシュア、SBIギャランティ ※詳細要確認)
											 						管理形態/管理員の勤務形態:-/-
										 
					
				 | 
			
		
				
		
		| エネルギー消費性能 | 
		- | 
	
	
		| 断熱性能 | 
		- | 
	
	
		| 目安光熱費 | 
		- | 
	
	
		
									
				| バス・トイレ | 
				バス・トイレ別、浴室乾燥機、洗面所独立、温水洗浄便座、トイレ | 
			
						
				| キッチン | 
				システムキッチン、IHクッキングヒーター、2口コンロ | 
			
						
				| セキュリティー | 
				オートロック、モニター付インターホン、防犯カメラ | 
			
						
				| 収納 | 
				収納スペース、シューズボックス | 
			
						
				| 設備・サービス | 
				室内洗濯機置場、フローリング、エアコン、照明器具 | 
			
						
				| TV・通信 | 
				光ファイバー | 
			
						
				| その他 | 
				宅配BOX、バイク置き場、バルコニー、駐輪場、エレベーター | 
			
					
		
			
				| 契約期間 | 
				2年 | 
				現況 | 
				空家 | 
			
			
				| 条件等 | 
				- | 
				入居可能時期 | 
				即時 | 
			
						
				| 更新料 | 
				新賃料 1ヶ月 | 
				物件番号 | 
				1133406715 | 
			
			
				| 情報公開日 | 
				2025年9月26日 | 
				次回更新予定日 | 
				2025年11月15日 | 
			
						
				| ケータイ用バーコード | 
				
				
					
					
						
							- スマートフォンでこの物件を見る
 
							- スマートフォンからもこの物件をご覧になれます。
 
						 
					 
				 
				 | 
			
					
	 
	 									※「-」と表示されている項目については、情報提供会社にご確認ください。
						
	
			
			
			
				
					
						
							| 周辺施設 | 
							サミットストア尻手駅前店 | 
						
						
							| 距離 | 
							126m | 
													
					
				
			 
		 
					
			
				
					
						
							| 周辺施設 | 
							ローソン・スリーエフ川崎尻手駅前 | 
						
						
							| 距離 | 
							239m | 
													
					
				
			 
		 
		 
				
			
			
				
					
						
							| 周辺施設 | 
							マツモトキヨシ尻手駅前店 | 
						
						
							| 距離 | 
							123m | 
													
					
				
			 
		 
					
		 
				
				
		 									
												
					
					  ここから簡単にお問い合わせをすることができます。
(SSLでの暗号化での送信を希望されるお客さまは
													こちら
											  よりお問い合わせください)
					  
					
						
						
					
					お問い合わせを行う前に
「個人情報の取り扱いについて」を必ずお読みください。
「個人情報の取り扱いについて」に同意いただいた場合は「上記にご同意の上 確認画面へ進む」のボタンをクリックしてください。 
 
					
					
						個人情報の取り扱いについて
						皆さまが送付された個人情報はアットホーム(株)のサーバを経由し、お問い合わせ先の不動産会社にメールまたはFAXにて転送されるためアットホーム(株)にも保管されます。アットホーム(株)で保管された個人情報の取り扱いについては、【こちら】をご覧ください。
						また、本画面でご記入いただいた個人情報は、お問い合わせ先の不動産会社でも保管します。 お問い合わせ先の不動産会社が保管する個人情報の取り扱いについては、不動産会社に直接お問い合わせください。
					 
				 
				
														
				  
				  
					神奈川県知事免許(10)第13823号  | 
|---|
- 交通:
 - JR京浜東北線/川崎駅 徒歩2分
 - 神奈川県川崎市川崎区駅前本町10-5 クリエ川崎6F
 - TEL:
 - 044-276-2536
 - FAX:
 - 044-266-6533
 - 所属団体:
 - (公社)神奈川県宅地建物取引業協会会員(公社)首都圏不動産公正取引協議会加盟
 
 取引態様:仲介  - 00107454
 
  | 
						  						  
							
							  
								- スマートフォンで
 この不動産会社を見る 
								    
							   
							 
						   | 
						  						
					  
					 
				   
				 
							
						
												
			
					
- 提携サイト等より掲載されている物件情報につきましては、不動産会社詳細情報にリンクされていないものがあります。
 
- 物件に関するお問合せは、物件詳細ページの「情報提供会社」に表示されている不動産会社へ直接お願いいたします。
 
- 間取図は、現況を優先させていただきます。
 
- 映像は物件の一部を撮影したものです。物件の契約にあたっての最終判断はご自身の判断に基づいて行ってください。
 
- 仲介手数料について

 
アットホームは物件情報の適正化に努めております。
内容に誤りがある場合にはこちらへご連絡ください。