大阪府東大阪市近江堂3丁目(弥刀駅)の賃貸:物件詳細
交通 所在地 |
駅徒歩 |
賃料 管理費等 |
敷金/保証金 礼金 |
間取り 面積 |
物件種目 築年月 |
近鉄大阪線/弥刀
大阪府東大阪市近江堂3丁目
|
10分
|
3.5万円
なし
|
なし / なし
なし
|
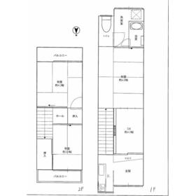
3DK
41.15m²
|
賃貸一戸建て
1964年6月(築61年5ヶ月)
|
南向き、ルームシェア可、二人入居可、閑静な住宅街、IT重説対応物件、保証人不要
|
間取図
|
外観
|
<
その他の画像
>
|
交通 | 近鉄大阪線 弥刀駅 徒歩10分 |
---|
その他の交通 | 近鉄大阪線 長瀬駅 徒歩13分 JRおおさか東線 JR長瀬駅 徒歩24分 |
所在地 |
大阪府東大阪市近江堂3丁目
|
物件種目 |
賃貸一戸建て |
賃料 |
3.5万円 |
管理費等 |
なし |
敷金 / 保証金 |
なし / なし |
礼金 |
なし |
敷引 |
- |
保証金償却 |
- |
その他一時金 |
なし |
保険等 |
要 2年 20,000円 |
維持費等 |
- |
クレジットカード決済 |
初期費用可 |
間取り |
3DK(DK4.5・和室6・和室4.5・和室3) |
専有面積 |
41.15m² |
築年月 |
1964年6月(築61年5ヶ月)
|
階建 / 階 |
2階建 |
建物構造 |
木造 |
総戸数 |
- |
主要採光面 |
南 |
駐車場 |
無 |
バイク置き場 |
無 |
駐輪場 |
無 |
建物名・部屋番号 |
|
ペット |
-
|
リフォーム履歴 |
- |
リノベーション履歴 |
- |
備考 |
管理形態/管理員の勤務形態:-/-
IT重説対応物件
|
エネルギー消費性能 |
- |
断熱性能 |
- |
目安光熱費 |
- |
バス・トイレ |
バス・トイレ別、トイレ |
キッチン |
- |
セキュリティー |
モニター付オートロック、モニター付インターホン |
収納 |
- |
設備・サービス |
室内洗濯機置場、洗濯機置場 |
TV・通信 |
- |
その他 |
バルコニー |
契約期間 |
2年 |
現況 |
空家 |
条件等 |
- |
入居可能時期 |
即時 |
更新料 |
- |
物件番号 |
1133883310 |
情報公開日 |
2025年5月30日 |
次回更新予定日 |
2025年10月30日 |
ケータイ用バーコード |
- スマートフォンでこの物件を見る
- スマートフォンからもこの物件をご覧になれます。
|
※「-」と表示されている項目については、情報提供会社にご確認ください。
周辺施設 |
サンディ東大阪近江堂店 |
距離 |
383m |
写真を見る |
周辺施設 |
グルメシティ長瀬店 |
距離 |
343m |
写真を見る |
周辺施設 |
セブンイレブン東大阪近江堂2丁目店 |
距離 |
361m |
写真を見る |
周辺施設 |
ローソン小若江2丁目店 |
距離 |
297m |
写真を見る |
周辺施設 |
ココカラファイン友井店 |
距離 |
509m |
写真を見る |
周辺施設 |
ジャパン 東大阪友井店 |
距離 |
538m |
写真を見る |
ここから簡単にお問い合わせをすることができます。
(SSLでの暗号化での送信を希望されるお客さまは
こちら
よりお問い合わせください)
お問い合わせを行う前に
「個人情報の取り扱いについて」を必ずお読みください。
「個人情報の取り扱いについて」に同意いただいた場合は「上記にご同意の上 確認画面へ進む」のボタンをクリックしてください。
個人情報の取り扱いについて
皆さまが送付された個人情報はアットホーム(株)のサーバを経由し、お問い合わせ先の不動産会社にメールまたはFAXにて転送されるためアットホーム(株)にも保管されます。アットホーム(株)で保管された個人情報の取り扱いについては、【こちら】をご覧ください。
また、本画面でご記入いただいた個人情報は、お問い合わせ先の不動産会社でも保管します。 お問い合わせ先の不動産会社が保管する個人情報の取り扱いについては、不動産会社に直接お問い合わせください。
大阪府知事免許(1)第64244号 |
---|
- 交通:
- 地下鉄谷町線/平野駅 徒歩1分
- 大阪府大阪市平野区流町1丁目1-2 流町ビル2階
- TEL:
- 06-6718-5825
- FAX:
- 06-6718-5826
- 所属団体:
- (公社)全日本不動産協会会員(公社)近畿地区不動産公正取引協議会加盟
取引態様:仲介  - 50111056
|
- スマートフォンで
この不動産会社を見る

|
- 提携サイト等より掲載されている物件情報につきましては、不動産会社詳細情報にリンクされていないものがあります。
- 物件に関するお問合せは、物件詳細ページの「情報提供会社」に表示されている不動産会社へ直接お願いいたします。
- 間取図は、現況を優先させていただきます。
- 映像は物件の一部を撮影したものです。物件の契約にあたっての最終判断はご自身の判断に基づいて行ってください。
- 仲介手数料について

アットホームは物件情報の適正化に努めております。
内容に誤りがある場合にはこちらへご連絡ください。