不動産 賃貸 マンション等の住宅情報:埼玉住まい情報


神奈川県横浜市西区楠町(横浜駅)の賃貸:物件詳細

  • 物件詳細
  • 情報の見方
  • 印刷用画面
交通
所在地
駅徒歩 賃料
管理費等
敷金/保証金
礼金
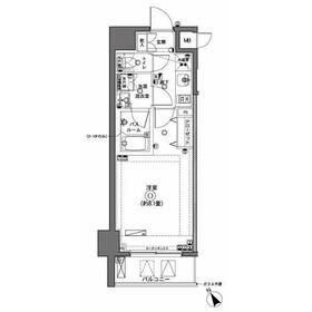
間取り
面積
物件種目
築年月

ブルーライン/横浜 新着

神奈川県横浜市西区楠町

10分

11.8万円

5,000円

1ヶ月 / なし

1ヶ月

1K

26.36m²

賃貸マンション

2017年2月(築8年11ヶ月)

おすすめPOINTペット相談、デザイナーズ、分譲タイプ、常時ゴミ出し可能、24時間換気システム、外観タイル張り、IT重説対応物件

おすすめコメント

横浜駅徒歩10分で生活住環境充実★笑顔で新生活♪

間取図

間取図

外観

外観

<
その他の画像
  • エントランス
  • 共有部分
  • 共有部分
  • 玄関
  • 収納
  • リビング
  • 室内
  • キッチン
  • その他
  • トイレ
  • 洗面
  • バス/シャワー
  • 収納
  • 設備
  • その他
  • バルコニー
  • コンビニ
  • コンビニ
  • 販売店
  • 販売店
  • 販売店
  • 販売店
>
    • とりあえず保存
    • お問い合わせ
    交通

    ブルーライン 横浜駅 徒歩10分

    その他の交通

    相鉄本線 平沼橋駅 徒歩15分

    東急東横線 反町駅 徒歩21分

    所在地 神奈川県横浜市西区楠町
    物件種目 賃貸マンション
    賃料 11.8万円 管理費等 5,000円
    敷金 / 保証金 1ヶ月 / なし 礼金 1ヶ月
    敷引 保証金償却
    その他一時金 なし、鍵交換代等:33,000円~ 保険等
    維持費等 家財保険+付帯サービス:1,735円/月 クレジットカード決済 初期費用可
    間取り 1K(洋8.1) 専有面積 26.36m²
    築年月 2017年2月(築8年11ヶ月) 階建 / 階 11階建 / 7階
    建物構造 RC 総戸数
    主要採光面 南西 駐車場 有 25,300円/月
    バイク置き場 駐輪場 有 500円/月
    建物名・部屋番号 ZOOM横浜 705 ペット 相談
    アピールポイント 近くにはデイリーヤマザキ 横浜北幸店(徒歩4分)がありちょっとした買い物に便利です。収納はクロゼット・シューズボックスなど豊富なので、衣類や履き物の整理がしやすく便利です。室内設備は洗面化粧台・浴室乾燥機など大変充実しております。共用部には宅配ボックス・ゴミ出し24時間OKなど様々な設備やサービスが揃っているので便利です。セキュリティ面は、オートロック・TVインターホンなど充実しているので、防犯対策もばっちりです。ネットの回線工事が済んでいるのですぐにパソコンが使えます。お部屋とキッチンに仕切りがある、1Kの物件です。水道代の節約につながる、追い焚き機能付きです。バルコニー面積は、3.56㎡です。ペットを育てている方にもうれしい、ペット相談可の物件です。敷地内の駐車場に空きがあるので、是非ご利用ください。
    リフォーム履歴
    リノベーション履歴
    備考
    賃貸保証等:加入要(保証料:初回=賃料等×50%、月額=賃料等×1%)
    管理形態/管理員の勤務形態:-/-
    バルコニー:3.56m²
    IT重説対応物件、外壁コンクリート
    初期費用をクレジット払いできます。(分割可)テレワーク可
    エネルギー消費性能
    断熱性能
    目安光熱費
    バス・トイレ バス・トイレ別、浴室乾燥機、オートバス、追焚機能、洗面所独立、洗面所、洗面台、シャワー、温水洗浄便座、トイレ
    キッチン システムキッチン、2口コンロ、ガスコンロ付、ガスコンロ可
    セキュリティー モニター付オートロック、オートロック、モニター付インターホン、ディンプルキー、ダブルロックドア、防犯カメラ
    収納 収納スペース、クローゼット、シューズボックス
    設備・サービス 室内洗濯機置場、洗濯機置場、都市ガス給湯、給湯、フローリング、都市ガス、エアコン、人感センサー付照明、照明器具
    TV・通信 インターネット対応、インターネット使用料無料、ケーブルTV
    その他 宅配BOX、エレベーター2基以上、バルコニー、駐輪場、エレベーター
    契約期間 2年 現況 空家
    条件等 定期借家定期借家 入居可能時期 2026年1月中旬予定
    更新料 物件番号 1134093419
    情報公開日 2025年12月16日 次回更新予定日 2025年12月31日
    ケータイ用バーコード

    QRコード

    スマートフォンでこの物件を見る
    スマートフォンからもこの物件をご覧になれます。
    ※「-」と表示されている項目については、情報提供会社にご確認ください。

    この物件の周辺情報

    周辺施設 デイリーヤマザキ 横浜北幸店
    距離 282m
    周辺施設 セブンイレブン 横浜浅間下店
    距離 202m
    周辺施設 まいばすけっと 横浜駅西店
    距離 440m
    周辺施設 全日食チェーン横浜浅間台店
    距離 612m
    周辺施設 VIVRE YOKOHAMA(ビブレ横浜)
    距離 816m
    周辺施設 ドン・キホーテ横浜西口店
    距離 803m

    クイックお問い合わせ

    ここから簡単にお問い合わせをすることができます。
    (SSLでの暗号化での送信を希望されるお客さまは こちら よりお問い合わせください)

    お問い合わせ内容(必須)
    お名前(必須) 姓  名 
    メールアドレス(必須)
    ※携帯電話のメールアドレスをご入力される方はこちらをご確認ください
    電話番号(必須)
    - -

    ※入力いただいた電話番号へSMSまたは音声でパスワードをご連絡します。

    携帯電話の番号をご入力の方へ

    携帯電話の番号をご入力の方へ
    確認画面にて送信ボタンをクリックするとSMSが携帯電話に届きます。
    そのSMSに記載のパスワード(認証番号)を入力し、お問い合わせを完了してください。
    尚、SMSの送信者番号は 0005 202 760 となります。
    これはアットホームの固定番号です。

    備考欄 希望条件、物件案内希望日、質問などがございましたらご記入ください。
    お問い合わせを行う前に「個人情報の取り扱いについて」を必ずお読みください。
    「個人情報の取り扱いについて」に同意いただいた場合は「上記にご同意の上 確認画面へ進む」のボタンをクリックしてください。

    個人情報の取り扱いについて

    皆さまが送付された個人情報はアットホーム(株)のサーバを経由し、お問い合わせ先の不動産会社にメールまたはFAXにて転送されるためアットホーム(株)にも保管されます。アットホーム(株)で保管された個人情報の取り扱いについては、【こちら】をご覧ください。
    また、本画面でご記入いただいた個人情報は、お問い合わせ先の不動産会社でも保管します。 お問い合わせ先の不動産会社が保管する個人情報の取り扱いについては、不動産会社に直接お問い合わせください。

    情報提供会社

    情報提供会社

    NextSmile(株) 本店

    神奈川県知事免許(1)第31947号

    交通:
    JR東海道本線/横浜駅 徒歩10分
    神奈川県横浜市西区浅間町1丁目5-1 YTビル1F-B
    TEL:
    045-316-8233
    FAX:
    045-316-8234
    所属団体:
    (公社)神奈川県宅地建物取引業協会会員
    (公社)首都圏不動産公正取引協議会加盟

    取引態様:仲介

    • 会社情報
    • 00274713
    スマートフォンで
    この不動産会社を見る
    QRコード
    • とりあえず保存
    • お問い合わせ
    • 提携サイト等より掲載されている物件情報につきましては、不動産会社詳細情報にリンクされていないものがあります。
    • 物件に関するお問合せは、物件詳細ページの「情報提供会社」に表示されている不動産会社へ直接お願いいたします。
    • 間取図は、現況を優先させていただきます。
    • 映像は物件の一部を撮影したものです。物件の契約にあたっての最終判断はご自身の判断に基づいて行ってください。
    • 仲介手数料について仲介手数料

    アットホームは物件情報の適正化に努めております。 内容に誤りがある場合にはこちらへご連絡ください。

    【埼玉住まい情報】では、日本全国の物件から賃貸マンションや賃貸アパート・賃貸一戸建て等の賃貸住宅情報、新築マンション・分譲マンションや中古マンション等の売買マンション情報、新築一戸建てや中古一戸建てなどの戸建住宅、 土地など、総合的な不動産住宅情報検索サービスを提供致します。
    【埼玉住まい情報】から、選りすぐりの不動産物件を探してみましょう。

    【免責事項】
    このコーナーの運営はアットホーム株式会社(https://www.athome.co.jp/)が行っています。
    このコーナーに掲載している物件情報は、「アットホーム不動産情報ネットワーク」に加盟する不動産会社等(情報提供元)から提供されています。信頼性の高い情報提供が行えるよう、最大限の努力をしておりますが、その内容を保証するものではありません。 利用者のみなさまと各情報提供元との取引に起因する損害および情報が掲載されたことに起因する損害等については、株式会社イーシティ埼玉、およびアットホームは一切責任を負いません。
    各物件情報の内容や画像等はすべて現況を優先させていただきます。
    お取引等(お取引の準備、資金調達等を含みます)の際には、内容や契約条件等について、各情報提供元より十分な説明を受け、ご自身でご確認の上、判断してください。
    このコーナーへの物件情報のご掲載、その他不動産業務ソリューション等についての不動産会社様のお問合せはこちらからお願いいたします。

    物件画像: