北海道札幌市北区北十八条西7丁目(北18条駅)の賃貸:物件詳細
交通 所在地 |
駅徒歩 |
賃料 管理費等 |
敷金/保証金 礼金 |
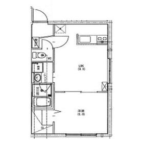
間取り 面積 |
物件種目 築年月 |
|
札幌市南北線/北18条
北海道札幌市北区北十八条西7丁目
|
6分
|
5万円
3,000円
|
なし / なし
なし
|
1LDK
35.10m²
|
賃貸マンション
2001年12月(築24年3ヶ月)
|
二人入居可
|
|
間取図
|
外観
外観
|
その他の画像
|
| 交通 | 札幌市南北線 北18条駅 徒歩6分 |
|---|
| その他の交通 | 札幌市南北線 北24条駅 徒歩15分 札幌市南北線 北12条駅 徒歩16分 |
| 所在地 |
北海道札幌市北区北十八条西7丁目
|
| 物件種目 |
賃貸マンション |
| 賃料 |
5万円 |
管理費等 |
3,000円 |
| 敷金 / 保証金 |
なし / なし |
礼金 |
なし |
| 敷引 |
実費 |
保証金償却 |
- |
| その他一時金 |
- |
保険等 |
要 2年 20,000円 |
| 維持費等 |
24H管理費:1,320円/月、町会費:200円/月 |
クレジットカード決済 |
初期費用可 |
| 間取り |
1LDK(LDK9.3 洋5) |
専有面積 |
35.10m² |
| 築年月 |
2001年12月(築24年3ヶ月)
|
階建 / 階 |
4階建 / 2階 |
| 建物構造 |
RC |
総戸数 |
- |
| 主要採光面 |
東 |
駐車場 |
無 |
| バイク置き場 |
- |
駐輪場 |
有 |
| 建物名・部屋番号 |
Elysee187 207 |
ペット |
-
|
| リフォーム履歴 |
- |
| リノベーション履歴 |
- |
| 備考 |
賃貸保証等:加入要(複数プラン有 詳細はご確認ください♪ 実費)
管理形態/管理員の勤務形態:-/-
☆初期費用軽減物件☆
入居時期、初期費用軽減、フリーレント等なんでもご相談ください★
|
| エネルギー消費性能 |
- |
| 断熱性能 |
- |
| 目安光熱費 |
- |
| バス・トイレ |
バス・トイレ別、シャワー付洗面化粧台、洗面所独立、洗面台、シャワー、温水洗浄便座、トイレ |
| キッチン |
カウンターキッチン、ガスコンロ可 |
| セキュリティー |
オートロック |
| 収納 |
クローゼット、シューズボックス |
| 設備・サービス |
室内洗濯機置場、給湯、クッションフロア、プロパンガス、エアコン、FF暖房、灯油暖房、暖房 |
| TV・通信 |
インターネット対応、BS端子 |
| その他 |
駐輪場 |
| 契約期間 |
2年 |
現況 |
居住中 |
| 条件等 |
- |
入居可能時期 |
2026年4月中旬予定 |
| 更新料 |
5,500円 |
物件番号 |
1134228111 |
| 情報公開日 |
2026年2月7日 |
次回更新予定日 |
2026年2月21日 |
| ケータイ用バーコード |
- スマートフォンでこの物件を見る
- スマートフォンからもこの物件をご覧になれます。
|
※「-」と表示されている項目については、情報提供会社にご確認ください。
| 周辺施設 |
ドラッグセイムス北18条店 |
| 距離 |
568m |
写真を見る |
| 周辺施設 |
Picante |
| 距離 |
1021m |
写真を見る |
| 周辺施設 |
ゲオ札幌北24条駅前店 |
| 距離 |
1217m |
写真を見る |
| 周辺施設 |
札幌市北区役所 |
| 距離 |
1112m |
写真を見る |
| 周辺施設 |
スーパーエース北18条店 |
| 距離 |
440m |
| 周辺施設 |
ゆうちょ銀行札幌支店北海道大学福利厚生会館内出張所 |
| 距離 |
803m |
ここから簡単にお問い合わせをすることができます。
(SSLでの暗号化での送信を希望されるお客さまは
こちら
よりお問い合わせください)
お問い合わせを行う前に
「個人情報の取り扱いについて」を必ずお読みください。
「個人情報の取り扱いについて」に同意いただいた場合は「上記にご同意の上 確認画面へ進む」のボタンをクリックしてください。
個人情報の取り扱いについて
皆さまが送付された個人情報はアットホーム(株)のサーバを経由し、お問い合わせ先の不動産会社にメールまたはFAXにて転送されるためアットホーム(株)にも保管されます。アットホーム(株)で保管された個人情報の取り扱いについては、【こちら】をご覧ください。
また、本画面でご記入いただいた個人情報は、お問い合わせ先の不動産会社でも保管します。 お問い合わせ先の不動産会社が保管する個人情報の取り扱いについては、不動産会社に直接お問い合わせください。
北海道知事免許 石狩(5)第6837号 |
|---|
- 交通:
- 札幌市東西線/南郷18丁目駅 徒歩1分
- 北海道札幌市白石区南郷通19丁目南2-8 クリスタル85 1F
- TEL:
- 011-826-6693
- FAX:
- 011-826-6694
- 所属団体:
- (公社)全日本不動産協会会員(一社)北海道不動産公正取引協議会加盟
取引態様:仲介  - 10005656
|
- スマートフォンで
この不動産会社を見る

|
- 提携サイト等より掲載されている物件情報につきましては、不動産会社詳細情報にリンクされていないものがあります。
- 物件に関するお問合せは、物件詳細ページの「情報提供会社」に表示されている不動産会社へ直接お願いいたします。
- 間取図は、現況を優先させていただきます。
- 映像は物件の一部を撮影したものです。物件の契約にあたっての最終判断はご自身の判断に基づいて行ってください。
- 仲介手数料について

アットホームは物件情報の適正化に努めております。
内容に誤りがある場合にはこちらへご連絡ください。