神奈川県相模原市南区古淵4丁目(古淵駅)の賃貸:物件詳細
交通 所在地 |
駅徒歩 |
賃料 管理費等 |
敷金/保証金 礼金 |
間取り 面積 |
物件種目 築年月 |
|
JR横浜線/古淵
神奈川県相模原市南区古淵4丁目
|
4分
|
6万円
2,000円
|
1ヶ月 / なし
1ヶ月
|
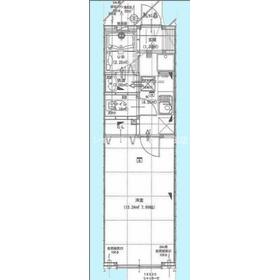
1K
23.52m²
|
賃貸アパート
2013年3月(築12年10ヶ月)
|
最上階、IT重説対応物件
|
|
間取図
|
外観
|
<
その他の画像
>
|
| 交通 | JR横浜線 古淵駅 徒歩4分 |
|---|
| その他の交通 | 小田急小田原線 町田駅 徒歩33分 小田急小田原線 相模大野駅 【バス】 12分 大野小学校入口 停歩9分 |
| 所在地 |
神奈川県相模原市南区古淵4丁目
|
| 物件種目 |
賃貸アパート |
| 賃料 |
6万円 |
管理費等 |
2,000円 |
| 敷金 / 保証金 |
1ヶ月 / なし |
礼金 |
1ヶ月 |
| 敷引 |
- |
保証金償却 |
- |
| その他一時金 |
なし |
保険等 |
要 20,000円 |
| 維持費等 |
- |
クレジットカード決済 |
初期費用可 |
| 間取り |
1K(洋7.9、K2) |
専有面積 |
23.52m² |
| 築年月 |
2013年3月(築12年10ヶ月)
|
階建 / 階 |
2階建 / 2階 |
| 建物構造 |
木造 |
総戸数 |
- |
| 主要採光面 |
|
駐車場 |
近有 11,000円/月 |
| バイク置き場 |
有 無料 |
駐輪場 |
有 無料 |
| 建物名・部屋番号 |
ハイツサザン 203 |
ペット |
-
|
| リフォーム履歴 |
- |
| リノベーション履歴 |
- |
| 備考 |
賃貸保証等:加入要(月額賃料等の50%(初回保証料)2年目以降は1万円/年(更新料))
管理形態/管理員の勤務形態:-/巡回
IT重説対応物件、管理人巡回
初期費用の分割あと払いサービスが利用できるようになりました!
クレジットカードを持っていない…
作りたくない…
限度額が…
そのようなお客様に朗報です!!!
・賃貸物件の初期費用分割あと払いサービスが利用できるようになりました。・++☆彡
・お申込みからご契約までLINE上で完結します♪
・審査は最短30分=3==3
※ほぼ全物件に対してご利用が可能
※3回払い、6回払い、12回払い、24回払い、36回払い、48回払いが選べます。
※3回払いは分割手数料が【0円】です。
Q.“分割払い契約”はいつするの?
A.入居審査の後に“分割払い契約”をいただきます!
Q.利用キャンセルできるの?
A.“分割払い契約”が完了するまで可能です!まずは無料審査を受けてみましょう!
Q.「クレジットカード」とどっちがおトク?
A.3回払いプランは分割手数料が0円です!
※6~48回払いは共に実質年率15.0%かかります。
#初期費用0円で引越し
#貯金ゼロでもおすすめの賃貸初期費用後払いサービス
#CM放送中!
「初期費用に困
|
| エネルギー消費性能 |
- |
| 断熱性能 |
- |
| 目安光熱費 |
- |
| バス・トイレ |
バス・トイレ別、洗面所独立、洗面所、温水洗浄便座、トイレ |
| キッチン |
2口コンロ、ガスコンロ可 |
| セキュリティー |
モニター付インターホン |
| 収納 |
収納スペース、シューズボックス |
| 設備・サービス |
室内洗濯機置場、洗濯機置場、ロフト、フローリング、都市ガス、エアコン |
| TV・通信 |
インターネット対応、光ファイバー |
| その他 |
バイク置き場、バルコニー、駐輪場 |
| 契約期間 |
2年 |
現況 |
空家 |
| 条件等 |
- |
入居可能時期 |
即時 |
| 更新料 |
- |
物件番号 |
1134308319 |
| 情報公開日 |
2025年12月17日 |
次回更新予定日 |
2025年12月31日 |
| ケータイ用バーコード |
- スマートフォンでこの物件を見る
- スマートフォンからもこの物件をご覧になれます。
|
※「-」と表示されている項目については、情報提供会社にご確認ください。
| 周辺施設 |
古淵ひのき台公園 |
| 距離 |
96m |
写真を見る |
| 周辺施設 |
すみれ保育園 |
| 距離 |
705m |
写真を見る |
| 周辺施設 |
薬 マツモトキヨシ 古淵駅前店 |
| 距離 |
389m |
写真を見る |
| 周辺施設 |
ファミリーマート 相模原古淵一丁目店 |
| 距離 |
424m |
写真を見る |
ここから簡単にお問い合わせをすることができます。
(SSLでの暗号化での送信を希望されるお客さまは
こちら
よりお問い合わせください)
お問い合わせを行う前に
「個人情報の取り扱いについて」を必ずお読みください。
「個人情報の取り扱いについて」に同意いただいた場合は「上記にご同意の上 確認画面へ進む」のボタンをクリックしてください。
個人情報の取り扱いについて
皆さまが送付された個人情報はアットホーム(株)のサーバを経由し、お問い合わせ先の不動産会社にメールまたはFAXにて転送されるためアットホーム(株)にも保管されます。アットホーム(株)で保管された個人情報の取り扱いについては、【こちら】をご覧ください。
また、本画面でご記入いただいた個人情報は、お問い合わせ先の不動産会社でも保管します。 お問い合わせ先の不動産会社が保管する個人情報の取り扱いについては、不動産会社に直接お問い合わせください。
国土交通大臣免許(1)第10313号 |
|---|
- 交通:
- 小田急小田原線/町田駅 徒歩4分
- 東京都町田市森野1丁目11-9 ソーナビル4階
- TEL:
- 042-860-6587
- 所属団体:
- (公社)東京都宅地建物取引業協会会員(公社)首都圏不動産公正取引協議会加盟
取引態様:仲介  - 00282184
|
- スマートフォンで
この不動産会社を見る

|
- 提携サイト等より掲載されている物件情報につきましては、不動産会社詳細情報にリンクされていないものがあります。
- 物件に関するお問合せは、物件詳細ページの「情報提供会社」に表示されている不動産会社へ直接お願いいたします。
- 間取図は、現況を優先させていただきます。
- 映像は物件の一部を撮影したものです。物件の契約にあたっての最終判断はご自身の判断に基づいて行ってください。
- 仲介手数料について

アットホームは物件情報の適正化に努めております。
内容に誤りがある場合にはこちらへご連絡ください。