東京都新宿区上落合3丁目(落合駅)の賃貸:物件詳細
交通 所在地 |
駅徒歩 |
賃料 管理費等 |
敷金/保証金 礼金 |
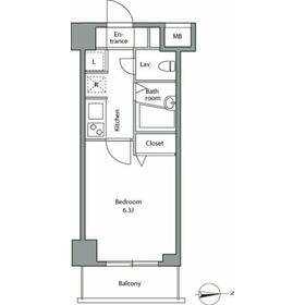
間取り 面積 |
物件種目 築年月 |
|
東京メトロ東西線/落合
東京都新宿区上落合3丁目
|
3分
|
9.9万円
10,000円
|
なし / なし
なし
|
1K
20.70m²
|
賃貸マンション
2006年10月(築19年3ヶ月)
|
デザイナーズ、常時ゴミ出し可能、24時間換気システム、保証人不要
|
|
間取図
|
外観
|
<
その他の画像
>
|
| 交通 | 東京メトロ東西線 落合駅 徒歩3分 |
|---|
| その他の交通 | 都営大江戸線 中井駅 徒歩3分 JR総武線 東中野駅 徒歩9分 |
| 所在地 |
東京都新宿区上落合3丁目
|
| 物件種目 |
賃貸マンション |
| 賃料 |
9.9万円 |
管理費等 |
10,000円 |
| 敷金 / 保証金 |
なし / なし |
礼金 |
なし |
| 敷引 |
- |
保証金償却 |
- |
| その他一時金 |
なし、鍵交換代等:22,000円~ |
保険等 |
要 21,500円 |
| 維持費等 |
入居者限定会員サービス:11,000円/月、インターネット使用料:1,650円/月 |
| 間取り |
1K(K2、洋6.3) |
専有面積 |
20.70m² |
| 築年月 |
2006年10月(築19年3ヶ月)
|
階建 / 階 |
6階建 / 1階 |
| 建物構造 |
RC |
総戸数 |
- |
| 主要採光面 |
東 |
駐車場 |
無 |
| バイク置き場 |
- |
駐輪場 |
- |
| 建物名・部屋番号 |
レジディア上落合 |
ペット |
-
|
| リフォーム履歴 |
- |
| リノベーション履歴 |
- |
| 備考 |
賃貸保証等:加入要(【IRS③】IUCレジデンシャルサポート 加入要 初回契約時:40%、更新時:10,000円、月額:1,000円)
管理形態/管理員の勤務形態:-/-
★落合&中井駅まで徒歩3分★東中野駅まで徒歩9分★
【お部屋探しはクレアスレント】★日常生活に便利なコンビニ・スーパーも近く生活環境良好★インターネットで紹介していない類似物件も多数ご案内!お客様の要望にお応えし、快適で素敵なお部屋をご紹介いたします!仕様・図面・写真等に相違があった場合は現況を優先します。短期違約金:1年未満の解約は総賃料1ヶ月分
|
| エネルギー消費性能 |
- |
| 断熱性能 |
- |
| 目安光熱費 |
- |
| バス・トイレ |
バス・トイレ別、浴室乾燥機、洗面台、シャワー、温水洗浄便座、トイレ |
| キッチン |
システムキッチン、2口コンロ、ガスコンロ可、グリル |
| セキュリティー |
モニター付オートロック、オートロック、モニター付インターホン、ダブルロックドア、防犯カメラ |
| 収納 |
収納スペース、クローゼット、シューズボックス |
| 設備・サービス |
室内洗濯機置場、洗濯機置場、都市ガス給湯、給湯、フローリング、都市ガス、エアコン、照明器具 |
| TV・通信 |
インターネット対応 |
| その他 |
宅配BOX、バルコニー、エレベーター |
| 契約期間 |
2年 |
現況 |
空家 |
| 条件等 |
- |
入居可能時期 |
2026年1月上旬予定 |
| 更新料 |
新賃料 1ヶ月 |
物件番号 |
1134405519 |
| 情報公開日 |
2025年12月17日 |
次回更新予定日 |
2025年12月31日 |
| ケータイ用バーコード |
- スマートフォンでこの物件を見る
- スマートフォンからもこの物件をご覧になれます。
|
※「-」と表示されている項目については、情報提供会社にご確認ください。
| 周辺施設 |
マツモトキヨシ 中井駅前店 |
| 距離 |
404m |
写真を見る |
| 周辺施設 |
コープみらい ミニコープ落合店 |
| 距離 |
448m |
写真を見る |
| 周辺施設 |
ファミリーマート 新宿中井駅前店 |
| 距離 |
504m |
写真を見る |
| 周辺施設 |
セブンイレブン 新宿中井駅前店 |
| 距離 |
540m |
写真を見る |
| 周辺施設 |
ライフ 東中野店 |
| 距離 |
690m |
写真を見る |
| 周辺施設 |
まいばすけっと 上高田4丁目店 |
| 距離 |
748m |
写真を見る |
ここから簡単にお問い合わせをすることができます。
(SSLでの暗号化での送信を希望されるお客さまは
こちら
よりお問い合わせください)
お問い合わせを行う前に
「個人情報の取り扱いについて」を必ずお読みください。
「個人情報の取り扱いについて」に同意いただいた場合は「上記にご同意の上 確認画面へ進む」のボタンをクリックしてください。
個人情報の取り扱いについて
皆さまが送付された個人情報はアットホーム(株)のサーバを経由し、お問い合わせ先の不動産会社にメールまたはFAXにて転送されるためアットホーム(株)にも保管されます。アットホーム(株)で保管された個人情報の取り扱いについては、【こちら】をご覧ください。
また、本画面でご記入いただいた個人情報は、お問い合わせ先の不動産会社でも保管します。 お問い合わせ先の不動産会社が保管する個人情報の取り扱いについては、不動産会社に直接お問い合わせください。
国土交通大臣免許(1)第10473号 |
|---|
- 交通:
- JR山手線/新宿駅 徒歩3分
- 東京都新宿区西新宿1丁目22-1 スタンダードビル4F
- TEL:
- 03-6824-9402
- FAX:
- 03-3342-3400
取引態様:仲介  - 00100471
|
- スマートフォンで
この不動産会社を見る

|
- 提携サイト等より掲載されている物件情報につきましては、不動産会社詳細情報にリンクされていないものがあります。
- 物件に関するお問合せは、物件詳細ページの「情報提供会社」に表示されている不動産会社へ直接お願いいたします。
- 間取図は、現況を優先させていただきます。
- 映像は物件の一部を撮影したものです。物件の契約にあたっての最終判断はご自身の判断に基づいて行ってください。
- 仲介手数料について

アットホームは物件情報の適正化に努めております。
内容に誤りがある場合にはこちらへご連絡ください。