神奈川県横浜市中区伊勢佐木町3丁目(伊勢佐木長者町駅)の賃貸:物件詳細
交通 所在地 |
駅徒歩 |
賃料 管理費等 |
敷金/保証金 礼金 |
間取り 面積 |
物件種目 築年月 |
|
ブルーライン/伊勢佐木長者町
神奈川県横浜市中区伊勢佐木町3丁目
|
5分
|
16.8万円
15,000円
|
なし / なし
なし
|
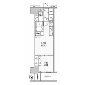
1LDK
40.51m²
|
賃貸マンション
2025年3月(築1年未満)
|
最上階、24時間セキュリティー、24時間換気システム、外観タイル張り、IT重説対応物件、保証人不要
|
|
間取図
|
外観
|
<
その他の画像
>
|
| 交通 | ブルーライン 伊勢佐木長者町駅 徒歩5分 |
|---|
| その他の交通 | JR京浜東北線 関内駅 徒歩9分 京急本線 日ノ出町駅 徒歩7分 |
| 所在地 |
神奈川県横浜市中区伊勢佐木町3丁目
|
| 物件種目 |
賃貸マンション |
| 賃料 |
16.8万円 |
管理費等 |
15,000円 |
| 敷金 / 保証金 |
なし / なし |
礼金 |
なし |
| 敷引 |
- |
保証金償却 |
- |
| その他一時金 |
24時間サポート:11,000円、24時間サポート入会費:2,200円、鍵交換代等:24,200円~ |
保険等 |
要 2年 28,000円 |
| 維持費等 |
- |
クレジットカード決済 |
初期費用可 |
| 間取り |
1LDK(LDK10.4、洋5) |
専有面積 |
40.51m² |
| 築年月 |
2025年3月(築1年未満)
|
階建 / 階 |
15階建 / 15階 |
| 建物構造 |
RC |
総戸数 |
- |
| 主要採光面 |
南西 |
駐車場 |
有 23,000円/月 |
| バイク置き場 |
- |
駐輪場 |
- |
| 建物名・部屋番号 |
WORVE横浜伊勢佐木町 |
ペット |
-
|
| アピールポイント |
スーパー・コンビニ近くにありお買い物も楽々☆
南西向きで日当たり良好の明るい室内です☆
初期費用のクレジット決済など、その他条件お気軽にご相談ください。 |
| リフォーム履歴 |
- |
| リノベーション履歴 |
- |
| 備考 |
賃貸保証等:加入要(初回保証料:総賃料の50%、継続保証料:10.000円/年)
管理形態/管理員の勤務形態:-/-
IT重説対応物件
初期費用をクレジット決済可能(分割も可)
【春からの新入生・新社会人様大歓迎!入居日ご相談ください】駐輪場:330円/月。バイク置場:3300円/月。短期解約時違約金あり。初期費用を分割可能です!(スムーズ・クレジット決済)
|
| エネルギー消費性能 |
- |
| 断熱性能 |
- |
| 目安光熱費 |
- |
| バス・トイレ |
バス・トイレ別、浴室乾燥機、シャワー付洗面化粧台、洗面所独立、洗面所、洗面台、シャワー、温水洗浄便座、トイレ |
| キッチン |
システムキッチン、2口コンロ、ガスコンロ可 |
| セキュリティー |
モニター付オートロック、オートロック、モニター付インターホン、ダブルロックドア、防犯カメラ |
| 収納 |
全居室収納、収納スペース、シューズインクローゼット、クローゼット |
| 設備・サービス |
室内洗濯機置場、洗濯機置場、全居室フローリング、フローリング、都市ガス、エアコン |
| TV・通信 |
インターネット対応、インターネット使用料無料 |
| その他 |
宅配BOX、バルコニー、エレベーター |
| 契約期間 |
2年 |
現況 |
空家 |
| 条件等 |
定期借家 |
入居可能時期 |
即時 |
| 更新料 |
- |
物件番号 |
1134707919 |
| 情報公開日 |
2025年12月17日 |
次回更新予定日 |
2025年12月31日 |
| ケータイ用バーコード |
- スマートフォンでこの物件を見る
- スマートフォンからもこの物件をご覧になれます。
|
※「-」と表示されている項目については、情報提供会社にご確認ください。
| 周辺施設 |
関東学院大学 横浜・関内キャンパス |
| 距離 |
852m |
写真を見る |
| 周辺施設 |
ピアゴイセザキ店 |
| 距離 |
23m |
写真を見る |
| 周辺施設 |
ドン・キホーテ伊勢佐木町店 |
| 距離 |
69m |
写真を見る |
| 周辺施設 |
ファミリーマート長者町店 |
| 距離 |
187m |
写真を見る |
| 周辺施設 |
マツモトキヨシ 伊勢佐木二丁目店 |
| 距離 |
330m |
写真を見る |
| 周辺施設 |
伊勢佐木モール |
| 距離 |
613m |
写真を見る |
ここから簡単にお問い合わせをすることができます。
(SSLでの暗号化での送信を希望されるお客さまは
こちら
よりお問い合わせください)
お問い合わせを行う前に
「個人情報の取り扱いについて」を必ずお読みください。
「個人情報の取り扱いについて」に同意いただいた場合は「上記にご同意の上 確認画面へ進む」のボタンをクリックしてください。
個人情報の取り扱いについて
皆さまが送付された個人情報はアットホーム(株)のサーバを経由し、お問い合わせ先の不動産会社にメールまたはFAXにて転送されるためアットホーム(株)にも保管されます。アットホーム(株)で保管された個人情報の取り扱いについては、【こちら】をご覧ください。
また、本画面でご記入いただいた個人情報は、お問い合わせ先の不動産会社でも保管します。 お問い合わせ先の不動産会社が保管する個人情報の取り扱いについては、不動産会社に直接お問い合わせください。
神奈川県知事免許(10)第14677号 |
|---|
- 交通:
- JR京浜東北線/関内駅 徒歩3分
- 神奈川県横浜市中区翁町1丁目1-6 産友パークビル2F
- TEL:
- 045-227-5755
- FAX:
- 045-227-5756
- 所属団体:
- (公社)神奈川県宅地建物取引業協会会員(公社)首都圏不動産公正取引協議会加盟
取引態様:仲介  - 00105631
|
- スマートフォンで
この不動産会社を見る

|
- 提携サイト等より掲載されている物件情報につきましては、不動産会社詳細情報にリンクされていないものがあります。
- 物件に関するお問合せは、物件詳細ページの「情報提供会社」に表示されている不動産会社へ直接お願いいたします。
- 間取図は、現況を優先させていただきます。
- 映像は物件の一部を撮影したものです。物件の契約にあたっての最終判断はご自身の判断に基づいて行ってください。
- 仲介手数料について

アットホームは物件情報の適正化に努めております。
内容に誤りがある場合にはこちらへご連絡ください。