広島県広島市安佐南区祇園5丁目(下祇園駅)の賃貸:物件詳細
交通 所在地 |
駅徒歩 |
賃料 管理費等 |
敷金/保証金 礼金 |
間取り 面積 |
物件種目 築年月 |
|
可部線/下祇園
広島県広島市安佐南区祇園5丁目
|
14分
|
6.9万円
6,000円
|
2ヶ月 / なし
1ヶ月
|
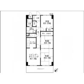
3LDK
62.06m²
|
賃貸マンション
1995年8月(築30年8ヶ月)
|
二人入居可
|
|
間取図
|
外観
|
<
その他の画像
>
|
| 交通 | 可部線 下祇園駅 徒歩14分 |
|---|
| その他の交通 | 可部線 古市橋駅 徒歩16分 広島高速交通アストラムライン 西原駅 徒歩22分 |
| 所在地 |
広島県広島市安佐南区祇園5丁目
|
| 物件種目 |
賃貸マンション |
| 賃料 |
6.9万円 |
管理費等 |
6,000円 |
| 敷金 / 保証金 |
2ヶ月 / なし |
礼金 |
1ヶ月 |
| 敷引 |
- |
保証金償却 |
- |
| その他一時金 |
カギ交換代:35,200円 |
保険等 |
要 2年 21,000円 |
| 維持費等 |
- |
| 間取り |
3LDK(LDK9.8 和6 和4.5 洋5.2) |
専有面積 |
62.06m² |
| 築年月 |
1995年8月(築30年8ヶ月)
|
階建 / 階 |
6階建 / 2階 |
| 建物構造 |
RC |
総戸数 |
- |
| 主要採光面 |
南東 |
駐車場 |
有 5,500円/月 |
| バイク置き場 |
- |
駐輪場 |
- |
| 建物名・部屋番号 |
中本ビル |
ペット |
-
|
| リフォーム履歴 |
- |
| リノベーション履歴 |
- |
| 備考 |
賃貸保証等:加入要(要確認)
管理形態/管理員の勤務形態:-/-
☆大型ショッピングセンターすぐ近く☆
収納しやすい独立キッチン★おススメ3LDKマンションタイプ!近くに大型ショッピングセンター有り!
|
| エネルギー消費性能 |
- |
| 断熱性能 |
- |
| 目安光熱費 |
- |
| バス・トイレ |
バス・トイレ別、シャワー付洗面化粧台、洗面所独立、洗面所、シャワー、温水洗浄便座、トイレ |
| キッチン |
独立型キッチン、ガスコンロ付、ガスコンロ可 |
| セキュリティー |
オートロック、モニター付インターホン |
| 収納 |
収納スペース、クローゼット |
| 設備・サービス |
室内洗濯機置場、フローリング、クッションフロア、プロパンガス |
| TV・通信 |
インターネット対応、インターネット使用料無料、光ファイバー、BS端子 |
| その他 |
バルコニー、エレベーター |
| 契約期間 |
2年 |
現況 |
空家 |
| 条件等 |
- |
入居可能時期 |
相談 |
| 更新料 |
なし |
物件番号 |
1135031415 |
| 情報公開日 |
2026年3月26日 |
次回更新予定日 |
2026年4月9日 |
| ケータイ用バーコード |
- スマートフォンでこの物件を見る
- スマートフォンからもこの物件をご覧になれます。
|
※「-」と表示されている項目については、情報提供会社にご確認ください。
| 周辺施設 |
ジーユーイオンモール広島祇園店 |
| 距離 |
248m |
写真を見る |
| 周辺施設 |
イオン広島祇園店 |
| 距離 |
358m |
写真を見る |
| 周辺施設 |
ローソン広島祇園5丁目店 |
| 距離 |
309m |
写真を見る |
| 周辺施設 |
ドラッグセガミ広島祇園店 |
| 距離 |
256m |
写真を見る |
| 周辺施設 |
広島市立祇園小学校 |
| 距離 |
474m |
写真を見る |
| 周辺施設 |
広島市立祇園中学校 |
| 距離 |
480m |
写真を見る |
| 周辺施設 |
山口整形外科病院 |
| 距離 |
584m |
写真を見る |
ここから簡単にお問い合わせをすることができます。
(SSLでの暗号化での送信を希望されるお客さまは
こちら
よりお問い合わせください)
お問い合わせを行う前に
「個人情報の取り扱いについて」を必ずお読みください。
「個人情報の取り扱いについて」に同意いただいた場合は「上記にご同意の上 確認画面へ進む」のボタンをクリックしてください。
個人情報の取り扱いについて
皆さまが送付された個人情報はアットホーム(株)のサーバを経由し、お問い合わせ先の不動産会社にメールまたはFAXにて転送されるためアットホーム(株)にも保管されます。アットホーム(株)で保管された個人情報の取り扱いについては、【こちら】をご覧ください。
また、本画面でご記入いただいた個人情報は、お問い合わせ先の不動産会社でも保管します。 お問い合わせ先の不動産会社が保管する個人情報の取り扱いについては、不動産会社に直接お問い合わせください。
国土交通大臣免許(2)第9113号 |
|---|
- 交通:
- JR山陽本線/横川駅 徒歩5分
- 広島県広島市西区楠木町1丁目10-24
- TEL:
- 082-553-9845
- FAX:
- 082-553-9844
- 所属団体:
- (公社)広島県宅地建物取引業協会会員中国地区不動産公正取引協議会加盟
取引態様:仲介  - 50101626
|
- スマートフォンで
この不動産会社を見る

|
- 提携サイト等より掲載されている物件情報につきましては、不動産会社詳細情報にリンクされていないものがあります。
- 物件に関するお問合せは、物件詳細ページの「情報提供会社」に表示されている不動産会社へ直接お願いいたします。
- 間取図は、現況を優先させていただきます。
- 映像は物件の一部を撮影したものです。物件の契約にあたっての最終判断はご自身の判断に基づいて行ってください。
- 仲介手数料について

アットホームは物件情報の適正化に努めております。
内容に誤りがある場合にはこちらへご連絡ください。