不動産 賃貸 マンション等の住宅情報:埼玉住まい情報


神奈川県横浜市西区楠町(横浜駅)の賃貸:物件詳細

  • 物件詳細
  • 情報の見方
  • 印刷用画面
交通
所在地
駅徒歩 賃料
管理費等
敷金/保証金
礼金
間取り
面積
物件種目
築年月

JR京浜東北線/横浜 新着

神奈川県横浜市西区楠町

10分

8万円

9,000円

1ヶ月 / なし

2ヶ月

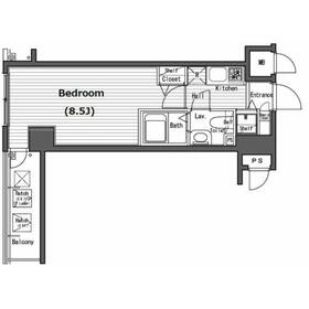
1K

24.43m²

賃貸マンション

2003年6月(築22年7ヶ月)

おすすめPOINT分譲タイプ、常時ゴミ出し可能、2面採光

おすすめコメント

横浜市西区エリアでの住まいなら、住み心地も快適な「ガラ・シティ横浜西口」はいかがでしょうか。セブンイレブン 横浜南軽井沢店まで徒歩3分と近場にコンビニがあるのもポイント。室内設備は浴室乾燥機・洗面所

間取図

間取図

外観

外観

<
その他の画像
  • リビング
  • キッチン
  • バス/シャワー
  • 洗面
  • トイレ
  • 室内
  • 収納
  • 室内
  • 収納
  • 玄関
  • 玄関
  • その他
  • 設備
  • その他
  • バルコニー
  • エントランス
  • 共有部分
  • 共有部分
  • 共有部分
  • 共有部分
  • コンビニ
  • コンビニ
  • 販売店
  • 販売店
  • 販売店
  • ショッピング施設
>
    • とりあえず保存
    • お問い合わせ
    交通

    JR京浜東北線 横浜駅 徒歩10分

    その他の交通

    相鉄本線 平沼橋駅 徒歩16分

    ブルーライン 三ツ沢下町駅 徒歩25分

    所在地 神奈川県横浜市西区楠町
    物件種目 賃貸マンション
    賃料 8万円 管理費等 9,000円
    敷金 / 保証金 1ヶ月 / なし 礼金 2ヶ月
    敷引 保証金償却
    その他一時金 なし 保険等 要 2年 20,000円
    維持費等 クレジットカード決済 初期費用可
    間取り 1K(洋8.5) 専有面積 24.43m²
    築年月 2003年6月(築22年7ヶ月) 階建 / 階 11階建 / 5階
    建物構造 RC 総戸数
    主要採光面 北東 駐車場
    バイク置き場 駐輪場
    建物名・部屋番号   ペット
    リフォーム履歴
    リノベーション履歴
    備考
    賃貸保証等:加入要(初回保証料:月額総賃料の50%、月額保証料:月額総賃料の1.2%)
    管理形態/管理員の勤務形態:-/-
    京浜東北線横浜駅周辺への引っ越しをお考えなら「ガラ・シティ横浜西口」。ファミリーマート 横浜楠町店まで徒歩2分と近場にコンビニがあるのもポイント。住まいを京浜東北線横浜周辺で求めるのであれば、当社でお部屋探しを行ってください。当社でなら、きっとお客様の希望条件にマッチしたお部屋が見つかることでしょう。
    保証会社利用必須 初回保証料:月額総賃料の50%、月額保証料:月額総賃料の1.2% 
    更新事務手数料:13200円 
    鍵交換代:23100円 
    退去時ルームクリーニング代:38500円 
    退去時エアコンクリーニング代:13200円
    エネルギー消費性能
    断熱性能
    目安光熱費
    バス・トイレ バス・トイレ別、浴室乾燥機、洗面所独立、洗面所、温水洗浄便座、トイレ
    キッチン システムキッチン、2口コンロ、ガスコンロ可、グリル
    セキュリティー モニター付オートロック、オートロック、モニター付インターホン、防犯カメラ
    収納 収納スペース、クローゼット、シューズボックス
    設備・サービス 室内洗濯機置場、洗濯機置場
    TV・通信 インターネット対応、インターネット使用料無料
    その他 宅配BOX、バルコニー、エレベーター
    契約期間 2年 現況 居住中
    条件等 入居可能時期 2026年1月中旬予定
    更新料 新賃料 1ヶ月 物件番号 1135077019
    情報公開日 2025年12月18日 次回更新予定日 2026年1月1日
    ケータイ用バーコード

    QRコード

    スマートフォンでこの物件を見る
    スマートフォンからもこの物件をご覧になれます。
    ※「-」と表示されている項目については、情報提供会社にご確認ください。

    この物件の周辺情報

    周辺施設 ファミリーマート 横浜楠町店
    距離 103m
    周辺施設 セブンイレブン 横浜南軽井沢店
    距離 231m
    周辺施設 まいばすけっと 横浜楠町店
    距離 273m
    周辺施設 ダイエー横浜西口店
    距離 521m
    周辺施設 ヨドバシカメラマルチメディア横浜
    距離 685m
    周辺施設 ドン・キホーテ 横浜西口店
    距離 583m

    クイックお問い合わせ

    ここから簡単にお問い合わせをすることができます。
    (SSLでの暗号化での送信を希望されるお客さまは こちら よりお問い合わせください)

    お問い合わせ内容(必須)
    お名前(必須) 姓  名 
    メールアドレス(必須)
    ※携帯電話のメールアドレスをご入力される方はこちらをご確認ください
    電話番号(必須)
    - -

    ※入力いただいた電話番号へSMSまたは音声でパスワードをご連絡します。

    携帯電話の番号をご入力の方へ

    携帯電話の番号をご入力の方へ
    確認画面にて送信ボタンをクリックするとSMSが携帯電話に届きます。
    そのSMSに記載のパスワード(認証番号)を入力し、お問い合わせを完了してください。
    尚、SMSの送信者番号は 0005 202 760 となります。
    これはアットホームの固定番号です。

    備考欄 希望条件、物件案内希望日、質問などがございましたらご記入ください。
    お問い合わせを行う前に「個人情報の取り扱いについて」を必ずお読みください。
    「個人情報の取り扱いについて」に同意いただいた場合は「上記にご同意の上 確認画面へ進む」のボタンをクリックしてください。

    個人情報の取り扱いについて

    皆さまが送付された個人情報はアットホーム(株)のサーバを経由し、お問い合わせ先の不動産会社にメールまたはFAXにて転送されるためアットホーム(株)にも保管されます。アットホーム(株)で保管された個人情報の取り扱いについては、【こちら】をご覧ください。
    また、本画面でご記入いただいた個人情報は、お問い合わせ先の不動産会社でも保管します。 お問い合わせ先の不動産会社が保管する個人情報の取り扱いについては、不動産会社に直接お問い合わせください。

    情報提供会社

    情報提供会社

    (株)ネクストライフ 横浜店

    国土交通大臣免許(3)第8175号

    交通:
    JR京浜東北線/横浜駅 徒歩5分
    神奈川県横浜市神奈川区鶴屋町2丁目21-9 三善ビル5階
    TEL:
    0120-955-199
    FAX:
    045-620-4527
    所属団体:
    (公社)神奈川県宅地建物取引業協会会員
    (公社)首都圏不動産公正取引協議会加盟

    取引態様:仲介

    • 会社情報
    • 00267740
    スマートフォンで
    この不動産会社を見る
    QRコード
    • とりあえず保存
    • お問い合わせ
    • 提携サイト等より掲載されている物件情報につきましては、不動産会社詳細情報にリンクされていないものがあります。
    • 物件に関するお問合せは、物件詳細ページの「情報提供会社」に表示されている不動産会社へ直接お願いいたします。
    • 間取図は、現況を優先させていただきます。
    • 映像は物件の一部を撮影したものです。物件の契約にあたっての最終判断はご自身の判断に基づいて行ってください。
    • 仲介手数料について仲介手数料

    アットホームは物件情報の適正化に努めております。 内容に誤りがある場合にはこちらへご連絡ください。

    【埼玉住まい情報】では、日本全国の物件から賃貸マンションや賃貸アパート・賃貸一戸建て等の賃貸住宅情報、新築マンション・分譲マンションや中古マンション等の売買マンション情報、新築一戸建てや中古一戸建てなどの戸建住宅、 土地など、総合的な不動産住宅情報検索サービスを提供致します。
    【埼玉住まい情報】から、選りすぐりの不動産物件を探してみましょう。

    【免責事項】
    このコーナーの運営はアットホーム株式会社(https://www.athome.co.jp/)が行っています。
    このコーナーに掲載している物件情報は、「アットホーム不動産情報ネットワーク」に加盟する不動産会社等(情報提供元)から提供されています。信頼性の高い情報提供が行えるよう、最大限の努力をしておりますが、その内容を保証するものではありません。 利用者のみなさまと各情報提供元との取引に起因する損害および情報が掲載されたことに起因する損害等については、株式会社イーシティ埼玉、およびアットホームは一切責任を負いません。
    各物件情報の内容や画像等はすべて現況を優先させていただきます。
    お取引等(お取引の準備、資金調達等を含みます)の際には、内容や契約条件等について、各情報提供元より十分な説明を受け、ご自身でご確認の上、判断してください。
    このコーナーへの物件情報のご掲載、その他不動産業務ソリューション等についての不動産会社様のお問合せはこちらからお願いいたします。

    物件画像: