愛知県名古屋市中村区鳥居通5丁目(中村公園駅)の賃貸:物件詳細
交通 所在地 |
駅徒歩 |
賃料 管理費等 |
敷金/保証金 礼金 |
間取り 面積 |
物件種目 築年月 |
名古屋市東山線/中村公園
愛知県名古屋市中村区鳥居通5丁目
|
2分
|
6.3万円
8,000円
|
なし / なし
なし
|
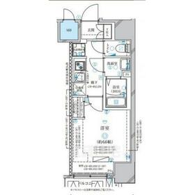
1K
24.28m²
|
賃貸マンション
2025年7月
|
角部屋、24時間セキュリティー、24時間換気システム
|
間取図
間取
|
外観
外観
|
<
その他の画像
>
|
交通 | 名古屋市東山線 中村公園駅 徒歩2分 |
---|
その他の交通 | 名古屋市東山線 中村日赤駅 徒歩10分 名古屋市東山線 岩塚駅 徒歩16分 |
所在地 |
愛知県名古屋市中村区鳥居通5丁目
|
物件種目 |
賃貸マンション |
賃料 |
6.3万円 |
管理費等 |
8,000円 |
敷金 / 保証金 |
なし / なし |
礼金 |
なし |
敷引 |
実費 |
保証金償却 |
- |
その他一時金 |
- |
保険等 |
要 2年 18,000円 |
維持費等 |
- |
間取り |
1K |
専有面積 |
24.28m² |
築年月 |
2025年7月
|
階建 / 階 |
10階建 / 6階 |
建物構造 |
RC |
総戸数 |
- |
主要採光面 |
北 |
駐車場 |
有 22,000円/月 |
バイク置き場 |
- |
駐輪場 |
有 |
建物名・部屋番号 |
ディアレイシャス名古屋中村公園2 |
ペット |
-
|
リフォーム履歴 |
- |
リノベーション履歴 |
- |
備考 |
賃貸保証等:加入要(保証会社利用必須 エポスカード エポスROOMiD 初回50% 月次1%)
管理形態/管理員の勤務形態:-/巡回
管理人巡回
当社は初期費用クレジット決済可、分割も24回可です。ご自宅や最寄り駅、お客様送迎サービスしてます。
|
エネルギー消費性能 |
- |
断熱性能 |
- |
目安光熱費 |
- |
バス・トイレ |
バス・トイレ別、浴室乾燥機、シャワー付洗面化粧台、洗面所独立、洗面所、シャワー、温水洗浄便座、トイレ |
キッチン |
システムキッチン |
セキュリティー |
オートロック、モニター付インターホン |
収納 |
- |
設備・サービス |
室内洗濯機置場、給湯、都市ガス、エアコン |
TV・通信 |
ケーブルTV、CS、BS端子 |
その他 |
宅配BOX、バルコニー、駐輪場、エレベーター |
契約期間 |
2年 |
現況 |
空家 |
条件等 |
- |
入居可能時期 |
即時 |
更新料 |
63,000円 |
物件番号 |
1135123507 |
情報公開日 |
2025年8月13日 |
次回更新予定日 |
2025年10月28日 |
ケータイ用バーコード |
- スマートフォンでこの物件を見る
- スマートフォンからもこの物件をご覧になれます。
|
※「-」と表示されている項目については、情報提供会社にご確認ください。
周辺施設 |
中村区役所 |
距離 |
1612m |
写真を見る |
ここから簡単にお問い合わせをすることができます。
(SSLでの暗号化での送信を希望されるお客さまは
こちら
よりお問い合わせください)
お問い合わせを行う前に
「個人情報の取り扱いについて」を必ずお読みください。
「個人情報の取り扱いについて」に同意いただいた場合は「上記にご同意の上 確認画面へ進む」のボタンをクリックしてください。
個人情報の取り扱いについて
皆さまが送付された個人情報はアットホーム(株)のサーバを経由し、お問い合わせ先の不動産会社にメールまたはFAXにて転送されるためアットホーム(株)にも保管されます。アットホーム(株)で保管された個人情報の取り扱いについては、【こちら】をご覧ください。
また、本画面でご記入いただいた個人情報は、お問い合わせ先の不動産会社でも保管します。 お問い合わせ先の不動産会社が保管する個人情報の取り扱いについては、不動産会社に直接お問い合わせください。
愛知県知事免許(3)第22529号 |
---|
- 交通:
- 名古屋市桜通線/名古屋駅 徒歩1分
- 愛知県名古屋市中村区椿町16-19
- TEL:
- 052-452-4146
- FAX:
- 052-452-1146
- 所属団体:
- (公社)全日本不動産協会会員東海不動産公正取引協議会加盟
取引態様:仲介  - 40404817
|
- スマートフォンで
この不動産会社を見る

|
- 提携サイト等より掲載されている物件情報につきましては、不動産会社詳細情報にリンクされていないものがあります。
- 物件に関するお問合せは、物件詳細ページの「情報提供会社」に表示されている不動産会社へ直接お願いいたします。
- 間取図は、現況を優先させていただきます。
- 映像は物件の一部を撮影したものです。物件の契約にあたっての最終判断はご自身の判断に基づいて行ってください。
- 仲介手数料について

アットホームは物件情報の適正化に努めております。
内容に誤りがある場合にはこちらへご連絡ください。