神奈川県茅ヶ崎市中海岸3丁目(茅ケ崎駅)の賃貸:物件詳細
交通 所在地 |
駅徒歩 |
賃料 管理費等 |
敷金/保証金 礼金 |
間取り 面積 |
物件種目 築年月 |
|
JR東海道本線/茅ケ崎
神奈川県茅ヶ崎市中海岸3丁目
|
15分
|
21万円
15,000円
|
1ヶ月 / なし
1ヶ月
|
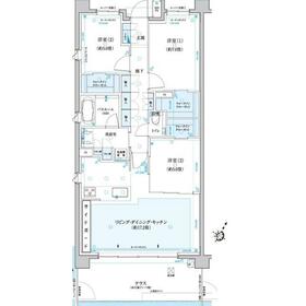
3LDK
82.07m²
|
賃貸マンション
2023年5月(築2年11ヶ月)
|
分譲タイプ、常時ゴミ出し可能、24時間換気システム
|
|
間取図
|
|
その他の画像
|
| 交通 | JR東海道本線 茅ケ崎駅 徒歩15分 |
|---|
| その他の交通 | 湘南新宿ライン(前橋〜小田原) 茅ケ崎駅 徒歩15分 JR相模線 茅ケ崎駅 徒歩15分 |
| 所在地 |
神奈川県茅ヶ崎市中海岸3丁目
|
| 物件種目 |
賃貸マンション |
| 賃料 |
21万円 |
管理費等 |
15,000円 |
| 敷金 / 保証金 |
1ヶ月 / なし |
礼金 |
1ヶ月 |
| 敷引 |
- |
保証金償却 |
- |
| その他一時金 |
アクト安心ライフ:16,500円 |
保険等 |
要 2年 22,000円 |
| 維持費等 |
- |
| 間取り |
3LDK(LDK17.2・洋室7・洋室5・洋室5) |
専有面積 |
82.07m² |
| 築年月 |
2023年5月(築2年11ヶ月)
|
階建 / 階 |
4階建 / 1階 |
| 建物構造 |
RC |
総戸数 |
- |
| 主要採光面 |
南東 |
駐車場 |
無 |
| バイク置き場 |
無 |
駐輪場 |
無 |
| 建物名・部屋番号 |
クリオ茅ヶ崎中海岸グランヴィラ 211 |
ペット |
-
|
| アピールポイント |
海に徒歩でアクセスできる築浅の分譲型マンション |
| リフォーム履歴 |
- |
| リノベーション履歴 |
- |
| 備考 |
賃貸保証等:加入要(契約時、初回保証料:総賃料の50%(最低保証料20,000円)、 月額保証料:1,500円~)
管理形態/管理員の勤務形態:-/日勤
バルコニー:14.95m²
管理人日勤
鍵交換費用:38,500円
アクト安心ライフ24:16,500円
※保証会社必須
契約時総賃料の50%(毎月2,500円)
※短期(1年以内)解約時違約金1ヶ月。
※定期借家、2029年2月末まで
※海外オーナー
※リビングに腰高のサイドボードあり
|
| エネルギー消費性能 |
- |
| 断熱性能 |
- |
| 目安光熱費 |
- |
| バス・トイレ |
バス・トイレ別、浴室乾燥機、オートバス、追焚機能、洗面所独立、洗面所、洗面台、シャワー、温水洗浄便座、トイレ |
| キッチン |
カウンターキッチン、システムキッチン、食器洗浄乾燥機、浄水器、3口以上コンロ、ガスコンロ付 |
| セキュリティー |
オートロック、モニター付インターホン、ディンプルキー、防犯カメラ |
| 収納 |
ウォークインクローゼット、シューズボックス |
| 設備・サービス |
エアコン2台以上、室内洗濯機置場、洗濯機置場、省エネ給湯器、全居室フローリング、エアコン、照明器具 |
| TV・通信 |
インターネット使用料無料 |
| その他 |
宅配BOX、エレベーター2基以上、バルコニー、エレベーター |
| 契約期間 |
2029年2月28日まで |
現況 |
居住中 |
| 条件等 |
定期借家 |
入居可能時期 |
相談 |
| 更新料 |
- |
物件番号 |
1136047520 |
| 情報公開日 |
2026年3月6日 |
次回更新予定日 |
2026年3月20日 |
| ケータイ用バーコード |
- スマートフォンでこの物件を見る
- スマートフォンからもこの物件をご覧になれます。
|
※「-」と表示されている項目については、情報提供会社にご確認ください。
| 周辺施設 |
ローソン・スリーエフ茅ヶ崎中海岸店 |
| 距離 |
310m |
| 周辺施設 |
セブンイレブン茅ヶ崎サザンビーチ店 |
| 距離 |
491m |
| 周辺施設 |
クリエイトエス・ディー茅ヶ崎南湖店 |
| 距離 |
699m |
| 周辺施設 |
クリエイトエス・ディー茅ヶ崎雄三通り店 |
| 距離 |
712m |
| 周辺施設 |
ブックオフ茅ヶ崎駅北口店 |
| 距離 |
969m |
| 周辺施設 |
ヤマダデンキヤマダアウトレット茅ヶ崎店 |
| 距離 |
1151m |
ここから簡単にお問い合わせをすることができます。
(SSLでの暗号化での送信を希望されるお客さまは
こちら
よりお問い合わせください)
お問い合わせを行う前に
「個人情報の取り扱いについて」を必ずお読みください。
「個人情報の取り扱いについて」に同意いただいた場合は「上記にご同意の上 確認画面へ進む」のボタンをクリックしてください。
個人情報の取り扱いについて
皆さまが送付された個人情報はアットホーム(株)のサーバを経由し、お問い合わせ先の不動産会社にメールまたはFAXにて転送されるためアットホーム(株)にも保管されます。アットホーム(株)で保管された個人情報の取り扱いについては、【こちら】をご覧ください。
また、本画面でご記入いただいた個人情報は、お問い合わせ先の不動産会社でも保管します。 お問い合わせ先の不動産会社が保管する個人情報の取り扱いについては、不動産会社に直接お問い合わせください。
国土交通大臣免許(9)第4118号 |
|---|
- 交通:
- JR山手線/渋谷駅 徒歩15分
- 東京都渋谷区神泉町9-6 明和地所渋谷神泉ビル
- TEL:
- 03-6690-7729
- FAX:
- 03-5489-2037
- 所属団体:
- (公社)東京都宅地建物取引業協会会員(公社)首都圏不動産公正取引協議会加盟
取引態様:代理  - 00263619
|
- スマートフォンで
この不動産会社を見る

|
- 提携サイト等より掲載されている物件情報につきましては、不動産会社詳細情報にリンクされていないものがあります。
- 物件に関するお問合せは、物件詳細ページの「情報提供会社」に表示されている不動産会社へ直接お願いいたします。
- 間取図は、現況を優先させていただきます。
- 映像は物件の一部を撮影したものです。物件の契約にあたっての最終判断はご自身の判断に基づいて行ってください。
- 仲介手数料について

アットホームは物件情報の適正化に努めております。
内容に誤りがある場合にはこちらへご連絡ください。