福岡県春日市須玖北4丁目(南福岡駅)の賃貸:物件詳細
交通 所在地 |
駅徒歩 |
賃料 管理費等 |
敷金/保証金 礼金 |
間取り 面積 |
物件種目 築年月 |
|
JR鹿児島本線/南福岡
福岡県春日市須玖北4丁目
|
19分
|
6.5万円
5,000円
|
なし / なし
なし
|
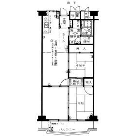
3LDK
63.80m²
|
賃貸マンション
1975年9月(築50年4ヶ月)
|
分譲タイプ、閑静な住宅街
|
|
間取図
|
外観
|
<
その他の画像
>
|
| 交通 | JR鹿児島本線 南福岡駅 徒歩19分 |
|---|
| その他の交通 | JR鹿児島本線 笹原駅 徒歩19分 西鉄天神大牟田線 井尻駅 徒歩18分 |
| 所在地 |
福岡県春日市須玖北4丁目
|
| 物件種目 |
賃貸マンション |
| 賃料 |
6.5万円 |
管理費等 |
5,000円 |
| 敷金 / 保証金 |
なし / なし |
礼金 |
なし |
| 敷引 |
- |
保証金償却 |
- |
| その他一時金 |
- |
保険等 |
要 2年 |
| 維持費等 |
- |
クレジットカード決済 |
初期費用可 |
| 間取り |
3LDK |
専有面積 |
63.80m² |
| 築年月 |
1975年9月(築50年4ヶ月)
|
階建 / 階 |
13階建 / 2階 |
| 建物構造 |
SRC |
総戸数 |
- |
| 主要採光面 |
|
駐車場 |
無 |
| バイク置き場 |
- |
駐輪場 |
- |
| 建物名・部屋番号 |
ローレルハイツ春日 211 |
ペット |
-
|
| リフォーム履歴 |
- |
| リノベーション履歴 |
- |
| 備考 |
管理形態/管理員の勤務形態:-/-
敷金・礼金ゼロ♪分譲賃貸マンション♪
★初期費用分割相談可★お問い合わせはオクゼン不動産春日原店まで★
|
| エネルギー消費性能 |
- |
| 断熱性能 |
- |
| 目安光熱費 |
- |
| バス・トイレ |
バス・トイレ別、追焚機能、洗面所独立、シャワー、トイレ |
| キッチン |
ガスコンロ可 |
| セキュリティー |
- |
| 収納 |
収納スペース、シューズボックス |
| 設備・サービス |
室内洗濯機置場、給湯、フローリング、都市ガス、ダウンライト、照明器具 |
| TV・通信 |
- |
| その他 |
エレベーター |
| 契約期間 |
2年 |
現況 |
空家 |
| 条件等 |
- |
入居可能時期 |
相談 |
| 仲介手数料 |
7.15万円 |
|
|
| 更新料 |
なし |
物件番号 |
1136194315 |
| 情報公開日 |
2025年12月12日 |
次回更新予定日 |
2025年12月28日 |
| ケータイ用バーコード |
- スマートフォンでこの物件を見る
- スマートフォンからもこの物件をご覧になれます。
|
※「-」と表示されている項目については、情報提供会社にご確認ください。
| 周辺施設 |
春日岡本郵便局 |
| 距離 |
162m |
写真を見る |
| 周辺施設 |
医療法人徳洲会福岡徳洲会病院 |
| 距離 |
408m |
写真を見る |
| 周辺施設 |
福岡銀行井尻支店 |
| 距離 |
1264m |
写真を見る |
ここから簡単にお問い合わせをすることができます。
(SSLでの暗号化での送信を希望されるお客さまは
こちら
よりお問い合わせください)
お問い合わせを行う前に
「個人情報の取り扱いについて」を必ずお読みください。
「個人情報の取り扱いについて」に同意いただいた場合は「上記にご同意の上 確認画面へ進む」のボタンをクリックしてください。
個人情報の取り扱いについて
皆さまが送付された個人情報はアットホーム(株)のサーバを経由し、お問い合わせ先の不動産会社にメールまたはFAXにて転送されるためアットホーム(株)にも保管されます。アットホーム(株)で保管された個人情報の取り扱いについては、【こちら】をご覧ください。
また、本画面でご記入いただいた個人情報は、お問い合わせ先の不動産会社でも保管します。 お問い合わせ先の不動産会社が保管する個人情報の取り扱いについては、不動産会社に直接お問い合わせください。
福岡県知事免許(9)第10406号 |
|---|
- 交通:
- 西鉄天神大牟田線/春日原駅 徒歩2分
- 福岡県春日市春日原北町3丁目25 丸洋ビル1F
- TEL:
- 092-591-8663
- FAX:
- 092-581-0932
- 所属団体:
- (公社)福岡県宅地建物取引業協会会員(一社)九州不動産公正取引協議会加盟
取引態様:仲介  - 80000176
|
- スマートフォンで
この不動産会社を見る

|
- 提携サイト等より掲載されている物件情報につきましては、不動産会社詳細情報にリンクされていないものがあります。
- 物件に関するお問合せは、物件詳細ページの「情報提供会社」に表示されている不動産会社へ直接お願いいたします。
- 間取図は、現況を優先させていただきます。
- 映像は物件の一部を撮影したものです。物件の契約にあたっての最終判断はご自身の判断に基づいて行ってください。
- 仲介手数料について

アットホームは物件情報の適正化に努めております。
内容に誤りがある場合にはこちらへご連絡ください。