東京都新宿区西落合4丁目(東長崎駅)の賃貸:物件詳細
交通 所在地 |
駅徒歩 |
賃料 管理費等 |
敷金/保証金 礼金 |
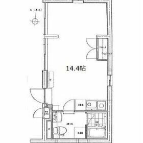
間取り 面積 |
物件種目 築年月 |
|
西武池袋線/東長崎
東京都新宿区西落合4丁目
|
6分
|
11万円
10,000円
|
なし / なし
1ヶ月
|
ワンルーム
29.21m²
|
賃貸マンション
2018年8月(築7年5ヶ月)
|
デザイナーズ、常時ゴミ出し可能、角部屋、24時間セキュリティー、2面採光、24時間換気システム、閑静な住宅街、外観タイル張り、保証人不要
|
|
間取図
|
外観
|
<
その他の画像
>
|
| 交通 | 西武池袋線 東長崎駅 徒歩6分 |
|---|
| その他の交通 | 都営大江戸線 落合南長崎駅 徒歩7分 都営大江戸線 新江古田駅 徒歩13分 |
| 所在地 |
東京都新宿区西落合4丁目
|
| 物件種目 |
賃貸マンション |
| 賃料 |
11万円 |
管理費等 |
10,000円 |
| 敷金 / 保証金 |
なし / なし |
礼金 |
1ヶ月 |
| 敷引 |
- |
保証金償却 |
- |
| その他一時金 |
アクト安心ライフ24/2年:16,500円、除菌消臭代:11,000円、契約事務手数料:11,000円、鍵交換代等:33,000円~ |
保険等 |
要 2年 20,000円 |
| 維持費等 |
- |
| 間取り |
ワンルーム(洋14.4) |
専有面積 |
29.21m² |
| 築年月 |
2018年8月(築7年5ヶ月)
|
階建 / 階 |
5階建 / 3階 |
| 建物構造 |
RC |
総戸数 |
- |
| 主要採光面 |
西 |
駐車場 |
- |
| バイク置き場 |
- |
駐輪場 |
- |
| 建物名・部屋番号 |
リノ西落合 |
ペット |
-
|
| アピールポイント |
住みやすい住環境と心やすらぐ住空間、生活が考えられた使いやすい間取り、快適な生活が待っているお部屋です。是非一度現地をご覧ください。03-5312-8061◆THEROOMまでお気軽にご連絡下さい。 |
| リフォーム履歴 |
- |
| リノベーション履歴 |
- |
| 備考 |
賃貸保証等:加入要(ジェイリース 初回保証料:総賃料の50%月次保証料:賃料等の1.2%)
管理形態/管理員の勤務形態:-/巡回
管理人巡回
お部屋探しをきっかけに出会いを大切に一人ひとりの満足を追求します。私たちはお客様本人はもちろん、その家族が幸せになる責任を担います。お部屋探しは人生の大切な場面だからこそ力になりたいと考え感動と満足を追い求めています。寄り添い、頼ってもらえる、お客様の為の会社でありたいと考えています。東京に限らず全エリアで心に残るお部屋探しを真心込めてご提案させて頂きます。
|
| エネルギー消費性能 |
- |
| 断熱性能 |
- |
| 目安光熱費 |
- |
| バス・トイレ |
バス・トイレ別、浴室乾燥機、シャワー付洗面化粧台、洗面所独立、洗面所、洗面台、シャワー、温水洗浄便座、トイレ |
| キッチン |
システムキッチン、IHクッキングヒーター、2口コンロ |
| セキュリティー |
モニター付オートロック、オートロック、モニター付インターホン、防犯カメラ |
| 収納 |
全居室収納、収納スペース、クローゼット、シューズボックス |
| 設備・サービス |
室内洗濯機置場、洗濯機置場、都市ガス給湯、給湯、全居室フローリング、フローリング、都市ガス、エアコン、冷房、ダウンライト、照明器具 |
| TV・通信 |
インターネット対応、CS、BS端子 |
| その他 |
宅配BOX |
| 契約期間 |
2年 |
現況 |
居住中 |
| 条件等 |
- |
入居可能時期 |
2026年1月中旬予定 |
| 更新料 |
新賃料 1ヶ月 |
物件番号 |
1136217919 |
| 情報公開日 |
2025年12月19日 |
次回更新予定日 |
2026年1月2日 |
| ケータイ用バーコード |
- スマートフォンでこの物件を見る
- スマートフォンからもこの物件をご覧になれます。
|
※「-」と表示されている項目については、情報提供会社にご確認ください。
| 周辺施設 |
牛繁東長崎店 |
| 距離 |
267m |
写真を見る |
| 周辺施設 |
カフェプリヤートナ |
| 距離 |
356m |
写真を見る |
| 周辺施設 |
ふーちーくーちー |
| 距離 |
410m |
写真を見る |
| 周辺施設 |
オリーブコーヒー |
| 距離 |
403m |
写真を見る |
| 周辺施設 |
カレーハウスCoCo壱番屋 西武東長崎駅前店 |
| 距離 |
413m |
写真を見る |
ここから簡単にお問い合わせをすることができます。
(SSLでの暗号化での送信を希望されるお客さまは
こちら
よりお問い合わせください)
お問い合わせを行う前に
「個人情報の取り扱いについて」を必ずお読みください。
「個人情報の取り扱いについて」に同意いただいた場合は「上記にご同意の上 確認画面へ進む」のボタンをクリックしてください。
個人情報の取り扱いについて
皆さまが送付された個人情報はアットホーム(株)のサーバを経由し、お問い合わせ先の不動産会社にメールまたはFAXにて転送されるためアットホーム(株)にも保管されます。アットホーム(株)で保管された個人情報の取り扱いについては、【こちら】をご覧ください。
また、本画面でご記入いただいた個人情報は、お問い合わせ先の不動産会社でも保管します。 お問い合わせ先の不動産会社が保管する個人情報の取り扱いについては、不動産会社に直接お問い合わせください。
東京都知事免許(1)第107523号 |
|---|
- 交通:
- 東京メトロ丸ノ内線/新宿御苑前駅
- 東京都新宿区新宿1丁目13-12 FIRSTビル5F-B
- TEL:
- 03-5312-8061
- 所属団体:
- (公社)全日本不動産協会会員(公社)首都圏不動産公正取引協議会加盟
取引態様:仲介  - 00272111
|
- スマートフォンで
この不動産会社を見る

|
- 提携サイト等より掲載されている物件情報につきましては、不動産会社詳細情報にリンクされていないものがあります。
- 物件に関するお問合せは、物件詳細ページの「情報提供会社」に表示されている不動産会社へ直接お願いいたします。
- 間取図は、現況を優先させていただきます。
- 映像は物件の一部を撮影したものです。物件の契約にあたっての最終判断はご自身の判断に基づいて行ってください。
- 仲介手数料について

アットホームは物件情報の適正化に努めております。
内容に誤りがある場合にはこちらへご連絡ください。