東京都文京区水道1丁目(江戸川橋駅)の賃貸:物件詳細
交通 所在地 |
駅徒歩 |
賃料 管理費等 |
敷金/保証金 礼金 |
間取り 面積 |
物件種目 築年月 |
|
東京メトロ有楽町線/江戸川橋
東京都文京区水道1丁目
|
7分
|
14.5万円
15,000円
|
なし / なし
1ヶ月
|
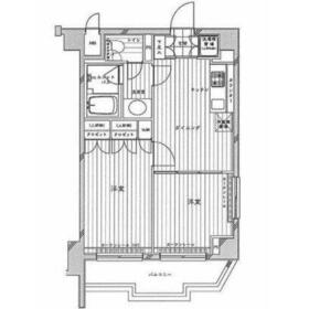
2DK
37.45m²
|
賃貸マンション
2006年3月(築19年10ヶ月)
|
分譲タイプ、常時ゴミ出し可能、角部屋、二人入居可、24時間セキュリティー、2面採光、24時間換気システム、閑静な住宅街、外観タイル張り、保証人不要
|
|
間取図
|
外観
|
<
その他の画像
>
|
| 交通 | 東京メトロ有楽町線 江戸川橋駅 徒歩7分 |
|---|
| その他の交通 | 東京メトロ東西線 神楽坂駅 徒歩11分 JR総武線 飯田橋駅 徒歩15分 |
| 所在地 |
東京都文京区水道1丁目
|
| 物件種目 |
賃貸マンション |
| 賃料 |
14.5万円 |
管理費等 |
15,000円 |
| 敷金 / 保証金 |
なし / なし |
礼金 |
1ヶ月 |
| 敷引 |
- |
保証金償却 |
- |
| その他一時金 |
室内抗菌代:16,500円、鍵交換代等:33,000円~ |
保険等 |
要 2年 2,200円 |
| 維持費等 |
ベルプラス:2,200円/月 |
| 間取り |
2DK(DK6、洋6、洋4.5) |
専有面積 |
37.45m² |
| 築年月 |
2006年3月(築19年10ヶ月)
|
階建 / 階 |
8階建 / 4階 |
| 建物構造 |
RC |
総戸数 |
- |
| 主要採光面 |
東 |
駐車場 |
- |
| バイク置き場 |
- |
駐輪場 |
有 |
| 建物名・部屋番号 |
ルーブル飯田橋 |
ペット |
-
|
| アピールポイント |
住みやすい住環境と心やすらぐ住空間、生活が考えられた使いやすい間取り、快適な生活が待っているお部屋です。是非一度現地をご覧ください。03-5312-8061◆THEROOMまでお気軽にご連絡下さい。 |
| リフォーム履歴 |
- |
| リノベーション履歴 |
- |
| 備考 |
賃貸保証等:加入要(初回保証料:総賃料の50%月次保証料:総賃料の1%)
管理形態/管理員の勤務形態:-/巡回
管理人巡回
お部屋探しをきっかけに出会いを大切に一人ひとりの満足を追求します。私たちはお客様本人はもちろん、その家族が幸せになる責任を担います。お部屋探しは人生の大切な場面だからこそ力になりたいと考え感動と満足を追い求めています。寄り添い、頼ってもらえる、お客様の為の会社でありたいと考えています。東京に限らず全エリアで心に残るお部屋探しを真心込めてご提案させて頂きます。
|
| エネルギー消費性能 |
- |
| 断熱性能 |
- |
| 目安光熱費 |
- |
| バス・トイレ |
バス・トイレ別、浴室乾燥機、追焚機能、シャワー付洗面化粧台、洗面所独立、洗面所、洗面台、シャワー、温水洗浄便座、トイレ |
| キッチン |
システムキッチン、2口コンロ、ガスコンロ可、グリル |
| セキュリティー |
モニター付オートロック、オートロック、モニター付インターホン、ディンプルキー、ダブルロックドア、防犯カメラ |
| 収納 |
全居室収納、収納スペース、クローゼット、シューズボックス |
| 設備・サービス |
室内洗濯機置場、洗濯機置場、都市ガス給湯、給湯、全居室フローリング、フローリング、都市ガス、エアコン、冷房、ダウンライト、照明器具 |
| TV・通信 |
インターネット対応、光ファイバー、CS、BS端子 |
| その他 |
宅配BOX、バルコニー、駐輪場、エレベーター |
| 契約期間 |
2年 |
現況 |
居住中 |
| 条件等 |
- |
入居可能時期 |
2026年2月下旬予定 |
| 更新料 |
新賃料 1.5ヶ月 |
物件番号 |
1136243319 |
| 情報公開日 |
2025年12月19日 |
次回更新予定日 |
2026年1月2日 |
| ケータイ用バーコード |
- スマートフォンでこの物件を見る
- スマートフォンからもこの物件をご覧になれます。
|
※「-」と表示されている項目については、情報提供会社にご確認ください。
| 周辺施設 |
まいばすけっと 西五軒町店 |
| 距離 |
525m |
写真を見る |
| 周辺施設 |
セブンイレブン 文京春日1丁目店 |
| 距離 |
553m |
写真を見る |
| 周辺施設 |
居酒屋七ツ半 |
| 距離 |
489m |
写真を見る |
| 周辺施設 |
文京フアーマシー |
| 距離 |
747m |
写真を見る |
| 周辺施設 |
焼き鳥YaYa |
| 距離 |
742m |
写真を見る |
| 周辺施設 |
松屋 江戸川橋店 |
| 距離 |
912m |
写真を見る |
| 周辺施設 |
肉のハナマサ 小石川店 |
| 距離 |
1493m |
写真を見る |
ここから簡単にお問い合わせをすることができます。
(SSLでの暗号化での送信を希望されるお客さまは
こちら
よりお問い合わせください)
お問い合わせを行う前に
「個人情報の取り扱いについて」を必ずお読みください。
「個人情報の取り扱いについて」に同意いただいた場合は「上記にご同意の上 確認画面へ進む」のボタンをクリックしてください。
個人情報の取り扱いについて
皆さまが送付された個人情報はアットホーム(株)のサーバを経由し、お問い合わせ先の不動産会社にメールまたはFAXにて転送されるためアットホーム(株)にも保管されます。アットホーム(株)で保管された個人情報の取り扱いについては、【こちら】をご覧ください。
また、本画面でご記入いただいた個人情報は、お問い合わせ先の不動産会社でも保管します。 お問い合わせ先の不動産会社が保管する個人情報の取り扱いについては、不動産会社に直接お問い合わせください。
東京都知事免許(1)第107523号 |
|---|
- 交通:
- 東京メトロ丸ノ内線/新宿御苑前駅
- 東京都新宿区新宿1丁目13-12 FIRSTビル5F-B
- TEL:
- 03-5312-8061
- 所属団体:
- (公社)全日本不動産協会会員(公社)首都圏不動産公正取引協議会加盟
取引態様:仲介  - 00272111
|
- スマートフォンで
この不動産会社を見る

|
- 提携サイト等より掲載されている物件情報につきましては、不動産会社詳細情報にリンクされていないものがあります。
- 物件に関するお問合せは、物件詳細ページの「情報提供会社」に表示されている不動産会社へ直接お願いいたします。
- 間取図は、現況を優先させていただきます。
- 映像は物件の一部を撮影したものです。物件の契約にあたっての最終判断はご自身の判断に基づいて行ってください。
- 仲介手数料について

アットホームは物件情報の適正化に努めております。
内容に誤りがある場合にはこちらへご連絡ください。