大阪府大阪市旭区赤川2丁目(城北公園通駅)の賃貸:物件詳細
交通 所在地 |
駅徒歩 |
賃料 管理費等 |
敷金/保証金 礼金 |
間取り 面積 |
物件種目 築年月 |
|
JRおおさか東線/城北公園通
大阪府大阪市旭区赤川2丁目
|
9分
|
7.7万円
4,900円
|
なし / なし
10万円
|
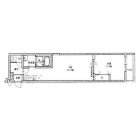
1LDK
41.54m²
|
賃貸アパート
2024年4月(築1年7ヶ月)
|
角部屋、二人入居可、24時間換気システム、閑静な住宅街、IT重説対応物件、保証人不要
|
|
間取図
|
外観
|
<
その他の画像
>
|
| 交通 | JRおおさか東線 城北公園通駅 徒歩9分 |
|---|
| その他の交通 | 地下鉄谷町線 千林大宮駅 徒歩19分 地下鉄谷町線 関目高殿駅 徒歩27分 |
| 所在地 |
大阪府大阪市旭区赤川2丁目
|
| 物件種目 |
賃貸アパート |
| 賃料 |
7.7万円 |
管理費等 |
4,900円 |
| 敷金 / 保証金 |
なし / なし |
礼金 |
10万円 |
| 敷引 |
- |
保証金償却 |
- |
| その他一時金 |
室内清掃費用:33,000円、鍵交換代等:11,000円~ |
保険等 |
要 |
| 維持費等 |
- |
| 間取り |
1LDK(LDK12.7洋室6.1) |
専有面積 |
41.54m² |
| 築年月 |
2024年4月(築1年7ヶ月)
|
階建 / 階 |
3階建 / 2階 |
| 建物構造 |
木造 |
総戸数 |
15戸 |
| 主要採光面 |
東 |
駐車場 |
近有 16,500円/月 |
| バイク置き場 |
- |
駐輪場 |
有 |
| 建物名・部屋番号 |
|
ペット |
-
|
| アピールポイント |
当店ではベテランスタッフが、お客様に安心して新生活を送って頂けますよう精一杯のサポートを致しますm(._.)mご内見の際は、現地集合やお問い合わせ物件の最寄り駅集合も可能です♪JR千里丘駅前の立地で、お立ち寄りの際も便利です(^^♪初期費用のクレジット決済も可能ですので、ご利用の際はスタッフまでお申し付け下さいませ(^o^)/
|
| リフォーム履歴 |
- |
| リノベーション履歴 |
- |
| 備考 |
賃貸保証等:加入要(初期費用は総賃料の50%)
管理形態/管理員の勤務形態:-/-
IT重説対応物件
|
| エネルギー消費性能 |
- |
| 断熱性能 |
- |
| 目安光熱費 |
- |
| バス・トイレ |
バス・トイレ別、浴室乾燥機、シャワー付洗面化粧台、洗面所独立、洗面台、シャワー、温水洗浄便座、トイレ |
| キッチン |
システムキッチン、IHクッキングヒーター、2口コンロ |
| セキュリティー |
モニター付オートロック、オートロック、モニター付インターホン、防犯カメラ |
| 収納 |
クローゼット |
| 設備・サービス |
エアコン2台以上、室内洗濯機置場、都市ガス給湯、給湯、フローリング、室内物干し、都市ガス、照明器具 |
| TV・通信 |
インターネット対応、インターネット使用料無料、ケーブルTV、CS、BS端子 |
| その他 |
宅配BOX、バルコニー、駐輪場 |
| 契約期間 |
1年 |
現況 |
居住中 |
| 条件等 |
- |
入居可能時期 |
2025年12月中旬予定 |
| 更新料 |
7,700円 |
物件番号 |
1136342816 |
| 情報公開日 |
2025年10月24日 |
次回更新予定日 |
2025年11月7日 |
| ケータイ用バーコード |
- スマートフォンでこの物件を見る
- スマートフォンからもこの物件をご覧になれます。
|
※「-」と表示されている項目については、情報提供会社にご確認ください。
| 周辺施設 |
業務スーパー赤川店 |
| 距離 |
341m |
写真を見る |
| 周辺施設 |
コノミヤ赤川店 |
| 距離 |
490m |
写真を見る |
| 周辺施設 |
食品館アプロ中宮店 |
| 距離 |
886m |
写真を見る |
| 周辺施設 |
サンクス赤川2丁目店 |
| 距離 |
81m |
写真を見る |
| 周辺施設 |
ファミリーマート赤川三丁目店 |
| 距離 |
269m |
写真を見る |
| 周辺施設 |
ローソン生江二丁目店 |
| 距離 |
609m |
写真を見る |
| 周辺施設 |
ファミリーマート生江一丁目店 |
| 距離 |
566m |
写真を見る |
| 周辺施設 |
セブンイレブン大阪中宮1丁目店 |
| 距離 |
706m |
写真を見る |
ここから簡単にお問い合わせをすることができます。
(SSLでの暗号化での送信を希望されるお客さまは
こちら
よりお問い合わせください)
お問い合わせを行う前に
「個人情報の取り扱いについて」を必ずお読みください。
「個人情報の取り扱いについて」に同意いただいた場合は「上記にご同意の上 確認画面へ進む」のボタンをクリックしてください。
個人情報の取り扱いについて
皆さまが送付された個人情報はアットホーム(株)のサーバを経由し、お問い合わせ先の不動産会社にメールまたはFAXにて転送されるためアットホーム(株)にも保管されます。アットホーム(株)で保管された個人情報の取り扱いについては、【こちら】をご覧ください。
また、本画面でご記入いただいた個人情報は、お問い合わせ先の不動産会社でも保管します。 お問い合わせ先の不動産会社が保管する個人情報の取り扱いについては、不動産会社に直接お問い合わせください。
国土交通大臣免許(1)第10411号 |
|---|
- 交通:
- JR東海道本線/千里丘駅 徒歩1分
- 大阪府摂津市千里丘東2丁目10-1 フォルテ摂津1F
- TEL:
- 072-648-7009
- FAX:
- 072-648-7010
- 所属団体:
- (一社)大阪府宅地建物取引業協会会員(公社)近畿地区不動産公正取引協議会加盟
取引態様:仲介  - 50106156
|
- スマートフォンで
この不動産会社を見る

|
- 提携サイト等より掲載されている物件情報につきましては、不動産会社詳細情報にリンクされていないものがあります。
- 物件に関するお問合せは、物件詳細ページの「情報提供会社」に表示されている不動産会社へ直接お願いいたします。
- 間取図は、現況を優先させていただきます。
- 映像は物件の一部を撮影したものです。物件の契約にあたっての最終判断はご自身の判断に基づいて行ってください。
- 仲介手数料について

アットホームは物件情報の適正化に努めております。
内容に誤りがある場合にはこちらへご連絡ください。