神奈川県横浜市青葉区美しが丘2丁目(たまプラーザ駅)の賃貸:物件詳細
交通 所在地 |
駅徒歩 |
賃料 管理費等 |
敷金/保証金 礼金 |
間取り 面積 |
物件種目 築年月 |
|
東急田園都市線/たまプラーザ
神奈川県横浜市青葉区美しが丘2丁目
|
5分
|
18万円
15,000円
|
1ヶ月 / なし
1ヶ月
|
1LDK
67.11m²
|
賃貸マンション
2003年8月(築22年3ヶ月)
|
楽器相談、最上階、南向き、二人入居可、2面採光、閑静な住宅街、前面棟無、保証人不要
|
|
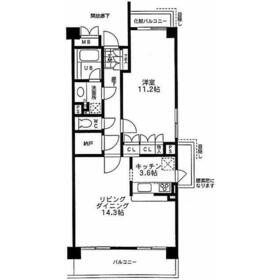
間取図
|
外観
|
<
その他の画像
>
|
| 交通 | 東急田園都市線 たまプラーザ駅 徒歩5分 |
|---|
| その他の交通 | 東急田園都市線 鷺沼駅 徒歩15分 ブルーライン あざみ野駅 徒歩21分 |
| 所在地 |
神奈川県横浜市青葉区美しが丘2丁目
|
| 物件種目 |
賃貸マンション |
| 賃料 |
18万円 |
管理費等 |
15,000円 |
| 敷金 / 保証金 |
1ヶ月 / なし |
礼金 |
1ヶ月 |
| 敷引 |
- |
保証金償却 |
- |
| その他一時金 |
なし、鍵交換代等:44,000円~ |
保険等 |
要 2年 16,550円 |
| 維持費等 |
町内会費:300円/月、口座振替事務手数料:110円/月 |
| 間取り |
1LDK(LDK17.9洋室11.2) |
専有面積 |
67.11m² |
| 築年月 |
2003年8月(築22年3ヶ月)
|
階建 / 階 |
5階建 / 5階 |
| 建物構造 |
RC |
総戸数 |
- |
| 主要採光面 |
南 |
駐車場 |
近有 18,700円/月 |
| バイク置き場 |
- |
駐輪場 |
有 |
| 建物名・部屋番号 |
シャトレ美しが丘 503 |
ペット |
-
|
| アピールポイント |
初期費用の分割決済相談可。
お問い合わせはお電話だとご案内もスムーズです。
弊社管理物件、掲載物件以外にもお客様のご要望、ご条件に合うほぼすべての物件をご提案、ご紹介させていただきます。また空き予定、未完成のお部屋でも同施工会社の類似物件の見学や周辺環境の確認などもお手伝いさせていただきます。
お気軽に~素敵なお部屋の最寄り駅~賃貸ステーションまでお問い合わせ下さいませ |
| リフォーム履歴 |
- |
| リノベーション履歴 |
- |
| 備考 |
賃貸保証等:加入要(初回契約時:賃料の50%・月額:賃料の1%)
管理形態/管理員の勤務形態:-/-
お部屋探しはお近くの賃貸ステーションへ!
★来店、見学のご希望はお電話、メールにて承ります。お気軽にご連絡ください★
|
| エネルギー消費性能 |
- |
| 断熱性能 |
- |
| 目安光熱費 |
- |
| バス・トイレ |
バス・トイレ別、追焚機能、洗面所独立、洗面台、シャワー、温水洗浄便座、トイレ |
| キッチン |
カウンターキッチン、システムキッチン、3口以上コンロ、ガスコンロ付、グリル |
| セキュリティー |
オートロック、モニター付インターホン、ダブルロックドア、火災警報器(報知機) |
| 収納 |
全居室収納、収納スペース、クローゼット、シューズボックス |
| 設備・サービス |
室内洗濯機置場、都市ガス給湯、給湯、全居室フローリング、フローリング、都市ガス、エアコン |
| TV・通信 |
インターネット対応、CATVインターネット、ケーブルTV、CS、BS端子 |
| その他 |
宅配BOX、バルコニー、駐輪場、エレベーター |
| 契約期間 |
2年 |
現況 |
居住中 |
| 条件等 |
- |
入居可能時期 |
指定有り2025年11月15日 |
| 更新料 |
新賃料 1ヶ月 |
物件番号 |
1136824416 |
| 情報公開日 |
2025年10月25日 |
次回更新予定日 |
2025年11月8日 |
| ケータイ用バーコード |
- スマートフォンでこの物件を見る
- スマートフォンからもこの物件をご覧になれます。
|
※「-」と表示されている項目については、情報提供会社にご確認ください。
| 周辺施設 |
SHIPSたまプラーザテラス店 |
| 距離 |
358m |
写真を見る |
| 周辺施設 |
東急ストアたまプラーザテラス店 |
| 距離 |
464m |
写真を見る |
| 周辺施設 |
まいばすけっとたまプラーザ店 |
| 距離 |
410m |
写真を見る |
| 周辺施設 |
ミニストップたまプラーザ店 |
| 距離 |
215m |
写真を見る |
| 周辺施設 |
Fit Care Expressたまプラーザ駅前店 |
| 距離 |
238m |
写真を見る |
| 周辺施設 |
横浜美しが丘郵便局 |
| 距離 |
492m |
写真を見る |
ここから簡単にお問い合わせをすることができます。
(SSLでの暗号化での送信を希望されるお客さまは
こちら
よりお問い合わせください)
お問い合わせを行う前に
「個人情報の取り扱いについて」を必ずお読みください。
「個人情報の取り扱いについて」に同意いただいた場合は「上記にご同意の上 確認画面へ進む」のボタンをクリックしてください。
個人情報の取り扱いについて
皆さまが送付された個人情報はアットホーム(株)のサーバを経由し、お問い合わせ先の不動産会社にメールまたはFAXにて転送されるためアットホーム(株)にも保管されます。アットホーム(株)で保管された個人情報の取り扱いについては、【こちら】をご覧ください。
また、本画面でご記入いただいた個人情報は、お問い合わせ先の不動産会社でも保管します。 お問い合わせ先の不動産会社が保管する個人情報の取り扱いについては、不動産会社に直接お問い合わせください。
国土交通大臣免許(3)第8686号 |
|---|
- 交通:
- 小田急小田原線/鶴川駅 徒歩1分
- 東京都町田市能ヶ谷1丁目4-7 アル・ヴェール1階
- TEL:
- 042-708-0023
- FAX:
- 042-708-0024
- 所属団体:
- (公社)全日本不動産協会会員(公社)首都圏不動産公正取引協議会加盟
取引態様:仲介  - 00265730
|
- スマートフォンで
この不動産会社を見る

|
- 提携サイト等より掲載されている物件情報につきましては、不動産会社詳細情報にリンクされていないものがあります。
- 物件に関するお問合せは、物件詳細ページの「情報提供会社」に表示されている不動産会社へ直接お願いいたします。
- 間取図は、現況を優先させていただきます。
- 映像は物件の一部を撮影したものです。物件の契約にあたっての最終判断はご自身の判断に基づいて行ってください。
- 仲介手数料について

アットホームは物件情報の適正化に努めております。
内容に誤りがある場合にはこちらへご連絡ください。