福岡県福岡市博多区那珂6丁目(竹下駅)の賃貸:物件詳細
交通 所在地 |
駅徒歩 |
賃料 管理費等 |
敷金/保証金 礼金 |
間取り 面積 |
物件種目 築年月 |
|
JR鹿児島本線/竹下
福岡県福岡市博多区那珂6丁目
|
7分
|
5.1万円
3,500円
|
なし / なし
1ヶ月
|
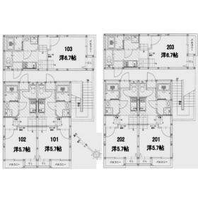
1K
23.90m²
|
賃貸アパート
2013年3月(築12年8ヶ月)
|
ペット相談、デザイナーズ、角部屋、最上階、24時間セキュリティー
|
|
間取図
|
リビング
|
<
その他の画像
>
|
| 交通 | JR鹿児島本線 竹下駅 徒歩7分 |
|---|
| その他の交通 | 西鉄天神大牟田線 大橋駅 徒歩20分 西鉄天神大牟田線 井尻駅 徒歩20分 |
| 所在地 |
福岡県福岡市博多区那珂6丁目
|
| 物件種目 |
賃貸アパート |
| 賃料 |
5.1万円 |
管理費等 |
3,500円 |
| 敷金 / 保証金 |
なし / なし |
礼金 |
1ヶ月 |
| 敷引 |
- |
保証金償却 |
- |
| その他一時金 |
- |
保険等 |
要 |
| 維持費等 |
- |
クレジットカード決済 |
初期費用可 |
| 間取り |
1K(洋5.7) |
専有面積 |
23.90m² |
| 築年月 |
2013年3月(築12年8ヶ月)
|
階建 / 階 |
2階建 / 2階 |
| 建物構造 |
木造 |
総戸数 |
- |
| 主要採光面 |
南西 |
駐車場 |
近有 12,000円/月 |
| バイク置き場 |
- |
駐輪場 |
有 無料 |
| 建物名・部屋番号 |
|
ペット |
相談 |
| リフォーム履歴 |
- |
| リノベーション履歴 |
- |
| 備考 |
管理形態/管理員の勤務形態:-/-
家具家電4点無料!それ以外も相談!!
TVインターホンで安心♪グリル付コンロや浴室TVなど設備充実☆彡家具家電4点無料!それ以外も相談!!
|
| エネルギー消費性能 |
- |
| 断熱性能 |
- |
| 目安光熱費 |
- |
| バス・トイレ |
TV付浴室、バス・トイレ別、洗面所独立、洗面台、シャワー、温水洗浄便座 |
| キッチン |
システムキッチン、2口コンロ、ガスコンロ付 |
| セキュリティー |
モニター付インターホン、防犯カメラ |
| 収納 |
収納スペース、シューズボックス |
| 設備・サービス |
全居室エアコン、室内洗濯機置場、冷蔵庫、ロフト、全居室フローリング、フローリング、エアコン、暖房、冷房、家具付き、家電付、照明器具、電話 |
| TV・通信 |
光ファイバー、ケーブルTV、CS、BS端子、有線放送 |
| その他 |
バルコニー、駐輪場 |
| 契約期間 |
2年 |
現況 |
居住中 |
| 条件等 |
- |
入居可能時期 |
2025年11月30日予定 |
| 更新料 |
なし |
物件番号 |
1136954315 |
| 情報公開日 |
2025年10月20日 |
次回更新予定日 |
2025年11月3日 |
| ケータイ用バーコード |
- スマートフォンでこの物件を見る
- スマートフォンからもこの物件をご覧になれます。
|
※「-」と表示されている項目については、情報提供会社にご確認ください。
| 周辺施設 |
九州大学附属図書館芸術工学分館 |
| 距離 |
1356m |
ここから簡単にお問い合わせをすることができます。
(SSLでの暗号化での送信を希望されるお客さまは
こちら
よりお問い合わせください)
お問い合わせを行う前に
「個人情報の取り扱いについて」を必ずお読みください。
「個人情報の取り扱いについて」に同意いただいた場合は「上記にご同意の上 確認画面へ進む」のボタンをクリックしてください。
個人情報の取り扱いについて
皆さまが送付された個人情報はアットホーム(株)のサーバを経由し、お問い合わせ先の不動産会社にメールまたはFAXにて転送されるためアットホーム(株)にも保管されます。アットホーム(株)で保管された個人情報の取り扱いについては、【こちら】をご覧ください。
また、本画面でご記入いただいた個人情報は、お問い合わせ先の不動産会社でも保管します。 お問い合わせ先の不動産会社が保管する個人情報の取り扱いについては、不動産会社に直接お問い合わせください。
福岡県知事免許(3)第17108号 |
|---|
- 交通:
- 地下鉄空港線/天神駅 徒歩9分
- 福岡県福岡市中央区今泉1丁目9-19 BuLaLaビル4階
- TEL:
- 092-406-7295
- FAX:
- 092-406-7296
- 所属団体:
- (公社)福岡県宅地建物取引業協会会員(一社)九州不動産公正取引協議会加盟
取引態様:仲介  - 80506424
|
- スマートフォンで
この不動産会社を見る

|
- 提携サイト等より掲載されている物件情報につきましては、不動産会社詳細情報にリンクされていないものがあります。
- 物件に関するお問合せは、物件詳細ページの「情報提供会社」に表示されている不動産会社へ直接お願いいたします。
- 間取図は、現況を優先させていただきます。
- 映像は物件の一部を撮影したものです。物件の契約にあたっての最終判断はご自身の判断に基づいて行ってください。
- 仲介手数料について

アットホームは物件情報の適正化に努めております。
内容に誤りがある場合にはこちらへご連絡ください。