大阪府大阪市城東区中央1丁目(蒲生四丁目駅)の賃貸:物件詳細
交通 所在地 |
駅徒歩 |
賃料 管理費等 |
敷金/保証金 礼金 |
間取り 面積 |
物件種目 築年月 |
|
地下鉄長堀鶴見緑地線/蒲生四丁目
大阪府大阪市城東区中央1丁目
|
7分
|
8万円
10,000円
|
なし / なし
1ヶ月
|
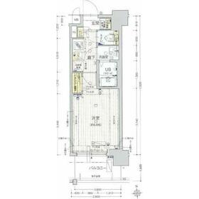
1K
21.84m²
|
賃貸マンション
2023年10月(築2年8ヶ月)
|
分譲タイプ、南向き、24時間換気システム
|
|
間取図
|
外観
|
<
その他の画像
>
|
| 交通 | 地下鉄長堀鶴見緑地線 蒲生四丁目駅 徒歩7分 |
|---|
| その他の交通 | 京阪本線 野江駅 徒歩9分 JR大阪環状線 京橋駅 徒歩14分 |
| 所在地 |
大阪府大阪市城東区中央1丁目
|
| 物件種目 |
賃貸マンション |
| 賃料 |
8万円 |
管理費等 |
10,000円 |
| 敷金 / 保証金 |
なし / なし |
礼金 |
1ヶ月 |
| 敷引 |
- |
保証金償却 |
- |
| その他一時金 |
エアコンクリーニング代:16,500円、室内清掃費用:33,000円、鍵交換代等:33,000円~ |
保険等 |
要 |
| 維持費等 |
- |
| 間取り |
1K |
専有面積 |
21.84m² |
| 築年月 |
2023年10月(築2年8ヶ月)
|
階建 / 階 |
9階建 / 7階 |
| 建物構造 |
RC |
総戸数 |
- |
| 主要採光面 |
南 |
駐車場 |
- |
| バイク置き場 |
- |
駐輪場 |
- |
| 建物名・部屋番号 |
フォーリアライズ城東ネオス 702 |
ペット |
-
|
| リフォーム履歴 |
- |
| リノベーション履歴 |
- |
| 備考 |
賃貸保証等:加入要(日本セーフティー 日本セーフティー 保証料50%)
管理形態/管理員の勤務形態:-/-
|
| エネルギー消費性能 |
- |
| 断熱性能 |
- |
| 目安光熱費 |
- |
| バス・トイレ |
バス・トイレ別、浴室乾燥機、洗面台、シャワー、温水洗浄便座、トイレ |
| キッチン |
2口コンロ、ガスコンロ可 |
| セキュリティー |
モニター付オートロック、オートロック、モニター付インターホン、防犯カメラ |
| 収納 |
収納スペース、シューズボックス |
| 設備・サービス |
室内洗濯機置場、洗濯機置場、給湯、エアコン、家具付き、家電付 |
| TV・通信 |
インターネット対応 |
| その他 |
宅配BOX、バルコニー、エレベーター |
| 契約期間 |
1年 |
現況 |
居住中 |
| 条件等 |
- |
入居可能時期 |
2026年6月下旬予定 |
| 更新料 |
- |
物件番号 |
1137021222 |
| 情報公開日 |
2026年2月10日 |
次回更新予定日 |
2026年5月24日 |
| ケータイ用バーコード |
- スマートフォンでこの物件を見る
- スマートフォンからもこの物件をご覧になれます。
|
※「-」と表示されている項目については、情報提供会社にご確認ください。
ここから簡単にお問い合わせをすることができます。
(SSLでの暗号化での送信を希望されるお客さまは
こちら
よりお問い合わせください)
お問い合わせを行う前に
「個人情報の取り扱いについて」を必ずお読みください。
「個人情報の取り扱いについて」に同意いただいた場合は「上記にご同意の上 確認画面へ進む」のボタンをクリックしてください。
個人情報の取り扱いについて
皆さまが送付された個人情報はアットホーム(株)のサーバを経由し、お問い合わせ先の不動産会社にメールまたはFAXにて転送されるためアットホーム(株)にも保管されます。アットホーム(株)で保管された個人情報の取り扱いについては、【こちら】をご覧ください。
また、本画面でご記入いただいた個人情報は、お問い合わせ先の不動産会社でも保管します。 お問い合わせ先の不動産会社が保管する個人情報の取り扱いについては、不動産会社に直接お問い合わせください。
国土交通大臣免許(10)第3440号 |
|---|
- 交通:
- 地下鉄谷町線/東梅田駅 徒歩3分
- 大阪府大阪市北区曾根崎2丁目5-10 梅田パシフィックビルディング1F
- TEL:
- 06-6361-6161
- FAX:
- 06-6361-6160
- 所属団体:
- (一社)大阪府宅地建物取引業協会会員(一社)全国住宅産業協会会員(一社)全国賃貸不動産管理業協会会員(公社)近畿地区不動産公正取引協議会加盟
取引態様:仲介  - 50008222
|
- スマートフォンで
この不動産会社を見る

|
- 提携サイト等より掲載されている物件情報につきましては、不動産会社詳細情報にリンクされていないものがあります。
- 物件に関するお問合せは、物件詳細ページの「情報提供会社」に表示されている不動産会社へ直接お願いいたします。
- 間取図は、現況を優先させていただきます。
- 映像は物件の一部を撮影したものです。物件の契約にあたっての最終判断はご自身の判断に基づいて行ってください。
- 仲介手数料について

アットホームは物件情報の適正化に努めております。
内容に誤りがある場合にはこちらへご連絡ください。