東京都北区滝野川3丁目(西巣鴨駅)の賃貸:物件詳細
交通 所在地 |
駅徒歩 |
賃料 管理費等 |
敷金/保証金 礼金 |
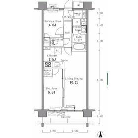
間取り 面積 |
物件種目 築年月 |
|
都営三田線/西巣鴨
東京都北区滝野川3丁目
|
10分
|
18.5万円
10,000円
|
1ヶ月 / なし
なし
|
1SLDK
50.29m²
|
賃貸マンション
2007年4月(築18年11ヶ月)
|
ペット相談、楽器相談、常時ゴミ出し可能、南向き、高齢者相談、二人入居可、24時間換気システム、外観タイル張り、IT重説対応物件、保証人不要
|
|
間取図
|
外観
落ち着いた雰囲気の外観です
|
<
その他の画像
>
|
| 交通 | 都営三田線 西巣鴨駅 徒歩10分 |
|---|
| その他の交通 | JR埼京線 板橋駅 徒歩14分 都電荒川線 西ヶ原四丁目駅 徒歩13分 |
| 所在地 |
東京都北区滝野川3丁目
|
| 物件種目 |
賃貸マンション |
| 賃料 |
18.5万円 |
管理費等 |
10,000円 |
| 敷金 / 保証金 |
1ヶ月 / なし |
礼金 |
なし |
| 敷引 |
- |
保証金償却 |
- |
| その他一時金 |
室内清掃費用:94,042円、鍵交換代等:16,500円~ |
保険等 |
要 |
| 維持費等 |
口座振替事務手数料:110円/月 |
| 間取り |
1SLDK(LDK12.7、洋5.5、S4) |
専有面積 |
50.29m² |
| 築年月 |
2007年4月(築18年11ヶ月)
|
階建 / 階 |
7階建 / 2階 |
| 建物構造 |
RC |
総戸数 |
- |
| 主要採光面 |
南 |
駐車場 |
有 29,700円/月 |
| バイク置き場 |
- |
駐輪場 |
有 |
| 建物名・部屋番号 |
パークアクシス滝野川 |
ペット |
相談 |
| アピールポイント |
セキュリティ面は、オートロック・TVインターホンなどを設置しているので安全面でも優れております。収納はウォークインクロゼット・シューズWICなど豊富なので、広々と空間を利用することも可能です。共用部には宅配ボックス・ゴミ出し24時間OKなどが揃っており、とても充実しています。室内設備は浴室乾燥機・洗面所独立など充実した設備を備え付けています。保護者の方も安心できるよう、管理人が巡回しています。駐車場がある物件です。現在空きがあります。入居者が安心して暮らしていただけるように、防犯カメラを備え付けております。アレルギーになりやすい方にも快適な全居室フローリングです。お早めのご案内が可能な物件となっておりますので、内見のご予約お待ちしております。3つの調理を同時に進行できるのでたくさん料理したい人にもおすすめな、3口コンロが付いている物件です。賃料18.5万円の物件です。 |
| リフォーム履歴 |
- |
| リノベーション履歴 |
- |
| 備考 |
賃貸保証等:加入要(初回保証委託料(最低20,000円):月額賃料等の50%、 2年目以降:9,600円/年)
管理形態/管理員の勤務形態:-/巡回
IT重説対応物件、管理人巡回
室内設備は浴室乾燥機・洗面化粧台など充実した設備を備え付けています。共用部にはゴミ出し24時間OK・宅配ボックスなどが揃っております。セキュリティ面は、TVインターホン・オートロックなどを設置しているので安全面でも優れております。収納はウォークインクロゼット・シューズWICなど豊富なので、衣類や履き物の整理がしやすく便利です。過ごしやすい環境を実現する、エアコン付きの物件です。全居室フローリング仕様の物件です。現在空家となっておりますので、お早めのご入居が可能となっております。設備・環境ともに良い18.5万円の物件です。物件の不備も定期的にメンテナンスしてくれるので安心。お部屋の入居日指定をご確認ください、ここは令和8年2月となっております。駐輪場付きの物件です。
|
| エネルギー消費性能 |
- |
| 断熱性能 |
- |
| 目安光熱費 |
- |
| バス・トイレ |
バス・トイレ別、浴室乾燥機、オートバス、追焚機能、洗面所独立、洗面所、温水洗浄便座、トイレ |
| キッチン |
システムキッチン、独立型キッチン、3口以上コンロ、ガスコンロ可、グリル |
| セキュリティー |
モニター付オートロック、オートロック、モニター付インターホン、ディンプルキー、ダブルロックドア、防犯カメラ |
| 収納 |
ウォークインクローゼット、収納スペース、シューズインクローゼット、クローゼット |
| 設備・サービス |
室内洗濯機置場、洗濯機置場、全居室フローリング、フローリング、都市ガス、エアコン、冷房 |
| TV・通信 |
インターネット対応、光ファイバー、CATVインターネット、ケーブルTV、CS、BS端子 |
| その他 |
宅配BOX、バルコニー、駐輪場、エレベーター |
| 契約期間 |
2年 |
現況 |
空家 |
| 条件等 |
- |
入居可能時期 |
2026年2月下旬予定 |
| 更新料 |
新賃料 1ヶ月 |
物件番号 |
1137144322 |
| 情報公開日 |
2026年2月10日 |
次回更新予定日 |
2026年3月4日 |
| ケータイ用バーコード |
- スマートフォンでこの物件を見る
- スマートフォンからもこの物件をご覧になれます。
|
※「-」と表示されている項目については、情報提供会社にご確認ください。
| 周辺施設 |
ドミノ・ピザ 上池袋店 |
| 距離 |
1564m |
写真を見る |
| 周辺施設 |
ピーコックストア 上池袋店 |
| 距離 |
1694m |
写真を見る |
| 周辺施設 |
セブンイレブン 豊島上池袋1丁目店 |
| 距離 |
1558m |
写真を見る |
| 周辺施設 |
日本調剤上池袋薬局 |
| 距離 |
1879m |
写真を見る |
| 周辺施設 |
きらぼし銀行 滝野川支店 |
| 距離 |
597m |
写真を見る |
| 周辺施設 |
巣鴨警察署 巣鴨新田交番 |
| 距離 |
1736m |
写真を見る |
ここから簡単にお問い合わせをすることができます。
(SSLでの暗号化での送信を希望されるお客さまは
こちら
よりお問い合わせください)
お問い合わせを行う前に
「個人情報の取り扱いについて」を必ずお読みください。
「個人情報の取り扱いについて」に同意いただいた場合は「上記にご同意の上 確認画面へ進む」のボタンをクリックしてください。
個人情報の取り扱いについて
皆さまが送付された個人情報はアットホーム(株)のサーバを経由し、お問い合わせ先の不動産会社にメールまたはFAXにて転送されるためアットホーム(株)にも保管されます。アットホーム(株)で保管された個人情報の取り扱いについては、【こちら】をご覧ください。
また、本画面でご記入いただいた個人情報は、お問い合わせ先の不動産会社でも保管します。 お問い合わせ先の不動産会社が保管する個人情報の取り扱いについては、不動産会社に直接お問い合わせください。
東京都知事免許(1)第107337号 |
|---|
- 交通:
- JR山手線/新橋駅 徒歩5分
- 東京都中央区銀座8丁目11-1 GINZA GS BLD.2 7階
- TEL:
- 03-6281-4770
- FAX:
- 03-6281-4771
- 所属団体:
- (公社)東京都宅地建物取引業協会会員(公社)首都圏不動産公正取引協議会加盟
取引態様:仲介  - 00271811
|
- スマートフォンで
この不動産会社を見る

|
- 提携サイト等より掲載されている物件情報につきましては、不動産会社詳細情報にリンクされていないものがあります。
- 物件に関するお問合せは、物件詳細ページの「情報提供会社」に表示されている不動産会社へ直接お願いいたします。
- 間取図は、現況を優先させていただきます。
- 映像は物件の一部を撮影したものです。物件の契約にあたっての最終判断はご自身の判断に基づいて行ってください。
- 仲介手数料について

アットホームは物件情報の適正化に努めております。
内容に誤りがある場合にはこちらへご連絡ください。