東京都葛飾区西新小岩4丁目(新小岩駅)の賃貸:物件詳細
交通 所在地 |
駅徒歩 |
賃料 管理費等 |
敷金/保証金 礼金 |
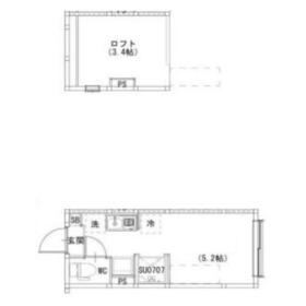
間取り 面積 |
物件種目 築年月 |
|
JR総武本線/新小岩
東京都葛飾区西新小岩4丁目
|
10分
|
6.4万円
4,000円
|
なし / なし
なし
|
ワンルーム
12.03m²
|
賃貸アパート
2025年9月
|
角部屋、保証人不要
|
|
間取図
|
外観
|
<
その他の画像
>
|
|
|
| 交通 | JR総武本線 新小岩駅 徒歩10分 |
|---|
| その他の交通 | 京成本線 青砥駅 【バス】 24分 中関橋 停歩5分 京成本線 堀切菖蒲園駅 【バス】 23分 中関橋 停歩5分 |
| 所在地 |
東京都葛飾区西新小岩4丁目
|
| 物件種目 |
賃貸アパート |
| 賃料 |
6.4万円 |
管理費等 |
4,000円 |
| 敷金 / 保証金 |
なし / なし |
礼金 |
なし |
| 敷引 |
- |
保証金償却 |
- |
| その他一時金 |
室内清掃費用:38,500円、24時間サポート:19,800円、インターネット開通費用:16,500円、IOT登録利用料:16,500円 |
保険等 |
要 |
| 維持費等 |
- |
クレジットカード決済 |
初期費用可 |
| 間取り |
ワンルーム(洋室5.2ロフト3.4) |
専有面積 |
12.03m² |
| 築年月 |
2025年9月
|
階建 / 階 |
2階建 / 1階 |
| 建物構造 |
木造 |
総戸数 |
14戸 |
| 主要採光面 |
北 |
駐車場 |
近有 19,800円/月 |
| バイク置き場 |
- |
駐輪場 |
- |
| 建物名・部屋番号 |
Comfort 天照 |
ペット |
-
|
| アピールポイント |
☆当店の強みをお伝えします☆
①クレジットカードの初期費用分割払いを、喜んでお受けいたします(クレジットカード以外もOK)
②他社様がネットに掲載されている物件は、全てお調べし、【好条件】でご紹介いたします
他社様で「お申込み」された物件でも、【好条件】でご紹介できる場合がございます
③「審査が不安…」「保証人がいない…」「値段交渉をして欲しい…」などなど、
どのようなご条件でも、遠慮なくご相談いただけます
④ご検討されている「エリア」「沿線」が「広範囲」「複数」でも、一度で漏れなくお探しいただけます
ポータルサイトや他社サイトで気になるお部屋がございましたらお気軽にご相談ください
お客様のご来店を心よりお待ちしております |
| リフォーム履歴 |
- |
| リノベーション履歴 |
- |
| 備考 |
賃貸保証等:加入要(最低保証料50,000円(初回保証料)、660円/月(口座振替手数料)、2年目以降は1.2万円/年)
管理形態/管理員の勤務形態:-/-
契約事務手数料 11000円(契約時)/除菌と消臭代 19800円(契約時)/エアコン清掃費用借主負担(退去時)/町会費 月額300円/IOT物件の為、スマートフォンをお持ちの方限定で契約可/短期解約違約金有(1年未満の解約は賃料の2ヶ月分、2年未満の解約は賃料の1ヶ月分)
|
| エネルギー消費性能 |
- |
| 断熱性能 |
- |
| 目安光熱費 |
- |
| バス・トイレ |
洗面所独立、洗面台、シャワールーム、シャワー、温水洗浄便座、トイレ |
| キッチン |
- |
| セキュリティー |
モニター付インターホン、防犯カメラ |
| 収納 |
収納スペース、シューズボックス |
| 設備・サービス |
室内洗濯機置場、ロフト、給湯、フローリング、エアコン |
| TV・通信 |
インターネット対応、インターネット使用料無料、光ファイバー |
| その他 |
宅配BOX |
| 契約期間 |
2年 |
現況 |
空家 |
| 条件等 |
- |
入居可能時期 |
即時 |
| 更新料 |
- |
物件番号 |
1137464816 |
| 情報公開日 |
2025年10月26日 |
次回更新予定日 |
2025年11月10日 |
| ケータイ用バーコード |
- スマートフォンでこの物件を見る
- スマートフォンからもこの物件をご覧になれます。
|
※「-」と表示されている項目については、情報提供会社にご確認ください。
| 周辺施設 |
グリーンマート新小岩西店 |
| 距離 |
416m |
写真を見る |
| 周辺施設 |
セブン-イレブン 西新小岩店 |
| 距離 |
336m |
写真を見る |
| 周辺施設 |
どらっぐぱぱす 西新小岩店 |
| 距離 |
320m |
写真を見る |
| 周辺施設 |
シャポー 新小岩 |
| 距離 |
908m |
写真を見る |
| 周辺施設 |
坂本クリニック |
| 距離 |
355m |
写真を見る |
| 周辺施設 |
東京聖栄大学 |
| 距離 |
706m |
写真を見る |
| 周辺施設 |
東京聖栄大学附属調理師専門学校 |
| 距離 |
555m |
写真を見る |
ここから簡単にお問い合わせをすることができます。
(SSLでの暗号化での送信を希望されるお客さまは
こちら
よりお問い合わせください)
お問い合わせを行う前に
「個人情報の取り扱いについて」を必ずお読みください。
「個人情報の取り扱いについて」に同意いただいた場合は「上記にご同意の上 確認画面へ進む」のボタンをクリックしてください。
個人情報の取り扱いについて
皆さまが送付された個人情報はアットホーム(株)のサーバを経由し、お問い合わせ先の不動産会社にメールまたはFAXにて転送されるためアットホーム(株)にも保管されます。アットホーム(株)で保管された個人情報の取り扱いについては、【こちら】をご覧ください。
また、本画面でご記入いただいた個人情報は、お問い合わせ先の不動産会社でも保管します。 お問い合わせ先の不動産会社が保管する個人情報の取り扱いについては、不動産会社に直接お問い合わせください。
国土交通大臣免許(5)第7031号 |
|---|
- 交通:
- JR山手線/上野駅 徒歩3分
- 東京都台東区上野2丁目13-12 東洋ビル 6階
- TEL:
- 03-5817-3344
- FAX:
- 03-5817-2823
- 所属団体:
- (公社)全日本不動産協会会員不動産公正取引協議会加盟
取引態様:仲介  - 00785821
|
- スマートフォンで
この不動産会社を見る

|
- 提携サイト等より掲載されている物件情報につきましては、不動産会社詳細情報にリンクされていないものがあります。
- 物件に関するお問合せは、物件詳細ページの「情報提供会社」に表示されている不動産会社へ直接お願いいたします。
- 間取図は、現況を優先させていただきます。
- 映像は物件の一部を撮影したものです。物件の契約にあたっての最終判断はご自身の判断に基づいて行ってください。
- 仲介手数料について

アットホームは物件情報の適正化に努めております。
内容に誤りがある場合にはこちらへご連絡ください。