大阪府大阪市中央区内本町1丁目(谷町四丁目駅)の賃貸:物件詳細
交通 所在地 |
駅徒歩 |
賃料 管理費等 |
敷金/保証金 礼金 |
間取り 面積 |
物件種目 築年月 |
|
地下鉄谷町線/谷町四丁目
大阪府大阪市中央区内本町1丁目
|
3分
|
9万円
12,000円
|
なし / なし
なし
|
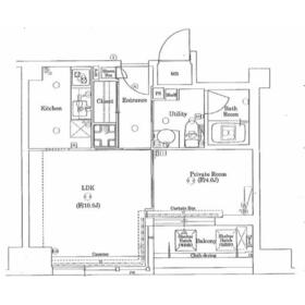
1LDK
34.04m²
|
賃貸マンション
2010年1月(築16年)
|
分譲タイプ、常時ゴミ出し可能、二人入居可、IT重説対応物件、保証人不要
|
|
間取図
|
外観
クリスタルブライト本町東
|
<
その他の画像
>
|
| 交通 | 地下鉄谷町線 谷町四丁目駅 徒歩3分 |
|---|
| その他の交通 | 地下鉄中央線 谷町四丁目駅 徒歩3分 地下鉄谷町線 天満橋駅 徒歩8分 |
| 所在地 |
大阪府大阪市中央区内本町1丁目
|
| 物件種目 |
賃貸マンション |
| 賃料 |
9万円 |
管理費等 |
12,000円 |
| 敷金 / 保証金 |
なし / なし |
礼金 |
なし |
| 敷引 |
- |
保証金償却 |
- |
| その他一時金 |
契約事務?数料:5,500円、?居時除菌費?:11,000円、24時間サポ ート:16,500円、室内清掃費用:77,000円、鍵交換代等:44,000円~ |
保険等 |
要 2年 20,000円 |
| 維持費等 |
- |
| 間取り |
1LDK(LDK10.9、洋4) |
専有面積 |
34.04m² |
| 築年月 |
2010年1月(築16年)
|
階建 / 階 |
14階建 / 11階 |
| 建物構造 |
RC |
総戸数 |
- |
| 主要採光面 |
西 |
駐車場 |
近有 28,000円/月 |
| バイク置き場 |
- |
駐輪場 |
有 |
| 建物名・部屋番号 |
クリスタルブライト本町東 |
ペット |
-
|
| リフォーム履歴 |
- |
| リノベーション履歴 |
- |
| 備考 |
賃貸保証等:加入要(日本セーフティー 初回保証料賃料総額の50%~ 年間保証料10000円 ?座振替?数料400円(税別))
管理形態/管理員の勤務形態:-/巡回
IT重説対応物件、管理人巡回
オートロック!防犯カメラ!エレベータ!バス・トイレ別!
人気の谷町四丁目エリアの賃貸物件!
オートロックや防犯カメラ等の設備完備で安全面バッチリ!
お部屋の中は室内洗濯機置場にバス・トイレ別!
現地集合やオンライン内覧もご対応させて頂きます!
|
| エネルギー消費性能 |
- |
| 断熱性能 |
- |
| 目安光熱費 |
- |
| バス・トイレ |
バス・トイレ別、浴室乾燥機、洗面所独立、洗面所、温水洗浄便座、トイレ |
| キッチン |
システムキッチン、2口コンロ、ガスコンロ可 |
| セキュリティー |
モニター付オートロック、オートロック、モニター付インターホン、防犯カメラ |
| 収納 |
収納スペース、クローゼット、シューズボックス |
| 設備・サービス |
室内洗濯機置場、洗濯機置場、フローリング、都市ガス、エアコン |
| TV・通信 |
インターネット対応、BS端子 |
| その他 |
宅配BOX、バルコニー、駐輪場、エレベーター |
| 契約期間 |
2年 |
現況 |
居住中 |
| 条件等 |
- |
入居可能時期 |
2026年1月中旬予定 |
| 更新料 |
- |
物件番号 |
1137672403 |
| 情報公開日 |
2025年12月12日 |
次回更新予定日 |
2025年12月26日 |
| ケータイ用バーコード |
- スマートフォンでこの物件を見る
- スマートフォンからもこの物件をご覧になれます。
|
※「-」と表示されている項目については、情報提供会社にご確認ください。
| 周辺施設 |
スーパーコーヨー内本町店 |
| 距離 |
110m |
写真を見る |
| 周辺施設 |
業務スーパー松屋町堺筋本町店 |
| 距離 |
310m |
写真を見る |
| 周辺施設 |
イズミヤドンキホーテ 法円坂店 |
| 距離 |
574m |
写真を見る |
| 周辺施設 |
ファミリーマート内本町店 |
| 距離 |
57m |
写真を見る |
| 周辺施設 |
セブンイレブン 大阪内本町1丁目店 |
| 距離 |
117m |
写真を見る |
| 周辺施設 |
セブンイレブン大阪内本町2丁目店 |
| 距離 |
167m |
写真を見る |
| 周辺施設 |
スギ薬局 谷町四丁目店 |
| 距離 |
172m |
写真を見る |
ここから簡単にお問い合わせをすることができます。
(SSLでの暗号化での送信を希望されるお客さまは
こちら
よりお問い合わせください)
お問い合わせを行う前に
「個人情報の取り扱いについて」を必ずお読みください。
「個人情報の取り扱いについて」に同意いただいた場合は「上記にご同意の上 確認画面へ進む」のボタンをクリックしてください。
個人情報の取り扱いについて
皆さまが送付された個人情報はアットホーム(株)のサーバを経由し、お問い合わせ先の不動産会社にメールまたはFAXにて転送されるためアットホーム(株)にも保管されます。アットホーム(株)で保管された個人情報の取り扱いについては、【こちら】をご覧ください。
また、本画面でご記入いただいた個人情報は、お問い合わせ先の不動産会社でも保管します。 お問い合わせ先の不動産会社が保管する個人情報の取り扱いについては、不動産会社に直接お問い合わせください。
大阪府知事免許(2)第59452号 |
|---|
- 交通:
- 地下鉄谷町線/谷町六丁目駅 徒歩1分
- 大阪府大阪市中央区谷町5丁目6-10 谷五ビル1F
- TEL:
- 06-6763-7611
- FAX:
- 06-6763-7612
- 所属団体:
- (一社)大阪府宅地建物取引業協会会員(公社)近畿地区不動産公正取引協議会加盟
取引態様:仲介  - 50103783
|
- スマートフォンで
この不動産会社を見る

|
- 提携サイト等より掲載されている物件情報につきましては、不動産会社詳細情報にリンクされていないものがあります。
- 物件に関するお問合せは、物件詳細ページの「情報提供会社」に表示されている不動産会社へ直接お願いいたします。
- 間取図は、現況を優先させていただきます。
- 映像は物件の一部を撮影したものです。物件の契約にあたっての最終判断はご自身の判断に基づいて行ってください。
- 仲介手数料について

アットホームは物件情報の適正化に努めております。
内容に誤りがある場合にはこちらへご連絡ください。