北海道札幌市中央区南十一条西18丁目(西18丁目駅)の賃貸:物件詳細
交通 所在地 |
駅徒歩 |
賃料 管理費等 |
敷金/保証金 礼金 |
間取り 面積 |
物件種目 築年月 |
|
札幌市東西線/西18丁目
北海道札幌市中央区南十一条西18丁目
|
17分
|
6.3万円
3,000円
|
1ヶ月 / なし
1ヶ月
|
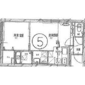
1LDK
34.40m²
|
賃貸マンション
2025年8月
|
デザイナーズ、角部屋、24時間セキュリティー、24時間換気システム、IT重説対応物件、保証人不要
|
|
間取図
|
外観
|
<
その他の画像
>
|
|
|
| 交通 | 札幌市東西線 西18丁目駅 徒歩17分 |
|---|
| その他の交通 | 札幌市電 西線11条駅 徒歩7分 札幌市南北線 中島公園駅 徒歩25分 |
| 所在地 |
北海道札幌市中央区南十一条西18丁目
|
| 物件種目 |
賃貸マンション |
| 賃料 |
6.3万円 |
管理費等 |
3,000円 |
| 敷金 / 保証金 |
1ヶ月 / なし |
礼金 |
1ヶ月 |
| 敷引 |
- |
保証金償却 |
- |
| その他一時金 |
ハウスクリーニング:27,500円 |
保険等 |
要 2年 15,000円 |
| 維持費等 |
24時間管理費:550円/月 |
クレジットカード決済 |
初期費用可 |
| 間取り |
1LDK(LDK9.4・洋室5.2) |
専有面積 |
34.40m² |
| 築年月 |
2025年8月
|
階建 / 階 |
4階建 / 3階 |
| 建物構造 |
RC |
総戸数 |
- |
| 主要採光面 |
|
駐車場 |
有 11,000円/月 |
| バイク置き場 |
無 |
駐輪場 |
有 |
| 建物名・部屋番号 |
K・S-11 |
ペット |
-
|
| アピールポイント |
2025年9月1日ご入居開始予定の新築MS☆都市ガス・エアコン・ネット無料など人気設備揃ってます♪ |
| リフォーム履歴 |
- |
| リノベーション履歴 |
- |
| 備考 |
賃貸保証等:加入要(初回契約時:50%、更新時:13,000円、日本セーフティーも使用可能)
管理形態/管理員の勤務形態:-/-
IT重説対応物件
ホームメイトFC円山店(電話→011-676-7736)では随時次のキャンペーンを実施しております。お電話でのお問合せで初期費用軽減、初期費用契約金10万、5万、2万で入居可能物件、ペット飼育可能物件、保証人不要物件、生活保護相談可物件、都市ガス物件、駐車場2台以上物件等のお取り扱い物件多数ございます。他業者様提示の初期費用との比較も大歓迎です。クレジットカード決済も対応可能です♪
|
| エネルギー消費性能 |
- |
| 断熱性能 |
- |
| 目安光熱費 |
- |
| バス・トイレ |
バス・トイレ別、シャワー付洗面化粧台、洗面所独立、洗面所、シャワー、温水洗浄便座、トイレ |
| キッチン |
カウンターキッチン、システムキッチン、ガスコンロ付 |
| セキュリティー |
モニター付オートロック、オートロック、モニター付インターホン |
| 収納 |
ウォークインクローゼット、収納スペース、シューズボックス |
| 設備・サービス |
室内洗濯機置場、洗濯機置場、給湯、全居室フローリング、フローリング、都市ガス、エアコン、FF暖房、都市ガス暖房、暖房、冷房 |
| TV・通信 |
インターネット使用料無料、光ファイバー、ケーブルTV、CS、BS端子 |
| その他 |
宅配BOX、駐輪場 |
| 契約期間 |
2年 |
現況 |
空家 |
| 条件等 |
- |
入居可能時期 |
即時 |
| 更新料 |
- |
物件番号 |
1138381710 |
| 情報公開日 |
2025年7月1日 |
次回更新予定日 |
2025年12月21日 |
| ケータイ用バーコード |
- スマートフォンでこの物件を見る
- スマートフォンからもこの物件をご覧になれます。
|
※「-」と表示されている項目については、情報提供会社にご確認ください。
| 周辺施設 |
西友旭ヶ丘店 |
| 距離 |
897m |
写真を見る |
| 周辺施設 |
ラルズマート啓明店 |
| 距離 |
320m |
写真を見る |
| 周辺施設 |
セイコーマート伏見店 |
| 距離 |
271m |
写真を見る |
| 周辺施設 |
サッポロドラッグストアー伏見啓明店 |
| 距離 |
627m |
写真を見る |
| 周辺施設 |
DCMホーマック旭ヶ丘店 |
| 距離 |
589m |
写真を見る |
ここから簡単にお問い合わせをすることができます。
(SSLでの暗号化での送信を希望されるお客さまは
こちら
よりお問い合わせください)
お問い合わせを行う前に
「個人情報の取り扱いについて」を必ずお読みください。
「個人情報の取り扱いについて」に同意いただいた場合は「上記にご同意の上 確認画面へ進む」のボタンをクリックしてください。
個人情報の取り扱いについて
皆さまが送付された個人情報はアットホーム(株)のサーバを経由し、お問い合わせ先の不動産会社にメールまたはFAXにて転送されるためアットホーム(株)にも保管されます。アットホーム(株)で保管された個人情報の取り扱いについては、【こちら】をご覧ください。
また、本画面でご記入いただいた個人情報は、お問い合わせ先の不動産会社でも保管します。 お問い合わせ先の不動産会社が保管する個人情報の取り扱いについては、不動産会社に直接お問い合わせください。
北海道知事免許 石狩(3)第8213号 |
|---|
- 交通:
- 札幌市東西線/西28丁目駅 徒歩2分
- 北海道札幌市中央区北三条西28丁目1-23 三栄ビル1階
- TEL:
- 011-676-7736
- FAX:
- 011-676-7737
- 所属団体:
- (公社)全日本不動産協会会員(一社)北海道不動産公正取引協議会加盟
取引態様:仲介  - 10005059
|
- スマートフォンで
この不動産会社を見る

|
- 提携サイト等より掲載されている物件情報につきましては、不動産会社詳細情報にリンクされていないものがあります。
- 物件に関するお問合せは、物件詳細ページの「情報提供会社」に表示されている不動産会社へ直接お願いいたします。
- 間取図は、現況を優先させていただきます。
- 映像は物件の一部を撮影したものです。物件の契約にあたっての最終判断はご自身の判断に基づいて行ってください。
- 仲介手数料について

アットホームは物件情報の適正化に努めております。
内容に誤りがある場合にはこちらへご連絡ください。