大阪府大阪市都島区都島本通4丁目(都島駅)の賃貸:物件詳細
交通 所在地 |
駅徒歩 |
賃料 管理費等 |
敷金/保証金 礼金 |
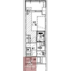
間取り 面積 |
物件種目 築年月 |
|
地下鉄谷町線/都島
大阪府大阪市都島区都島本通4丁目
|
7分
|
7.7万円
10,000円
|
なし / なし
なし
|
1K
20.46m²
|
賃貸マンション
2024年1月(築2年3ヶ月)
|
ペット相談、常時ゴミ出し可能、高齢者相談、二人入居可、事務所使用可、免震構造、制震構造、24時間換気システム、閑静な住宅街、IT重説対応物件、保証人不要
|
|
間取図
|
外観
|
<
その他の画像
>
|
| 交通 | 地下鉄谷町線 都島駅 徒歩7分 |
|---|
| その他の交通 | 地下鉄谷町線 野江内代駅 徒歩10分 JR大阪環状線 桜ノ宮駅 徒歩15分 |
| 所在地 |
大阪府大阪市都島区都島本通4丁目
|
| 物件種目 |
賃貸マンション |
| 賃料 |
7.7万円 |
管理費等 |
10,000円 |
| 敷金 / 保証金 |
なし / なし |
礼金 |
なし |
| 敷引 |
- |
保証金償却 |
- |
| その他一時金 |
なし |
保険等 |
要 |
| 維持費等 |
- |
クレジットカード決済 |
初期費用可 |
| 間取り |
1K |
専有面積 |
20.46m² |
| 築年月 |
2024年1月(築2年3ヶ月)
|
階建 / 階 |
12階建 / 7階 |
| 建物構造 |
RC |
総戸数 |
- |
| 主要採光面 |
北 |
駐車場 |
近有 27,000円/月 |
| バイク置き場 |
有 |
駐輪場 |
有 |
| 建物名・部屋番号 |
JMFレジデンス都島 705 |
ペット |
相談 |
| アピールポイント |
ハウスモ都島店では経験豊富なスタッフが在籍しており、大阪府内全域でお部屋探しが可能です。インターネットに掲載している物件はごく一部ですので是非お気軽にお問い合わせ下さいませ。各種クレジットカードも利用可能です。賃貸、売買、事務所、店舗、全て対応可能ですのでお気軽にお尋ね下さいませ。 |
| リフォーム履歴 |
- |
| リノベーション履歴 |
- |
| 備考 |
賃貸保証等:加入要(保証会社に基づく。)
管理形態/管理員の勤務形態:-/-
IT重説対応物件
☆オートロック完備☆宅配ボックス☆設備充実☆
|
| エネルギー消費性能 |
- |
| 断熱性能 |
- |
| 目安光熱費 |
- |
| バス・トイレ |
バス・トイレ別、浴室乾燥機、オートバス、追焚機能、シャワー付洗面化粧台、洗面所独立、洗面所、シャワールーム、温水洗浄便座、トイレ |
| キッチン |
カウンターキッチン、システムキッチン、独立型キッチン、2口コンロ、ガスコンロ付、ガスコンロ可 |
| セキュリティー |
モニター付オートロック、オートロック、モニター付インターホン、防犯カメラ |
| 収納 |
ウォークインクローゼット、収納スペース、クローゼット、シューズボックス |
| 設備・サービス |
室内洗濯機置場、洗濯機置場、全居室フローリング、フローリング、都市ガス、エアコン、ダウンライト、照明器具 |
| TV・通信 |
インターネット対応、インターネット使用料無料、ケーブルTV、CS、BS端子 |
| その他 |
宅配BOX、バイク置き場、バルコニー、駐輪場、エレベーター |
| 契約期間 |
2年 |
現況 |
居住中 |
| 条件等 |
- |
入居可能時期 |
相談 |
| 更新料 |
- |
物件番号 |
1138532622 |
| 情報公開日 |
2026年2月11日 |
次回更新予定日 |
2026年4月2日 |
| ケータイ用バーコード |
- スマートフォンでこの物件を見る
- スマートフォンからもこの物件をご覧になれます。
|
※「-」と表示されている項目については、情報提供会社にご確認ください。
| 周辺施設 |
スギ薬局 都島北通店 |
| 距離 |
251m |
写真を見る |
| 周辺施設 |
ローソン 都島警察署前店 |
| 距離 |
247m |
写真を見る |
| 周辺施設 |
キリン堂 都島東店 |
| 距離 |
561m |
写真を見る |
| 周辺施設 |
ミスタードーナツ 都島ショップ |
| 距離 |
561m |
写真を見る |
| 周辺施設 |
バーミヤン 城東野江店 |
| 距離 |
618m |
写真を見る |
| 周辺施設 |
サーティワンアイスクリーム ベルファ都島店 |
| 距離 |
957m |
写真を見る |
ここから簡単にお問い合わせをすることができます。
(SSLでの暗号化での送信を希望されるお客さまは
こちら
よりお問い合わせください)
お問い合わせを行う前に
「個人情報の取り扱いについて」を必ずお読みください。
「個人情報の取り扱いについて」に同意いただいた場合は「上記にご同意の上 確認画面へ進む」のボタンをクリックしてください。
個人情報の取り扱いについて
皆さまが送付された個人情報はアットホーム(株)のサーバを経由し、お問い合わせ先の不動産会社にメールまたはFAXにて転送されるためアットホーム(株)にも保管されます。アットホーム(株)で保管された個人情報の取り扱いについては、【こちら】をご覧ください。
また、本画面でご記入いただいた個人情報は、お問い合わせ先の不動産会社でも保管します。 お問い合わせ先の不動産会社が保管する個人情報の取り扱いについては、不動産会社に直接お問い合わせください。
大阪府知事免許(3)第55965号 |
|---|
- 交通:
- 地下鉄谷町線/都島駅 徒歩1分
- 大阪府大阪市都島区都島本通1丁目7-21
- TEL:
- 06-6167-6332
- FAX:
- 06-6167-6333
- 所属団体:
- (公社)全日本不動産協会会員(公社)近畿地区不動産公正取引協議会加盟
取引態様:仲介  - 50111104
|
- スマートフォンで
この不動産会社を見る

|
- 提携サイト等より掲載されている物件情報につきましては、不動産会社詳細情報にリンクされていないものがあります。
- 物件に関するお問合せは、物件詳細ページの「情報提供会社」に表示されている不動産会社へ直接お願いいたします。
- 間取図は、現況を優先させていただきます。
- 映像は物件の一部を撮影したものです。物件の契約にあたっての最終判断はご自身の判断に基づいて行ってください。
- 仲介手数料について

アットホームは物件情報の適正化に努めております。
内容に誤りがある場合にはこちらへご連絡ください。