東京都新宿区下落合4丁目(下落合駅)の賃貸:物件詳細
交通 所在地 |
駅徒歩 |
賃料 管理費等 |
敷金/保証金 礼金 |
間取り 面積 |
物件種目 築年月 |
|
西武新宿線/下落合
東京都新宿区下落合4丁目
|
4分
|
38万円
25,000円
|
1ヶ月 / なし
1ヶ月
|
3LDK
85.20m²
|
賃貸マンション
2003年1月(築23年)
|
分譲タイプ、常時ゴミ出し可能、角部屋、南向き、高齢者相談、二人入居可、2面採光、24時間換気システム、閑静な住宅街、外観タイル張り、IT重説対応物件
|
|
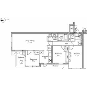
間取図
|
外観
建物外観を気になさる方へ、見た目の良い物件です
|
<
その他の画像
>
|
| 交通 | 西武新宿線 下落合駅 徒歩4分 |
|---|
| その他の交通 | JR山手線 高田馬場駅 徒歩13分 西武池袋線 椎名町駅 徒歩15分 |
| 所在地 |
東京都新宿区下落合4丁目
|
| 物件種目 |
賃貸マンション |
| 賃料 |
38万円 |
管理費等 |
25,000円 |
| 敷金 / 保証金 |
1ヶ月 / なし |
礼金 |
1ヶ月 |
| 敷引 |
- |
保証金償却 |
- |
| その他一時金 |
入居者限定会員サービス:11,000円、鍵交換代等:22,000円~ |
保険等 |
要 2年 21,500円 |
| 維持費等 |
- |
| 間取り |
3LDK(LD15.7、K4、洋7.7、洋6.1、洋5.1) |
専有面積 |
85.20m² |
| 築年月 |
2003年1月(築23年)
|
階建 / 階 |
地上3階地下1階建 / 1階 |
| 建物構造 |
RC |
総戸数 |
- |
| 主要採光面 |
南 |
駐車場 |
有 31,900円/月 |
| バイク置き場 |
- |
駐輪場 |
有 無料 |
| 建物名・部屋番号 |
レジディア目白御留山 |
ペット |
-
|
| アピールポイント |
室内設備はシステムキッチン・エアコン・BS・CSなど充実した設備を備え付けています。洋風なお住まいをお求めの方に適した全居室フローリングです。2026年2月のお日にちの入居日指定のお部屋がございます。2人暮らしで丁度良い広さの3LDKのお部屋はこちらです。追焚機能付きですので、前日の残り湯を再利用することもできます。清潔な敷地内ごみ置き場も用意されております。こだわり条件、通風良好のシンプルな作りの物件です。気分が落ちた時には換気でリフレッシュしましょう。こちらの物件は閑静な住宅地にあります。 |
| リフォーム履歴 |
- |
| リノベーション履歴 |
2026年1月 キッチン・洗面台・フローリング・浴室・トイレ ※実施年月は最も古い履歴を表示 |
| 備考 |
賃貸保証等:加入要(初回契約時:40%、更新時:10,000円、月額:1,000円)
管理形態/管理員の勤務形態:-/-
IT重説対応物件
共用部にはゴミ出し24時間OK・宅配ボックスなど様々な設備やサービスが揃っているので便利です。セキュリティ面は、TVインターホン・オートロックなどを備え付けているので安心して暮らせます。室内設備は洗面化粧台・浴室乾燥機など大変充実しております。徒歩4分で駅にアクセス可能な、魅力的な駅近物件です。お部屋の広さも85.2平米あり、快適な暮らしができます。前日の残り湯を使用できる追い焚き機能付きです。2駅利用できる立地となっていて、アクセスが良いです。過ごしやすい環境を実現する、エアコン付きの物件です。こちらの物件は閑静な住宅地にあります。住みやすい環境が嬉しい賃貸物件です。
|
| エネルギー消費性能 |
- |
| 断熱性能 |
- |
| 目安光熱費 |
- |
| バス・トイレ |
バス・トイレ別、浴室乾燥機、オートバス、追焚機能、洗面所独立、洗面所、温水洗浄便座、トイレ |
| キッチン |
システムキッチン、独立型キッチン、3口以上コンロ、ガスコンロ可、グリル |
| セキュリティー |
モニター付オートロック、オートロック、モニター付インターホン、ディンプルキー、防犯カメラ |
| 収納 |
収納スペース、クローゼット |
| 設備・サービス |
室内洗濯機置場、洗濯機置場、全居室フローリング、フローリング、エアコン、冷房 |
| TV・通信 |
インターネット対応、CS、BS端子 |
| その他 |
宅配BOX、二面バルコニー、バルコニー、駐輪場、エレベーター |
| 契約期間 |
2年 |
現況 |
居住中 |
| 条件等 |
- |
入居可能時期 |
2026年2月下旬予定 |
| 更新料 |
新賃料 1ヶ月 |
物件番号 |
1139362019 |
| 情報公開日 |
2025年12月21日 |
次回更新予定日 |
2026年1月4日 |
| ケータイ用バーコード |
- スマートフォンでこの物件を見る
- スマートフォンからもこの物件をご覧になれます。
|
※「-」と表示されている項目については、情報提供会社にご確認ください。
| 周辺施設 |
キッチンコート 東中野店 |
| 距離 |
1632m |
写真を見る |
| 周辺施設 |
ニュータウンオオクボ |
| 距離 |
1777m |
写真を見る |
| 周辺施設 |
ファミリーマート 東中野五丁目店 |
| 距離 |
1590m |
写真を見る |
| 周辺施設 |
ミネドラッグ ユニゾンモール東中野店 |
| 距離 |
1632m |
写真を見る |
| 周辺施設 |
CAFE de CRIE(カフェ・ド・クリエ) 新宿ガーデンタワー店 |
| 距離 |
1800m |
写真を見る |
| 周辺施設 |
Olympic(オリンピック) 早稲田店 |
| 距離 |
2105m |
写真を見る |
| 周辺施設 |
池袋西口駅前クリニック |
| 距離 |
1934m |
写真を見る |
ここから簡単にお問い合わせをすることができます。
(SSLでの暗号化での送信を希望されるお客さまは
こちら
よりお問い合わせください)
お問い合わせを行う前に
「個人情報の取り扱いについて」を必ずお読みください。
「個人情報の取り扱いについて」に同意いただいた場合は「上記にご同意の上 確認画面へ進む」のボタンをクリックしてください。
個人情報の取り扱いについて
皆さまが送付された個人情報はアットホーム(株)のサーバを経由し、お問い合わせ先の不動産会社にメールまたはFAXにて転送されるためアットホーム(株)にも保管されます。アットホーム(株)で保管された個人情報の取り扱いについては、【こちら】をご覧ください。
また、本画面でご記入いただいた個人情報は、お問い合わせ先の不動産会社でも保管します。 お問い合わせ先の不動産会社が保管する個人情報の取り扱いについては、不動産会社に直接お問い合わせください。
東京都知事免許(1)第107337号 |
|---|
- 交通:
- JR山手線/新橋駅 徒歩5分
- 東京都中央区銀座8丁目11-1 GINZA GS BLD.2 7階
- TEL:
- 03-6281-4770
- FAX:
- 03-6281-4771
- 所属団体:
- (公社)東京都宅地建物取引業協会会員(公社)首都圏不動産公正取引協議会加盟
取引態様:仲介  - 00271811
|
- スマートフォンで
この不動産会社を見る

|
- 提携サイト等より掲載されている物件情報につきましては、不動産会社詳細情報にリンクされていないものがあります。
- 物件に関するお問合せは、物件詳細ページの「情報提供会社」に表示されている不動産会社へ直接お願いいたします。
- 間取図は、現況を優先させていただきます。
- 映像は物件の一部を撮影したものです。物件の契約にあたっての最終判断はご自身の判断に基づいて行ってください。
- 仲介手数料について

アットホームは物件情報の適正化に努めております。
内容に誤りがある場合にはこちらへご連絡ください。