東京都江東区深川2丁目(門前仲町駅)の賃貸:物件詳細
交通 所在地 |
駅徒歩 |
賃料 管理費等 |
敷金/保証金 礼金 |
間取り 面積 |
物件種目 築年月 |
|
東京メトロ東西線/門前仲町
東京都江東区深川2丁目
|
2分
|
13.2万円
15,000円
|
1ヶ月 / なし
1ヶ月
|
1K
25.12m²
|
賃貸マンション
2014年2月(築11年10ヶ月)
|
ペット相談、楽器相談、南向き、SOHO向き、外観タイル張り
|
|
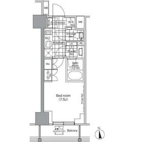
間取図
|
外観
|
その他の画像
|
| 交通 | 東京メトロ東西線 門前仲町駅 徒歩2分 |
|---|
| その他の交通 | 都営大江戸線 門前仲町駅 徒歩2分 |
| 所在地 |
東京都江東区深川2丁目
|
| 物件種目 |
賃貸マンション |
| 賃料 |
13.2万円 |
管理費等 |
15,000円 |
| 敷金 / 保証金 |
1ヶ月 / なし |
礼金 |
1ヶ月 |
| 敷引 |
- |
保証金償却 |
- |
| その他一時金 |
鍵交換代:33,000円 |
保険等 |
要 2年 |
| 維持費等 |
- |
| 間取り |
1K(洋室7.5) |
専有面積 |
25.12m² |
| 築年月 |
2014年2月(築11年10ヶ月)
|
階建 / 階 |
13階建 / 5階 |
| 建物構造 |
RC |
総戸数 |
- |
| 主要採光面 |
南 |
駐車場 |
有 35,200円/月 |
| バイク置き場 |
- |
駐輪場 |
- |
| 建物名・部屋番号 |
パークハビオ門前仲町 502 |
ペット |
相談 |
| リフォーム履歴 |
- |
| リノベーション履歴 |
- |
| 備考 |
賃貸保証等:加入要(日本セーフティー 初年度保証料:賃料等合計額の50%(最低保証料2万円)2年目以降:1年毎1万円)
管理形態/管理員の勤務形態:-/日勤
バルコニー:3.6m²
管理人日勤
SOHO使用・ペット飼育時敷金1か月積増
民泊不可 保証会社未使用時敷金2か月 鍵交換必須/退去時:室内清掃・エアコン洗浄費借主負担
|
| エネルギー消費性能 |
- |
| 断熱性能 |
- |
| 目安光熱費 |
- |
| バス・トイレ |
バス・トイレ別、浴室乾燥機、追焚機能、洗面台、シャワー、温水洗浄便座、トイレ |
| キッチン |
2口コンロ、ガスコンロ付 |
| セキュリティー |
モニター付オートロック、モニター付インターホン、防犯カメラ |
| 収納 |
収納スペース |
| 設備・サービス |
室内洗濯機置場、給湯、フローリング、エアコン、照明器具 |
| TV・通信 |
インターネット対応、光ファイバー |
| その他 |
宅配BOX、バルコニー、エレベーター |
| 契約期間 |
2年 |
現況 |
居住中 |
| 条件等 |
- |
入居可能時期 |
2025年12月20日予定 |
| 更新料 |
新賃料 1ヶ月 |
物件番号 |
1139391015 |
| 情報公開日 |
2025年11月5日 |
次回更新予定日 |
2025年11月19日 |
| ケータイ用バーコード |
- スマートフォンでこの物件を見る
- スマートフォンからもこの物件をご覧になれます。
|
※「-」と表示されている項目については、情報提供会社にご確認ください。
| 周辺施設 |
まいばすけっと深川2丁目店 |
| 距離 |
560m |
写真を見る |
| 周辺施設 |
ファミリーマート江東深川二丁目店 |
| 距離 |
80m |
| 周辺施設 |
セブンイレブン江東門前仲町店 |
| 距離 |
220m |
| 周辺施設 |
ココカラファイン門前仲町店 |
| 距離 |
270m |
| 周辺施設 |
くすりの福太郎門前仲町店 |
| 距離 |
370m |
写真を見る |
ここから簡単にお問い合わせをすることができます。
(SSLでの暗号化での送信を希望されるお客さまは
こちら
よりお問い合わせください)
お問い合わせを行う前に
「個人情報の取り扱いについて」を必ずお読みください。
「個人情報の取り扱いについて」に同意いただいた場合は「上記にご同意の上 確認画面へ進む」のボタンをクリックしてください。
個人情報の取り扱いについて
皆さまが送付された個人情報はアットホーム(株)のサーバを経由し、お問い合わせ先の不動産会社にメールまたはFAXにて転送されるためアットホーム(株)にも保管されます。アットホーム(株)で保管された個人情報の取り扱いについては、【こちら】をご覧ください。
また、本画面でご記入いただいた個人情報は、お問い合わせ先の不動産会社でも保管します。 お問い合わせ先の不動産会社が保管する個人情報の取り扱いについては、不動産会社に直接お問い合わせください。
国土交通大臣免許(6)第6019号 |
|---|
- 交通:
- 東京メトロ丸ノ内線/西新宿駅 徒歩4分
- 東京都新宿区北新宿2丁目21-1 新宿フロントタワー 32F
- TEL:
- 03-6908-9997
- 所属団体:
- (一社)不動産流通経営協会会員(公財)日本賃貸住宅管理協会会員(公社)首都圏不動産公正取引協議会加盟
取引態様:貸主  - 00780703
|
- スマートフォンで
この不動産会社を見る

|
- 提携サイト等より掲載されている物件情報につきましては、不動産会社詳細情報にリンクされていないものがあります。
- 物件に関するお問合せは、物件詳細ページの「情報提供会社」に表示されている不動産会社へ直接お願いいたします。
- 間取図は、現況を優先させていただきます。
- 映像は物件の一部を撮影したものです。物件の契約にあたっての最終判断はご自身の判断に基づいて行ってください。
- 仲介手数料について

アットホームは物件情報の適正化に努めております。
内容に誤りがある場合にはこちらへご連絡ください。