静岡県浜松市中央区中央1丁目(第一通り駅)の賃貸:物件詳細
交通 所在地 |
駅徒歩 |
賃料 管理費等 |
敷金/保証金 礼金 |
間取り 面積 |
物件種目 築年月 |
|
遠州鉄道/第一通り
静岡県浜松市中央区中央1丁目
|
7分
|
19万円
なし
|
2ヶ月 / なし
1ヶ月
|
3LDK
80.18m²
|
賃貸マンション
2014年9月(築11年4ヶ月)
|
ペット相談、分譲タイプ、常時ゴミ出し可能、南向き、IT重説対応物件、保証人不要
|
|
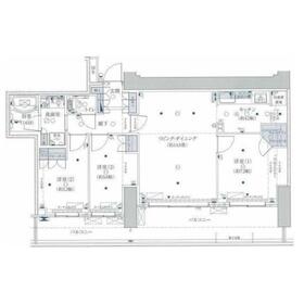
間取図
|
外観
|
<
その他の画像
>
|
| 交通 | 遠州鉄道 第一通り駅 徒歩7分 |
|---|
| その他の交通 | 遠州鉄道 遠州病院駅 徒歩8分 東海道本線 浜松駅 徒歩11分 |
| 所在地 |
静岡県浜松市中央区中央1丁目
|
| 物件種目 |
賃貸マンション |
| 賃料 |
19万円 |
管理費等 |
なし |
| 敷金 / 保証金 |
2ヶ月 / なし |
礼金 |
1ヶ月 |
| 敷引 |
- |
保証金償却 |
- |
| その他一時金 |
なし |
保険等 |
要 |
| 維持費等 |
- |
| 間取り |
3LDK(洋室5.6・洋室5.3・洋室7.2・LDK18.2) |
専有面積 |
80.18m² |
| 築年月 |
2014年9月(築11年4ヶ月)
|
階建 / 階 |
25階建 / 12階 |
| 建物構造 |
RC |
総戸数 |
115戸 |
| 主要採光面 |
南 |
駐車場 |
有 10,000円/月 |
| バイク置き場 |
無 |
駐輪場 |
有 |
| 建物名・部屋番号 |
|
ペット |
相談 |
| アピールポイント |
分譲賃貸★中央区中央一丁目★12階からの眺望は一見の価値あり♪ゆとりの3LDK★
人気の東小学校区★浜松駅徒歩圏内の好立地で新生活を始めませんか♪
ペット可となりました! |
| リフォーム履歴 |
- |
| リノベーション履歴 |
- |
| 備考 |
賃貸保証等:加入要(詳細はお問い合わせ下さい。)
管理形態/管理員の勤務形態:-/-
IT重説対応物件
分譲賃貸・ペット可(敷金+1か月)・オートロック・24時間ゴミ出し可・各階ゴミ庫あり・駐車1台可・全室南向き・陽当たり良好・眺望良好・追焚・浴室乾燥・1坪風呂・システムキッチン・都市ガス・ウォークインクローゼット・クローゼット・シャワートイレ・浜松駅徒歩圏内・JR沿線・遠鉄沿線・保証会社必須・保証人不要 ※現況優先
|
| エネルギー消費性能 |
- |
| 断熱性能 |
- |
| 目安光熱費 |
- |
| バス・トイレ |
バス・トイレ別、浴室乾燥機、追焚機能、シャワー付洗面化粧台、シャワー、温水洗浄便座、トイレ |
| キッチン |
システムキッチン、独立型キッチン、3口以上コンロ |
| セキュリティー |
オートロック、モニター付インターホン、防犯カメラ |
| 収納 |
ウォークインクローゼット、クローゼット、シューズボックス |
| 設備・サービス |
室内洗濯機置場、洗濯機置場、給湯、都市ガス、エアコン |
| TV・通信 |
インターネット使用料無料、ケーブルTV |
| その他 |
宅配BOX、エレベーター2基以上、バルコニー、駐輪場、エレベーター |
| 契約期間 |
1年 |
現況 |
空家 |
| 条件等 |
- |
入居可能時期 |
即時 |
| 仲介手数料 |
1ヶ月 |
|
|
| 更新料 |
- |
物件番号 |
1139809210 |
| 情報公開日 |
2025年7月9日 |
次回更新予定日 |
2025年12月8日 |
| ケータイ用バーコード |
- スマートフォンでこの物件を見る
- スマートフォンからもこの物件をご覧になれます。
|
※「-」と表示されている項目については、情報提供会社にご確認ください。
| 周辺施設 |
浜松市立東小学校 |
| 距離 |
520m |
写真を見る |
| 周辺施設 |
浜松市立八幡中学校 |
| 距離 |
1385m |
写真を見る |
| 周辺施設 |
アクトプラザ |
| 距離 |
684m |
写真を見る |
| 周辺施設 |
May One Ekimachi |
| 距離 |
771m |
写真を見る |
| 周辺施設 |
スーパーいしはらフィーネ東田町店 |
| 距離 |
301m |
写真を見る |
| 周辺施設 |
マックスバリュ エクスプレス浜松常盤町店 |
| 距離 |
592m |
写真を見る |
| 周辺施設 |
セブンイレブン浜松イーストタウン店 |
| 距離 |
150m |
| 周辺施設 |
ファミリーマート浜松中央3丁目店 |
| 距離 |
408m |
写真を見る |
ここから簡単にお問い合わせをすることができます。
(SSLでの暗号化での送信を希望されるお客さまは
こちら
よりお問い合わせください)
お問い合わせを行う前に
「個人情報の取り扱いについて」を必ずお読みください。
「個人情報の取り扱いについて」に同意いただいた場合は「上記にご同意の上 確認画面へ進む」のボタンをクリックしてください。
個人情報の取り扱いについて
皆さまが送付された個人情報はアットホーム(株)のサーバを経由し、お問い合わせ先の不動産会社にメールまたはFAXにて転送されるためアットホーム(株)にも保管されます。アットホーム(株)で保管された個人情報の取り扱いについては、【こちら】をご覧ください。
また、本画面でご記入いただいた個人情報は、お問い合わせ先の不動産会社でも保管します。 お問い合わせ先の不動産会社が保管する個人情報の取り扱いについては、不動産会社に直接お問い合わせください。
静岡県知事免許(4)第13116号 |
|---|
- 交通:
- 【バス】 浜松スポーツセンター
- 静岡県浜松市中央区宮竹町648
- TEL:
- 053-468-1313
- FAX:
- 053-468-1323
- 所属団体:
- (公社)静岡県宅地建物取引業協会会員東海不動産公正取引協議会加盟
取引態様:仲介  - 40402644
|
- スマートフォンで
この不動産会社を見る

|
- 提携サイト等より掲載されている物件情報につきましては、不動産会社詳細情報にリンクされていないものがあります。
- 物件に関するお問合せは、物件詳細ページの「情報提供会社」に表示されている不動産会社へ直接お願いいたします。
- 間取図は、現況を優先させていただきます。
- 映像は物件の一部を撮影したものです。物件の契約にあたっての最終判断はご自身の判断に基づいて行ってください。
- 仲介手数料について

アットホームは物件情報の適正化に努めております。
内容に誤りがある場合にはこちらへご連絡ください。