埼玉県富士見市鶴瀬東1丁目(鶴瀬駅)の賃貸:物件詳細
交通 所在地 |
駅徒歩 |
賃料 管理費等 |
敷金/保証金 礼金 |
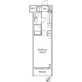
間取り 面積 |
物件種目 築年月 |
|
東武東上線/鶴瀬
埼玉県富士見市鶴瀬東1丁目
|
2分
|
6.3万円
6,000円
|
なし / なし
なし
|
1K
26.04m²
|
賃貸マンション
2009年3月(築17年1ヶ月)
|
南向き、24時間換気システム、保証人不要
|
|
間取図
|
外観
|
<
その他の画像
>
|
| 交通 | 東武東上線 鶴瀬駅 徒歩2分 |
|---|
| その他の交通 | 東武東上線 みずほ台駅 徒歩20分 東武東上線 柳瀬川駅 徒歩40分 |
| 所在地 |
埼玉県富士見市鶴瀬東1丁目
|
| 物件種目 |
賃貸マンション |
| 賃料 |
6.3万円 |
管理費等 |
6,000円 |
| 敷金 / 保証金 |
なし / なし |
礼金 |
なし |
| 敷引 |
- |
保証金償却 |
- |
| その他一時金 |
なし |
保険等 |
要 2年 18,000円 |
| 維持費等 |
- |
| 間取り |
1K(洋0、K0) |
専有面積 |
26.04m² |
| 築年月 |
2009年3月(築17年1ヶ月)
|
階建 / 階 |
7階建 / 4階 |
| 建物構造 |
RC |
総戸数 |
- |
| 主要採光面 |
南 |
駐車場 |
無 |
| バイク置き場 |
無 |
駐輪場 |
有 |
| 建物名・部屋番号 |
ソレイユ鶴瀬 |
ペット |
-
|
| アピールポイント |
◆シンクロの宣言◆
1.望まない仲介料以外の費用を直接請求いたしません。
※24時間サポート費、除菌消臭代、事務手数料…等
2.市場の物件は出し惜しみいたしません。
※店舗から近い物件だけの紹介や、自社物件のゴリ押し…等
3.他社様の広告物件も、空いていれば同条件以上でご紹介できます。
※セカンドオピニオンとしてご活用を
4.水曜日も営業中です。
※年末年始、特別休暇除く
5.内見は車にてご案内しております。
※電車や徒歩でも可
6.初期費用分割払い可能です。
※審査あり、クレカ払い可
■”最短5秒”でお返事します!!■
【プロ賃貸師×診断×提案】
「 賃貸物件は“1点もの”。
それだけに物件検索と等しく【業者選び】がとても大切です!
物件の強みも弱点も正直に、シンクロは無理なご提案をいたしません。
焦らず納得できる選択をご一緒に!
『空室確認はおヘヤ探しの第一歩!』」 |
| リフォーム履歴 |
- |
| リノベーション履歴 |
- |
| 備考 |
賃貸保証等:加入要(契約時:月額総賃料の50%~要。※保証会社により費用は異なります。)
管理形態/管理員の勤務形態:-/巡回
管理人巡回
★シンクロから★
『 一度お気軽に…』
「申込や内見をご検討されてはいかがでしょうか?」
「この物件をきっかけに、本格的にお探しになりませんか?」
↓↓
『 シンクロでは…』
「お客様のご希望をお聞きし、焦らず丁寧なご提案を心がけております」
↓↓
『 初回のお客様は…』
◯ ご来店.オンラインからお願いしております
× 問合せ物件の無条件内見、現地集合は行っておりません
↓↓
『 その理由が…』
1. お客様と貸主様、双方の条件をきちんと確認.調整を重視するため
2. 物件は「先着順」の1点もの、先に申込が入るとご紹介できないため
↓↓
『 お部屋探しの流れは…』
1. ご相談 :ご来店.オンラインでヒアリング
2. 条件整理:状況と条件を整理
2. 情報確認:最新情報・未公開・洗い出しで情報をチェック
3. 内見 :空室ならその場で内見
4. 申込 :気に入ればその場でお申込みも可能
↓↓↓
焦らず納得できるご選択のため、「お問合せはお部屋探しの第一歩!」です!お気軽にご予約下さい!
|
| エネルギー消費性能 |
- |
| 断熱性能 |
- |
| 目安光熱費 |
- |
| バス・トイレ |
バス・トイレ別、洗面所独立、洗面所、洗面台、シャワー、トイレ |
| キッチン |
システムキッチン、ガスコンロ可 |
| セキュリティー |
オートロック、防犯カメラ |
| 収納 |
収納スペース、クローゼット、シューズボックス |
| 設備・サービス |
室内洗濯機置場、洗濯機置場、全居室フローリング、フローリング、エアコン |
| TV・通信 |
インターネット対応 |
| その他 |
バルコニー、駐輪場、エレベーター |
| 契約期間 |
2年 |
現況 |
居住中 |
| 条件等 |
- |
入居可能時期 |
相談 |
| 仲介手数料 |
0.55ヶ月 |
|
|
| 更新料 |
新賃料 1.5ヶ月 |
物件番号 |
1140109522 |
| 情報公開日 |
2026年2月28日 |
次回更新予定日 |
2026年3月14日 |
| ケータイ用バーコード |
- スマートフォンでこの物件を見る
- スマートフォンからもこの物件をご覧になれます。
|
※「-」と表示されている項目については、情報提供会社にご確認ください。
| 周辺施設 |
和光市役所 |
| 距離 |
9344m |
写真を見る |
ここから簡単にお問い合わせをすることができます。
(SSLでの暗号化での送信を希望されるお客さまは
こちら
よりお問い合わせください)
お問い合わせを行う前に
「個人情報の取り扱いについて」を必ずお読みください。
「個人情報の取り扱いについて」に同意いただいた場合は「上記にご同意の上 確認画面へ進む」のボタンをクリックしてください。
個人情報の取り扱いについて
皆さまが送付された個人情報はアットホーム(株)のサーバを経由し、お問い合わせ先の不動産会社にメールまたはFAXにて転送されるためアットホーム(株)にも保管されます。アットホーム(株)で保管された個人情報の取り扱いについては、【こちら】をご覧ください。
また、本画面でご記入いただいた個人情報は、お問い合わせ先の不動産会社でも保管します。 お問い合わせ先の不動産会社が保管する個人情報の取り扱いについては、不動産会社に直接お問い合わせください。
東京都知事免許(1)第109538号 |
|---|
- 交通:
- JR山手線/池袋駅 徒歩5分
- 東京都豊島区南池袋2丁目10-5 IMB南池袋ビル201号室
- TEL:
- 03-5985-4345
- FAX:
- 03-5985-4346
- 所属団体:
- (公社)全日本不動産協会会員(公社)首都圏不動産公正取引協議会加盟
取引態様:仲介  - 00275624
|
- スマートフォンで
この不動産会社を見る

|
- 提携サイト等より掲載されている物件情報につきましては、不動産会社詳細情報にリンクされていないものがあります。
- 物件に関するお問合せは、物件詳細ページの「情報提供会社」に表示されている不動産会社へ直接お願いいたします。
- 間取図は、現況を優先させていただきます。
- 映像は物件の一部を撮影したものです。物件の契約にあたっての最終判断はご自身の判断に基づいて行ってください。
- 仲介手数料について

アットホームは物件情報の適正化に努めております。
内容に誤りがある場合にはこちらへご連絡ください。