東京都品川区南大井6丁目(大森駅)の賃貸:物件詳細
交通 所在地 |
駅徒歩 |
賃料 管理費等 |
敷金/保証金 礼金 |
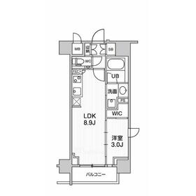
間取り 面積 |
物件種目 築年月 |
|
JR京浜東北線/大森
東京都品川区南大井6丁目
|
4分
|
16.5万円
15,000円
|
1ヶ月 / なし
なし
|
1LDK
30.71m²
|
賃貸マンション
2024年4月(築1年10ヶ月)
|
フリーレント、常時ゴミ出し可能、角部屋、南向き、高齢者相談、二人入居可、保証人不要
|
|
間取図
|
外観
建物外観を気になさる方へ、見た目の良い物件です
|
<
その他の画像
>
|
| 交通 | JR京浜東北線 大森駅 徒歩4分 |
|---|
| その他の交通 | 京急本線 大森海岸駅 徒歩7分 京急本線 立会川駅 徒歩19分 |
| 所在地 |
東京都品川区南大井6丁目
|
| 物件種目 |
賃貸マンション |
| 賃料 |
16.5万円 |
管理費等 |
15,000円 |
| 敷金 / 保証金 |
1ヶ月 / なし |
礼金 |
なし |
| 敷引 |
- |
保証金償却 |
- |
| その他一時金 |
エアコン清掃費/1台につき:11,000円、室内清掃費用:38,500円、鍵交換代等:33,000円~ |
保険等 |
要 |
| 維持費等 |
- |
| 間取り |
1LDK(LDK8.9、洋3) |
専有面積 |
30.71m² |
| 築年月 |
2024年4月(築1年10ヶ月)
|
階建 / 階 |
10階建 / 6階 |
| 建物構造 |
RC |
総戸数 |
- |
| 主要採光面 |
南 |
駐車場 |
近有 35,000円/月 |
| バイク置き場 |
有 8,800円/月 |
駐輪場 |
有 550円/月 |
| 建物名・部屋番号 |
シーズンフラッツ大森ブライト |
ペット |
-
|
| アピールポイント |
室内設備は洗面化粧台・浴室乾燥機など大変充実しております。セキュリティ面は、オートロック・TVインターホンなど充実しているので、防犯対策もばっちりです。共用部には宅配ボックス・ゴミ出し24時間OKなどが揃っております。収納はクロゼット・全居室収納など豊富なので、広々と空間を利用することも可能です。毎日の生活が楽しくなるお家、1LDKで広くて落ち着きます。10階建てで街並みにも馴染んだ物件です。新しい生活を気持ちよく送れる風通しの良い物件はいかがですか。駐輪場付きの物件です。毎日スマートフォンで長時間SNSを利用するという方、インターネット無料なので通信容量を気にすることなくインターネットをお使いいただけます。こちらのお部屋は角部屋です。清掃しやすくニーズの高い全居室フローリングのお住まいです。 |
| リフォーム履歴 |
- |
| リノベーション履歴 |
- |
| 備考 |
賃貸保証等:加入要(初回契約時:25%、更新時:10,000円、その他保証会社あり)
管理形態/管理員の勤務形態:-/-
フリーレント:1ヶ月
共用部にはゴミ出し24時間OK・宅配ボックスなどが備わっておりとても充実しています。収納はクロゼット・全居室収納などが備え付けられているので、衣類や日用品の収納に重宝します。室内設備は洗面所独立・浴室乾燥機など豊富に揃っており、過ごしやすいお部屋になっております。セキュリティ面は、TVインターホン・オートロックなどを備え付けているので安心して暮らせます。駅まで歩いてアクセスできる、徒歩4分の距離に立地する物件です。お引越しをお考えなら令和8年2月の入居日指定はありますが、好評の物件です。2口コンロが付いているので、同時に2つの料理できるので毎日忙しい人におすすめです。全居室フローリングなので、ハウスダストの温床になりにくいです。地上10階建ての物件。防犯カメラが付いているので、犯罪の抑止や不法投棄などによる入居者同士のトラブルも防止できます。付近に駅が2駅あり、行き先に応じて使い分けができます。
|
| エネルギー消費性能 |
- |
| 断熱性能 |
- |
| 目安光熱費 |
- |
| バス・トイレ |
バス・トイレ別、浴室乾燥機、オートバス、洗面所独立、洗面所、温水洗浄便座、トイレ |
| キッチン |
システムキッチン、2口コンロ、ガスコンロ可 |
| セキュリティー |
モニター付オートロック、オートロック、モニター付インターホン、ディンプルキー、ダブルロックドア、防犯カメラ |
| 収納 |
全居室収納、ウォークインクローゼット、収納スペース、クローゼット |
| 設備・サービス |
室内洗濯機置場、洗濯機置場、全居室フローリング、フローリング、エアコン、冷房 |
| TV・通信 |
インターネット対応、インターネット使用料無料、CATVインターネット、ケーブルTV、CS、BS端子 |
| その他 |
宅配BOX、バイク置き場、バルコニー、駐輪場、エレベーター |
| 契約期間 |
2年 |
現況 |
居住中 |
| 条件等 |
- |
入居可能時期 |
2026年2月中旬予定 |
| 更新料 |
新賃料 1ヶ月 |
物件番号 |
1140414419 |
| 情報公開日 |
2025年12月22日 |
次回更新予定日 |
2026年1月5日 |
| ケータイ用バーコード |
- スマートフォンでこの物件を見る
- スマートフォンからもこの物件をご覧になれます。
|
※「-」と表示されている項目については、情報提供会社にご確認ください。
| 周辺施設 |
まいばすけっと 大森北4丁目店 |
| 距離 |
1075m |
写真を見る |
| 周辺施設 |
文化堂 西大井店 |
| 距離 |
1985m |
写真を見る |
| 周辺施設 |
セブンイレブン 大田区大森駅南店 |
| 距離 |
829m |
写真を見る |
| 周辺施設 |
みなみ薬局サンフラワー店 |
| 距離 |
804m |
写真を見る |
| 周辺施設 |
ローソンストア100 LS大森北店 |
| 距離 |
761m |
写真を見る |
| 周辺施設 |
ごぞうろっぷ |
| 距離 |
733m |
写真を見る |
ここから簡単にお問い合わせをすることができます。
(SSLでの暗号化での送信を希望されるお客さまは
こちら
よりお問い合わせください)
お問い合わせを行う前に
「個人情報の取り扱いについて」を必ずお読みください。
「個人情報の取り扱いについて」に同意いただいた場合は「上記にご同意の上 確認画面へ進む」のボタンをクリックしてください。
個人情報の取り扱いについて
皆さまが送付された個人情報はアットホーム(株)のサーバを経由し、お問い合わせ先の不動産会社にメールまたはFAXにて転送されるためアットホーム(株)にも保管されます。アットホーム(株)で保管された個人情報の取り扱いについては、【こちら】をご覧ください。
また、本画面でご記入いただいた個人情報は、お問い合わせ先の不動産会社でも保管します。 お問い合わせ先の不動産会社が保管する個人情報の取り扱いについては、不動産会社に直接お問い合わせください。
東京都知事免許(1)第107337号 |
|---|
- 交通:
- JR山手線/新宿駅 徒歩1分
- 東京都新宿区西新宿1丁目3-3 品川ステーションビル新宿5F
- TEL:
- 03-6258-0867
- 所属団体:
- (公社)東京都宅地建物取引業協会会員(公社)首都圏不動産公正取引協議会加盟
取引態様:仲介  - 00278932
|
- スマートフォンで
この不動産会社を見る

|
- 提携サイト等より掲載されている物件情報につきましては、不動産会社詳細情報にリンクされていないものがあります。
- 物件に関するお問合せは、物件詳細ページの「情報提供会社」に表示されている不動産会社へ直接お願いいたします。
- 間取図は、現況を優先させていただきます。
- 映像は物件の一部を撮影したものです。物件の契約にあたっての最終判断はご自身の判断に基づいて行ってください。
- 仲介手数料について

アットホームは物件情報の適正化に努めております。
内容に誤りがある場合にはこちらへご連絡ください。