不動産 賃貸 マンション等の住宅情報:埼玉住まい情報


岡山県倉敷市茶屋町(茶屋町駅)の賃貸:物件詳細

  • 物件詳細
  • 情報の見方
  • 印刷用画面
交通
所在地
駅徒歩 賃料
管理費等
敷金/保証金
礼金
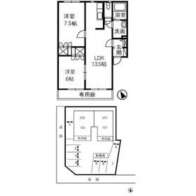
間取り
面積
物件種目
築年月

宇野線/茶屋町

岡山県倉敷市茶屋町

5分

5.8万円

2,000円

2ヶ月 / なし

なし

2LDK

57.13m²

賃貸アパート

2001年3月(築24年8ヶ月)

おすすめPOINT駐車場2台分、角部屋、南向き、24時間セキュリティー、24時間換気システム、閑静な住宅街、IT重説対応物件

おすすめコメント

♪人気エリア茶屋町2LDKのお部屋です♪☆新婚さん・ファミリーさんにオススメの2LDKのお部屋です☆♪室内も広々したお部屋でLDK13帖もありゆったりと過ごせますよ♪☆お気軽にお問い合わせ下さい☆

間取図

間取図

外観

外観

<
その他の画像
  • 室内
  • キッチン
  • バス/シャワー
  • トイレ
  • 室内
  • 洗面
  • 収納
  • バルコニー
  • 玄関
  • その他
  • その他
  • 設備
  • 収納
  • 収納
  • 室内
  • 収納
  • 駐車場
  • その他
  • 共有部分
  • その他
  • 駐車場
  • エントランス
  • その他
  • 販売店
  • 販売店
  • コンビニ
  • 販売店
  • 販売店
  • 郵便局
>
    • とりあえず保存
    • お問い合わせ
    交通

    宇野線 茶屋町駅 徒歩5分

    その他の交通

    宇野線 久々原駅 徒歩27分

    所在地 岡山県倉敷市茶屋町
    物件種目 賃貸アパート
    賃料 5.8万円 管理費等 2,000円
    敷金 / 保証金 2ヶ月 / なし 礼金 なし
    敷引 保証金償却
    その他一時金 なし、鍵交換代等:13,200円~ 保険等 要 2年 20,000円
    維持費等
    間取り 2LDK(洋室7.5・和室6・LDK13.5) 専有面積 57.13m²
    築年月 2001年3月(築24年8ヶ月) 階建 / 階 2階建 / 1階
    建物構造 木造 総戸数
    主要採光面 駐車場 有 無料
    バイク置き場 駐輪場
    建物名・部屋番号 ゆず ペット
    リフォーム履歴
    リノベーション履歴
    備考
    賃貸保証等:利用可(初回契約時:50%、月額:1%)
    管理形態/管理員の勤務形態:-/-
    IT重説対応物件
    詳しくはお問い合わせください
    詳しくはお問い合わせください
    エネルギー消費性能
    断熱性能
    目安光熱費
    バス・トイレ バス・トイレ別、洗面所独立、洗面所、洗面台、シャワー、トイレ
    キッチン ガスコンロ可
    セキュリティー モニター付インターホン、防犯用ガラス、火災警報器(報知機)
    収納 全居室収納、クローゼット、シューズボックス
    設備・サービス 室内洗濯機置場、洗濯機置場、給湯、全居室フローリング、フローリング、プロパンガス、エアコン
    TV・通信 BS端子
    その他 バイク置き場、専用庭、庭、駐輪場
    契約期間 2年 現況 空家
    条件等 入居可能時期 即時
    更新料 物件番号 1141044310
    情報公開日 2025年10月8日 次回更新予定日 2025年11月4日
    ケータイ用バーコード

    QRコード

    スマートフォンでこの物件を見る
    スマートフォンからもこの物件をご覧になれます。
    ※「-」と表示されている項目については、情報提供会社にご確認ください。

    この物件の周辺情報

    周辺施設 業務スーパーエブリイ
    距離 409m
    周辺施設 山陽マルナカ
    距離 447m
    周辺施設 セブンイレブン
    距離 387m
    周辺施設 スーパードラッグひまわり
    距離 381m
    周辺施設 ホームセンタージュンテンドー
    距離 430m
    周辺施設 茶屋町郵便局
    距離 224m

    クイックお問い合わせ

    ここから簡単にお問い合わせをすることができます。
    (SSLでの暗号化での送信を希望されるお客さまは こちら よりお問い合わせください)

    お問い合わせ内容(必須)
    お名前(必須) 姓  名 
    メールアドレス(必須)
    ※携帯電話のメールアドレスをご入力される方はこちらをご確認ください
    電話番号(必須)
    - -

    ※入力いただいた電話番号へSMSまたは音声でパスワードをご連絡します。

    携帯電話の番号をご入力の方へ

    携帯電話の番号をご入力の方へ
    確認画面にて送信ボタンをクリックするとSMSが携帯電話に届きます。
    そのSMSに記載のパスワード(認証番号)を入力し、お問い合わせを完了してください。
    尚、SMSの送信者番号は 0005 202 760 となります。
    これはアットホームの固定番号です。

    備考欄 希望条件、物件案内希望日、質問などがございましたらご記入ください。
    お問い合わせを行う前に「個人情報の取り扱いについて」を必ずお読みください。
    「個人情報の取り扱いについて」に同意いただいた場合は「上記にご同意の上 確認画面へ進む」のボタンをクリックしてください。

    個人情報の取り扱いについて

    皆さまが送付された個人情報はアットホーム(株)のサーバを経由し、お問い合わせ先の不動産会社にメールまたはFAXにて転送されるためアットホーム(株)にも保管されます。アットホーム(株)で保管された個人情報の取り扱いについては、【こちら】をご覧ください。
    また、本画面でご記入いただいた個人情報は、お問い合わせ先の不動産会社でも保管します。 お問い合わせ先の不動産会社が保管する個人情報の取り扱いについては、不動産会社に直接お問い合わせください。

    情報提供会社

    情報提供会社

    エイブルネットワーク 妹尾店 BRUNO不動産(株)

    国土交通大臣免許(1)第10228号

    交通:
    宇野線/妹尾駅 徒歩17分
    岡山県岡山市南区妹尾2344-5 
    TEL:
    086-259-0450
    FAX:
    086-259-0460
    所属団体:
    (公社)全日本不動産協会会員
    中国地区不動産公正取引協議会加盟

    取引態様:仲介

    • 会社情報
    • 50108501
    スマートフォンで
    この不動産会社を見る
    QRコード
    • とりあえず保存
    • お問い合わせ
    • 提携サイト等より掲載されている物件情報につきましては、不動産会社詳細情報にリンクされていないものがあります。
    • 物件に関するお問合せは、物件詳細ページの「情報提供会社」に表示されている不動産会社へ直接お願いいたします。
    • 間取図は、現況を優先させていただきます。
    • 映像は物件の一部を撮影したものです。物件の契約にあたっての最終判断はご自身の判断に基づいて行ってください。
    • 仲介手数料について仲介手数料

    アットホームは物件情報の適正化に努めております。 内容に誤りがある場合にはこちらへご連絡ください。

    【埼玉住まい情報】では、日本全国の物件から賃貸マンションや賃貸アパート・賃貸一戸建て等の賃貸住宅情報、新築マンション・分譲マンションや中古マンション等の売買マンション情報、新築一戸建てや中古一戸建てなどの戸建住宅、 土地など、総合的な不動産住宅情報検索サービスを提供致します。
    【埼玉住まい情報】から、選りすぐりの不動産物件を探してみましょう。

    【免責事項】
    このコーナーの運営はアットホーム株式会社(https://www.athome.co.jp/)が行っています。
    このコーナーに掲載している物件情報は、「アットホーム不動産情報ネットワーク」に加盟する不動産会社等(情報提供元)から提供されています。信頼性の高い情報提供が行えるよう、最大限の努力をしておりますが、その内容を保証するものではありません。 利用者のみなさまと各情報提供元との取引に起因する損害および情報が掲載されたことに起因する損害等については、株式会社イーシティ埼玉、およびアットホームは一切責任を負いません。
    各物件情報の内容や画像等はすべて現況を優先させていただきます。
    お取引等(お取引の準備、資金調達等を含みます)の際には、内容や契約条件等について、各情報提供元より十分な説明を受け、ご自身でご確認の上、判断してください。
    このコーナーへの物件情報のご掲載、その他不動産業務ソリューション等についての不動産会社様のお問合せはこちらからお願いいたします。

    物件画像: