愛知県名古屋市名東区猪高台2丁目(上社駅)の賃貸:物件詳細
交通 所在地 |
駅徒歩 |
賃料 管理費等 |
敷金/保証金 礼金 |
間取り 面積 |
物件種目 築年月 |
|
名古屋市東山線/上社
愛知県名古屋市名東区猪高台2丁目
|
10分
|
6.45万円
10,000円
|
なし / なし
なし
|
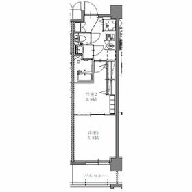
2K
28.56m²
|
賃貸マンション
2025年7月
|
24時間換気システム
|
|
間取図
|
外観
|
<
その他の画像
>
|
|
|
| 交通 | 名古屋市東山線 上社駅 徒歩10分 |
|---|
| その他の交通 | 名古屋市東山線 本郷駅 徒歩15分 名古屋市東山線 一社駅 徒歩22分 |
| 所在地 |
愛知県名古屋市名東区猪高台2丁目
|
| 物件種目 |
賃貸マンション |
| 賃料 |
6.45万円 |
管理費等 |
10,000円 |
| 敷金 / 保証金 |
なし / なし |
礼金 |
なし |
| 敷引 |
- |
保証金償却 |
- |
| その他一時金 |
なし |
保険等 |
要 2年 20,000円 |
| 維持費等 |
- |
クレジットカード決済 |
初期費用可 |
| 間取り |
2K(洋室3.9・洋室5.8) |
専有面積 |
28.56m² |
| 築年月 |
2025年7月
|
階建 / 階 |
6階建 / 1階 |
| 建物構造 |
RC |
総戸数 |
52戸 |
| 主要採光面 |
|
駐車場 |
有 22,000円/月 |
| バイク置き場 |
無 |
駐輪場 |
有 無料 |
| 建物名・部屋番号 |
S-RESIDENCE上社aureate 104 |
ペット |
-
|
| リフォーム履歴 |
- |
| リノベーション履歴 |
- |
| 備考 |
賃貸保証等:加入要(初回保証料:総家賃の50%)
管理形態/管理員の勤務形態:-/巡回
管理人巡回
法人契約は礼金1ヶ月必要 短期解約違約金
|
| エネルギー消費性能 |
- |
| 断熱性能 |
- |
| 目安光熱費 |
- |
| バス・トイレ |
バス・トイレ別、浴室乾燥機、洗面所独立、洗面所、洗面台、シャワー、温水洗浄便座、トイレ |
| キッチン |
システムキッチン、2口コンロ、ガスコンロ付 |
| セキュリティー |
オートロック、モニター付インターホン、火災警報器(報知機) |
| 収納 |
全居室収納、収納スペース、クローゼット、シューズボックス |
| 設備・サービス |
室内洗濯機置場、洗濯機置場、給湯、全居室フローリング、フローリング、都市ガス、エアコン |
| TV・通信 |
インターネット使用料無料、CATVインターネット、ケーブルTV |
| その他 |
宅配BOX、バルコニー、駐輪場、エレベーター |
| 契約期間 |
2年 |
現況 |
空家 |
| 条件等 |
- |
入居可能時期 |
即時 |
| 更新料 |
新賃料 1ヶ月 |
物件番号 |
1141275810 |
| 情報公開日 |
2026年1月29日 |
次回更新予定日 |
2026年2月13日 |
| ケータイ用バーコード |
- スマートフォンでこの物件を見る
- スマートフォンからもこの物件をご覧になれます。
|
※「-」と表示されている項目については、情報提供会社にご確認ください。
| 周辺施設 |
セブンイレブン名古屋猪高台店 |
| 距離 |
338m |
写真を見る |
| 周辺施設 |
コープあいち上社店 |
| 距離 |
580m |
写真を見る |
| 周辺施設 |
トップワン食品館本郷店 |
| 距離 |
880m |
写真を見る |
| 周辺施設 |
スギ薬局文教台店 |
| 距離 |
349m |
写真を見る |
| 周辺施設 |
医療法人杉山会すぎやま病院 |
| 距離 |
488m |
写真を見る |
ここから簡単にお問い合わせをすることができます。
(SSLでの暗号化での送信を希望されるお客さまは
こちら
よりお問い合わせください)
お問い合わせを行う前に
「個人情報の取り扱いについて」を必ずお読みください。
「個人情報の取り扱いについて」に同意いただいた場合は「上記にご同意の上 確認画面へ進む」のボタンをクリックしてください。
個人情報の取り扱いについて
皆さまが送付された個人情報はアットホーム(株)のサーバを経由し、お問い合わせ先の不動産会社にメールまたはFAXにて転送されるためアットホーム(株)にも保管されます。アットホーム(株)で保管された個人情報の取り扱いについては、【こちら】をご覧ください。
また、本画面でご記入いただいた個人情報は、お問い合わせ先の不動産会社でも保管します。 お問い合わせ先の不動産会社が保管する個人情報の取り扱いについては、不動産会社に直接お問い合わせください。
愛知県知事免許(4)第20705号 |
|---|
- 交通:
- 名古屋市東山線/覚王山駅 徒歩1分
- 愛知県名古屋市千種区覚王山通9丁目18
- TEL:
- 052-757-5577
- 所属団体:
- (公社)全日本不動産協会会員東海不動産公正取引協議会加盟
取引態様:仲介  - 40406018
|
- スマートフォンで
この不動産会社を見る

|
- 提携サイト等より掲載されている物件情報につきましては、不動産会社詳細情報にリンクされていないものがあります。
- 物件に関するお問合せは、物件詳細ページの「情報提供会社」に表示されている不動産会社へ直接お願いいたします。
- 間取図は、現況を優先させていただきます。
- 映像は物件の一部を撮影したものです。物件の契約にあたっての最終判断はご自身の判断に基づいて行ってください。
- 仲介手数料について

アットホームは物件情報の適正化に努めております。
内容に誤りがある場合にはこちらへご連絡ください。