福岡県福岡市博多区博多駅前1丁目(博多駅)の賃貸:物件詳細
交通 所在地 |
駅徒歩 |
賃料 管理費等 |
敷金/保証金 礼金 |
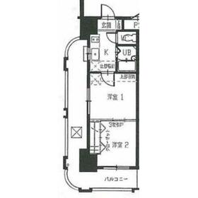
間取り 面積 |
物件種目 築年月 |
|
JR鹿児島本線/博多
福岡県福岡市博多区博多駅前1丁目
|
6分
|
5.3万円
4,000円
|
なし / なし
1ヶ月
|
2K
23.72m²
|
賃貸マンション
2003年4月(築22年9ヶ月)
|
デザイナーズ、常時ゴミ出し可能、角部屋、24時間セキュリティー、24時間換気システム、オール電化、IT重説対応物件
|
|
間取図
|
外観
|
<
その他の画像
>
|
| 交通 | JR鹿児島本線 博多駅 徒歩6分 |
|---|
| その他の交通 | 地下鉄空港線 祇園駅 徒歩10分 地下鉄七隈線 櫛田神社前駅 徒歩15分 |
| 所在地 |
福岡県福岡市博多区博多駅前1丁目
|
| 物件種目 |
賃貸マンション |
| 賃料 |
5.3万円 |
管理費等 |
4,000円 |
| 敷金 / 保証金 |
なし / なし |
礼金 |
1ヶ月 |
| 敷引 |
- |
保証金償却 |
- |
| その他一時金 |
入居者の会:15,000円、鍵交換代等:33,000円~ |
保険等 |
要 |
| 維持費等 |
水道基本料(5,000?を超えると¥550+税/1:3,388円/月、給湯基本料(給湯使用料:¥315+税/100?):4,235円/月、ごみ処理費:550円/月、事務手数料:770円/月 |
クレジットカード決済 |
初期費用可 |
| 間取り |
2K |
専有面積 |
23.72m² |
| 築年月 |
2003年4月(築22年9ヶ月)
|
階建 / 階 |
15階建 / 13階 |
| 建物構造 |
SRC |
総戸数 |
- |
| 主要採光面 |
|
駐車場 |
有 22,000円/月 |
| バイク置き場 |
有 |
駐輪場 |
有 |
| 建物名・部屋番号 |
No.40 PROJECT2100 博多駅前 1301 |
ペット |
-
|
| リフォーム履歴 |
- |
| リノベーション履歴 |
- |
| 備考 |
賃貸保証等:加入要(全保連 月額賃料の80%(更新料無し) or 月額賃料の50%(更新料\10,000/年) or 学生プラン 月額賃料の30%(更新料無し))
管理形態/管理員の勤務形態:-/巡回
IT重説対応物件、管理人巡回
福岡市博多区エリアでの住まいなら、住み心地も快適な「No.40 PROJECT2100 博多駅前」はいかがでしょうか。西日本シティ銀行 福岡支店が歩いて500mのところにあります。福岡市博多区や鹿児島本線博多付近で気になるお部屋を見つけたら、当社へお気軽にお問い合せください。素敵なお部屋探しを全力でお手伝いいたします。
<自転車>¥1,100/月※契約時:駐輪ステッカー代¥550(駐輪カード代¥2,200)
<バイク>~50cc¥3,300/月、51~125cc¥4,400/月、126~250cc¥5,500/月、251~400cc¥6,600/月、401cc~¥8,800/月※契約時:駐輪ステッカー代¥550、ICカード¥2,200(敷金1ヶ月)
|
| エネルギー消費性能 |
- |
| 断熱性能 |
- |
| 目安光熱費 |
- |
| バス・トイレ |
バス・トイレ別、シャワー、温水洗浄便座、トイレ |
| キッチン |
システムキッチン、IHクッキングヒーター |
| セキュリティー |
モニター付オートロック、オートロック、モニター付インターホン、防犯カメラ |
| 収納 |
全居室収納、収納スペース、クローゼット、シューズボックス |
| 設備・サービス |
室内洗濯機置場、洗濯機置場、給湯、全居室フローリング、フローリング、エアコン、冷房、間接照明、照明器具 |
| TV・通信 |
インターネット対応、CATVインターネット、ケーブルTV、CS、BS端子 |
| その他 |
宅配BOX、バイク置き場、バルコニー、駐輪場、エレベーター |
| 契約期間 |
2年 |
現況 |
空家 |
| 条件等 |
- |
入居可能時期 |
相談 |
| 更新料 |
旧賃料 0.5ヶ月 |
物件番号 |
1141321619 |
| 情報公開日 |
2025年12月23日 |
次回更新予定日 |
2026年1月6日 |
| ケータイ用バーコード |
- スマートフォンでこの物件を見る
- スマートフォンからもこの物件をご覧になれます。
|
※「-」と表示されている項目については、情報提供会社にご確認ください。
| 周辺施設 |
マックスバリュエクスプレス博多祇園店 |
| 距離 |
1000m |
写真を見る |
| 周辺施設 |
キャナルシティ博多 |
| 距離 |
1000m |
写真を見る |
| 周辺施設 |
西日本シティ銀行 福岡支店 |
| 距離 |
500m |
写真を見る |
| 周辺施設 |
JR博多シティ |
| 距離 |
400m |
写真を見る |
ここから簡単にお問い合わせをすることができます。
(SSLでの暗号化での送信を希望されるお客さまは
こちら
よりお問い合わせください)
お問い合わせを行う前に
「個人情報の取り扱いについて」を必ずお読みください。
「個人情報の取り扱いについて」に同意いただいた場合は「上記にご同意の上 確認画面へ進む」のボタンをクリックしてください。
個人情報の取り扱いについて
皆さまが送付された個人情報はアットホーム(株)のサーバを経由し、お問い合わせ先の不動産会社にメールまたはFAXにて転送されるためアットホーム(株)にも保管されます。アットホーム(株)で保管された個人情報の取り扱いについては、【こちら】をご覧ください。
また、本画面でご記入いただいた個人情報は、お問い合わせ先の不動産会社でも保管します。 お問い合わせ先の不動産会社が保管する個人情報の取り扱いについては、不動産会社に直接お問い合わせください。
(株)HALE HALE不動産福岡県知事免許(2)第19424号 |
|---|
- 交通:
- 西鉄天神大牟田線/西鉄福岡(天神)駅 徒歩2分
- 福岡県福岡市中央区天神2丁目4ー12
- TEL:
- 092-738-8688
- 所属団体:
- (公社)福岡県宅地建物取引業協会会員(一社)九州不動産公正取引協議会加盟
取引態様:仲介 |
- 提携サイト等より掲載されている物件情報につきましては、不動産会社詳細情報にリンクされていないものがあります。
- 物件に関するお問合せは、物件詳細ページの「情報提供会社」に表示されている不動産会社へ直接お願いいたします。
- 間取図は、現況を優先させていただきます。
- 映像は物件の一部を撮影したものです。物件の契約にあたっての最終判断はご自身の判断に基づいて行ってください。
- 仲介手数料について

アットホームは物件情報の適正化に努めております。
内容に誤りがある場合にはこちらへご連絡ください。