東京都荒川区東日暮里2丁目(三ノ輪駅)の賃貸:物件詳細
交通 所在地 |
駅徒歩 |
賃料 管理費等 |
敷金/保証金 礼金 |
間取り 面積 |
物件種目 築年月 |
|
東京メトロ日比谷線/三ノ輪
東京都荒川区東日暮里2丁目
|
9分
|
22万円
20,000円
|
22万円 / なし
なし
|
3LDK
50.16m²
|
賃貸マンション
2025年7月
|
最上階、IT重説対応物件
|
| 交通 | 東京メトロ日比谷線 三ノ輪駅 徒歩9分 |
|---|
| その他の交通 | JR常磐線 三河島駅 徒歩12分 |
| 所在地 |
東京都荒川区東日暮里2丁目
|
| 物件種目 |
賃貸マンション |
| 賃料 |
22万円 |
管理費等 |
20,000円 |
| 敷金 / 保証金 |
22万円 / なし |
礼金 |
なし |
| 敷引 |
- |
保証金償却 |
- |
| その他一時金 |
(退去時)清掃費:52,800円、(退去時)エアコン清掃費:33,000円 |
保険等 |
要 2年 16,550円 |
| 維持費等 |
町内会費:200円/月 |
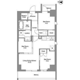
| 間取り |
3LDK(LDK10 洋室4.3 洋室2.6 洋室4.5) |
専有面積 |
50.16m² |
| 築年月 |
2025年7月
|
階建 / 階 |
10階建 / 10階 |
| 建物構造 |
RC |
総戸数 |
36戸 |
| 主要採光面 |
|
駐車場 |
無 |
| バイク置き場 |
- |
駐輪場 |
有 無料 |
| 建物名・部屋番号 |
BPRレジデンス東日暮里 |
ペット |
-
|
| アピールポイント |
東京都台東区・足立区・荒川区・北区周辺、JR山手線・常磐線・日暮里舎人ライナー沿線の賃貸物件のご紹介はミニミニ日暮里店にお任せください!【お部屋探しはミニミニ日暮里店で】初期費用のお見積りもお気軽にご相談ください。
|
| リフォーム履歴 |
- |
| リノベーション履歴 |
- |
| 備考 |
賃貸保証等:加入要(エポスカード 家賃保証会社 初回保証料50% 毎月賃料等請求金額の合計1%)
管理形態/管理員の勤務形態:-/-
IT重説対応物件
|
| エネルギー消費性能 |
- |
| 断熱性能 |
- |
| 目安光熱費 |
- |
| バス・トイレ |
バス・トイレ別、浴室乾燥機、追焚機能、温水洗浄便座 |
| キッチン |
システムキッチン |
| セキュリティー |
オートロック、モニター付インターホン、防犯カメラ |
| 収納 |
- |
| 設備・サービス |
室内洗濯機置場、エアコン |
| TV・通信 |
CS、BS端子 |
| その他 |
宅配BOX、駐輪場 |
| 契約期間 |
2年 |
現況 |
空家 |
| 条件等 |
- |
入居可能時期 |
即時 |
| 更新料 |
新賃料 1ヶ月 |
物件番号 |
1141811908 |
| 情報公開日 |
2025年10月14日 |
次回更新予定日 |
2025年12月8日 |
| ケータイ用バーコード |
- スマートフォンでこの物件を見る
- スマートフォンからもこの物件をご覧になれます。
|
※「-」と表示されている項目については、情報提供会社にご確認ください。
| 周辺施設 |
社会福祉法人上宮会日暮里上宮病院 |
| 距離 |
181m |
| 周辺施設 |
新鮮大売ユータカラヤ日暮里店 |
| 距離 |
246m |
| 周辺施設 |
セブンイレブン荒川東日暮里1丁目店 |
| 距離 |
265m |
ここから簡単にお問い合わせをすることができます。
(SSLでの暗号化での送信を希望されるお客さまは
こちら
よりお問い合わせください)
お問い合わせを行う前に
「個人情報の取り扱いについて」を必ずお読みください。
「個人情報の取り扱いについて」に同意いただいた場合は「上記にご同意の上 確認画面へ進む」のボタンをクリックしてください。
個人情報の取り扱いについて
皆さまが送付された個人情報はアットホーム(株)のサーバを経由し、お問い合わせ先の不動産会社にメールまたはFAXにて転送されるためアットホーム(株)にも保管されます。アットホーム(株)で保管された個人情報の取り扱いについては、【こちら】をご覧ください。
また、本画面でご記入いただいた個人情報は、お問い合わせ先の不動産会社でも保管します。 お問い合わせ先の不動産会社が保管する個人情報の取り扱いについては、不動産会社に直接お問い合わせください。
国土交通大臣免許(5)第6346号 |
|---|
- 交通:
- JR山手線/日暮里駅 徒歩2分
- 東京都荒川区東日暮里6丁目60-10 日暮里駅前中央ビル1F、2F
- TEL:
- 03-3802-1132
- FAX:
- 03-3802-5532
取引態様:仲介  - 00784027
|
- スマートフォンで
この不動産会社を見る

|
- 提携サイト等より掲載されている物件情報につきましては、不動産会社詳細情報にリンクされていないものがあります。
- 物件に関するお問合せは、物件詳細ページの「情報提供会社」に表示されている不動産会社へ直接お願いいたします。
- 間取図は、現況を優先させていただきます。
- 映像は物件の一部を撮影したものです。物件の契約にあたっての最終判断はご自身の判断に基づいて行ってください。
- 仲介手数料について

アットホームは物件情報の適正化に努めております。
内容に誤りがある場合にはこちらへご連絡ください。