愛知県名古屋市中村区太閤通7丁目(中村公園駅)の賃貸:物件詳細
交通 所在地 |
駅徒歩 |
賃料 管理費等 |
敷金/保証金 礼金 |
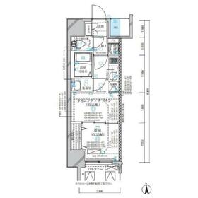
間取り 面積 |
物件種目 築年月 |
名古屋市東山線/中村公園
愛知県名古屋市中村区太閤通7丁目
|
7分
|
6.6万円
8,000円
|
なし / なし
なし
|
1DK
25.20m²
|
賃貸マンション
2025年5月
|
常時ゴミ出し可能、角部屋、南向き、IT重説対応物件
|
間取図
|
外観
|
<
その他の画像
>
|
交通 | 名古屋市東山線 中村公園駅 徒歩7分 |
---|
その他の交通 | 名古屋市東山線 中村日赤駅 徒歩8分 名古屋市桜通線 太閤通駅 徒歩14分 |
所在地 |
愛知県名古屋市中村区太閤通7丁目
|
物件種目 |
賃貸マンション |
賃料 |
6.6万円 |
管理費等 |
8,000円 |
敷金 / 保証金 |
なし / なし |
礼金 |
なし |
敷引 |
- |
保証金償却 |
- |
その他一時金 |
ハウスクリーニング代:60,500円、くらしーど24(緊急対応サービス):16,500円、消毒料:17,600円、ファイテック消火剤:4,800円、防災セット:14,400円 |
保険等 |
要 2年 18,000円 |
維持費等 |
- |
間取り |
1DK |
専有面積 |
25.20m² |
築年月 |
2025年5月
|
階建 / 階 |
15階建 / 10階 |
建物構造 |
RC |
総戸数 |
70戸 |
主要採光面 |
南 |
駐車場 |
無 |
バイク置き場 |
- |
駐輪場 |
- |
建物名・部屋番号 |
ディアレイシャス名古屋中村公園 1001 |
ペット |
-
|
リフォーム履歴 |
- |
リノベーション履歴 |
- |
備考 |
賃貸保証等:加入要(エポスROOMID 家賃保証会社 初回保証料40% 毎月賃料等請求金額の合計1%)
管理形態/管理員の勤務形態:-/-
IT重説対応物件
★お部屋探しはミニミニへお任せ下さい!取扱い物件多数!【2025年5月完成の新築物件】ペット(小型犬・猫)1匹まで飼育可能。ペット飼育の場合敷金2ヶ月(100%償却)有へ条件変更あります。
|
エネルギー消費性能 |
- |
断熱性能 |
- |
目安光熱費 |
- |
バス・トイレ |
バス・トイレ別、浴室乾燥機、シャワー付洗面化粧台、洗面所独立、洗面所、シャワー、温水洗浄便座、トイレ |
キッチン |
システムキッチン、2口コンロ |
セキュリティー |
モニター付オートロック、オートロック |
収納 |
クローゼット、シューズボックス |
設備・サービス |
室内洗濯機置場、都市ガス給湯、給湯、都市ガス、エアコン |
TV・通信 |
インターネット使用料無料、CS、BS端子 |
その他 |
宅配BOX、バルコニー、エレベーター |
契約期間 |
2年 |
現況 |
空家 |
条件等 |
- |
入居可能時期 |
即時 |
更新料 |
新賃料 1ヶ月 |
物件番号 |
1141820608 |
情報公開日 |
2025年6月9日 |
次回更新予定日 |
2025年10月25日 |
ケータイ用バーコード |
- スマートフォンでこの物件を見る
- スマートフォンからもこの物件をご覧になれます。
|
※「-」と表示されている項目については、情報提供会社にご確認ください。
周辺施設 |
セブンイレブン名古屋太閤通6丁目店 |
距離 |
316m |
周辺施設 |
ガスト太閤通店(から好し取扱店) |
距離 |
223m |
ここから簡単にお問い合わせをすることができます。
(SSLでの暗号化での送信を希望されるお客さまは
こちら
よりお問い合わせください)
お問い合わせを行う前に
「個人情報の取り扱いについて」を必ずお読みください。
「個人情報の取り扱いについて」に同意いただいた場合は「上記にご同意の上 確認画面へ進む」のボタンをクリックしてください。
個人情報の取り扱いについて
皆さまが送付された個人情報はアットホーム(株)のサーバを経由し、お問い合わせ先の不動産会社にメールまたはFAXにて転送されるためアットホーム(株)にも保管されます。アットホーム(株)で保管された個人情報の取り扱いについては、【こちら】をご覧ください。
また、本画面でご記入いただいた個人情報は、お問い合わせ先の不動産会社でも保管します。 お問い合わせ先の不動産会社が保管する個人情報の取り扱いについては、不動産会社に直接お問い合わせください。
国土交通大臣免許(6)第5631号 |
---|
- 交通:
- 名古屋市東山線/中村公園駅 徒歩1分
- 愛知県名古屋市中村区豊国通1丁目20 サンセブン1F
- TEL:
- 052-419-3202
- FAX:
- 052-412-3201
- 所属団体:
- 所属団体未加入会員
取引態様:仲介  - 40411790
|
- スマートフォンで
この不動産会社を見る

|
- 提携サイト等より掲載されている物件情報につきましては、不動産会社詳細情報にリンクされていないものがあります。
- 物件に関するお問合せは、物件詳細ページの「情報提供会社」に表示されている不動産会社へ直接お願いいたします。
- 間取図は、現況を優先させていただきます。
- 映像は物件の一部を撮影したものです。物件の契約にあたっての最終判断はご自身の判断に基づいて行ってください。
- 仲介手数料について

アットホームは物件情報の適正化に努めております。
内容に誤りがある場合にはこちらへご連絡ください。