大阪府大阪市城東区野江2丁目(京橋駅)の賃貸:物件詳細
交通 所在地 |
駅徒歩 |
賃料 管理費等 |
敷金/保証金 礼金 |
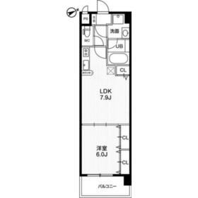
間取り 面積 |
物件種目 築年月 |
|
JR大阪環状線/京橋
大阪府大阪市城東区野江2丁目
|
10分
|
7.7万円
10,000円
|
なし / なし
8.6万円
|
1LDK
31.61m²
|
賃貸マンション
2006年8月(築19年8ヶ月)
|
ペット相談、デザイナーズ、常時ゴミ出し可能、二人入居可、24時間換気システム、閑静な住宅街、IT重説対応物件、保証人不要
|
|
間取図
|
外観
|
<
その他の画像
>
|
| 交通 | JR大阪環状線 京橋駅 徒歩10分 |
|---|
| その他の交通 | 京阪本線 京橋駅 徒歩10分 地下鉄谷町線 野江内代駅 徒歩7分 |
| 所在地 |
大阪府大阪市城東区野江2丁目
|
| 物件種目 |
賃貸マンション |
| 賃料 |
7.7万円 |
管理費等 |
10,000円 |
| 敷金 / 保証金 |
なし / なし |
礼金 |
8.6万円 |
| 敷引 |
- |
保証金償却 |
- |
| その他一時金 |
室内消毒費:22,000円、Goodプレミアムα登録料:3,300円、24時間管理費:16,500円、鍵交換代等:33,000円~ |
保険等 |
要 2年 20,000円 |
| 維持費等 |
水道料:2,750円/月 |
| 間取り |
1LDK(LDK7.9・洋室6) |
専有面積 |
31.61m² |
| 築年月 |
2006年8月(築19年8ヶ月)
|
階建 / 階 |
9階建 / 5階 |
| 建物構造 |
RC |
総戸数 |
- |
| 主要採光面 |
南東 |
駐車場 |
有 22,000円/月 |
| バイク置き場 |
有 4,400円/月 |
駐輪場 |
有 550円/月 |
| 建物名・部屋番号 |
アーバンフラッツ城東 |
ペット |
小型犬可・ 猫可 |
| アピールポイント |
何社も行かなくて大丈夫です!
当店ではお取扱いできないお部屋はありません☆
どのサイトのどの物件でもOK♪
ブックマークに入れてお持ちください!
まとめて一度にご案内★
LINEもOK!!
入居時期や初期費用、収入のことから連帯保証人様のことまで何でもお気軽にお問い合わせください。
分割払いも対応しています。 |
| リフォーム履歴 |
- |
| リノベーション履歴 |
- |
| 備考 |
賃貸保証等:加入要(初回契約時:60%、月額:1.5%)
管理形態/管理員の勤務形態:-/巡回
IT重説対応物件、管理人巡回
|
| エネルギー消費性能 |
- |
| 断熱性能 |
- |
| 目安光熱費 |
- |
| バス・トイレ |
TV付浴室、バス・トイレ別、浴室乾燥機、シャワー付洗面化粧台、洗面所独立、洗面所、洗面台、シャワー、温水洗浄便座、トイレ |
| キッチン |
システムキッチン、2口コンロ、ガスコンロ付 |
| セキュリティー |
モニター付オートロック、オートロック、モニター付インターホン、ディンプルキー、防犯カメラ |
| 収納 |
全居室収納、クローゼット、シューズボックス |
| 設備・サービス |
室内洗濯機置場、洗濯機置場、給湯、全居室フローリング、フローリング、都市ガス、エアコン、照明器具 |
| TV・通信 |
インターネット対応、光ファイバー、CS、BS端子 |
| その他 |
宅配BOX、バイク置き場、バルコニー、駐輪場、エレベーター |
| 契約期間 |
2年 |
現況 |
居住中 |
| 条件等 |
- |
入居可能時期 |
相談 |
| 更新料 |
新賃料 1ヶ月 |
物件番号 |
1141982620 |
| 情報公開日 |
2026年3月19日 |
次回更新予定日 |
2026年4月5日 |
| ケータイ用バーコード |
- スマートフォンでこの物件を見る
- スマートフォンからもこの物件をご覧になれます。
|
※「-」と表示されている項目については、情報提供会社にご確認ください。
| 周辺施設 |
スーパーサンコー京橋店 |
| 距離 |
546m |
写真を見る |
| 周辺施設 |
ファミリーマート城東えなみ店 |
| 距離 |
252m |
写真を見る |
| 周辺施設 |
ドン・キホーテ京橋店 |
| 距離 |
967m |
写真を見る |
| 周辺施設 |
ドラッグセガミ野江店 |
| 距離 |
561m |
写真を見る |
| 周辺施設 |
阪急オアシス野江店 |
| 距離 |
561m |
写真を見る |
| 周辺施設 |
ローソン都島中通三丁目店 |
| 距離 |
463m |
写真を見る |
ここから簡単にお問い合わせをすることができます。
(SSLでの暗号化での送信を希望されるお客さまは
こちら
よりお問い合わせください)
お問い合わせを行う前に
「個人情報の取り扱いについて」を必ずお読みください。
「個人情報の取り扱いについて」に同意いただいた場合は「上記にご同意の上 確認画面へ進む」のボタンをクリックしてください。
個人情報の取り扱いについて
皆さまが送付された個人情報はアットホーム(株)のサーバを経由し、お問い合わせ先の不動産会社にメールまたはFAXにて転送されるためアットホーム(株)にも保管されます。アットホーム(株)で保管された個人情報の取り扱いについては、【こちら】をご覧ください。
また、本画面でご記入いただいた個人情報は、お問い合わせ先の不動産会社でも保管します。 お問い合わせ先の不動産会社が保管する個人情報の取り扱いについては、不動産会社に直接お問い合わせください。
大阪府知事免許(2)第60273号 |
|---|
- 交通:
- 地下鉄御堂筋線/淀屋橋駅 徒歩4分
- 大阪府大阪市中央区平野町3丁目1-9 クラオビル1階
- TEL:
- 06-4256-3484
- FAX:
- 06-4256-3485
- 所属団体:
- (一社)大阪府宅地建物取引業協会会員(公社)近畿地区不動産公正取引協議会加盟
取引態様:仲介  - 50108821
|
- スマートフォンで
この不動産会社を見る

|
- 提携サイト等より掲載されている物件情報につきましては、不動産会社詳細情報にリンクされていないものがあります。
- 物件に関するお問合せは、物件詳細ページの「情報提供会社」に表示されている不動産会社へ直接お願いいたします。
- 間取図は、現況を優先させていただきます。
- 映像は物件の一部を撮影したものです。物件の契約にあたっての最終判断はご自身の判断に基づいて行ってください。
- 仲介手数料について

アットホームは物件情報の適正化に努めております。
内容に誤りがある場合にはこちらへご連絡ください。