東京都北区神谷1丁目(王子神谷駅)の賃貸:物件詳細
交通 所在地 |
駅徒歩 |
賃料 管理費等 |
敷金/保証金 礼金 |
間取り 面積 |
物件種目 築年月 |
|
東京メトロ南北線/王子神谷
東京都北区神谷1丁目
|
2分
|
10.6万円
4,500円
|
1ヶ月 / なし
1ヶ月
|
1K
25.61m²
|
賃貸マンション
2010年2月(築16年2ヶ月)
|
楽器相談、閑静な住宅街、IT重説対応物件、保証人不要
|
|
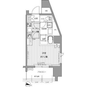
間取図
|
外観
|
<
その他の画像
>
|
| 交通 | 東京メトロ南北線 王子神谷駅 徒歩2分 |
|---|
| その他の交通 | JR京浜東北線 東十条駅 徒歩12分 JR埼京線 十条駅 徒歩18分 |
| 所在地 |
東京都北区神谷1丁目
|
| 物件種目 |
賃貸マンション |
| 賃料 |
10.6万円 |
管理費等 |
4,500円 |
| 敷金 / 保証金 |
1ヶ月 / なし |
礼金 |
1ヶ月 |
| 敷引 |
- |
保証金償却 |
- |
| その他一時金 |
退去時ハウスクリーニング:44,000円、鍵交換代等:22,000円~ |
保険等 |
要 |
| 維持費等 |
- |
| 間取り |
1K(洋室7.2・K1.9) |
専有面積 |
25.61m² |
| 築年月 |
2010年2月(築16年2ヶ月)
|
階建 / 階 |
14階建 / 5階 |
| 建物構造 |
RC |
総戸数 |
- |
| 主要採光面 |
北東 |
駐車場 |
無 |
| バイク置き場 |
有 |
駐輪場 |
有 |
| 建物名・部屋番号 |
センテニアル王子神谷 |
ペット |
-
|
| アピールポイント |
東京メトロ南北線【王子神谷】駅から徒歩2分の好立地★ |
| リフォーム履歴 |
- |
| リノベーション履歴 |
- |
| 備考 |
賃貸保証等:加入要(初回契約時:40%、更新時:1%、月額:1%)
管理形態/管理員の勤務形態:-/日勤
IT重説対応物件、管理人日勤
内覧予約随時受付中☆ お問い合わせは日商ベックス 代々木店へ♪ 何かお困りな事などありましたらお気軽にご相談ください☆ ご要望にぴったりなお部屋を、一緒にお探しします♪
|
| エネルギー消費性能 |
- |
| 断熱性能 |
- |
| 目安光熱費 |
- |
| バス・トイレ |
バス・トイレ別、浴室乾燥機、洗面所独立、洗面所、洗面台、シャワー、温水洗浄便座、トイレ |
| キッチン |
システムキッチン、2口コンロ、ガスコンロ付 |
| セキュリティー |
オートロック、モニター付インターホン、防犯カメラ、火災警報器(報知機) |
| 収納 |
収納スペース、クローゼット、シューズボックス |
| 設備・サービス |
室内洗濯機置場、洗濯機置場、全居室フローリング、フローリング、都市ガス、エアコン |
| TV・通信 |
光ファイバー、CATVインターネット、ケーブルTV、CS、BS端子 |
| その他 |
宅配BOX、バイク置き場、エレベーター2基以上、バルコニー、駐輪場、エレベーター |
| 契約期間 |
2年 |
現況 |
空家 |
| 条件等 |
- |
入居可能時期 |
相談 |
| 仲介手数料 |
1.1ヶ月 |
|
|
| 更新料 |
新賃料 1ヶ月 |
物件番号 |
1142043620 |
| 情報公開日 |
2026年3月19日 |
次回更新予定日 |
2026年4月2日 |
| ケータイ用バーコード |
- スマートフォンでこの物件を見る
- スマートフォンからもこの物件をご覧になれます。
|
※「-」と表示されている項目については、情報提供会社にご確認ください。
| 周辺施設 |
ユニクロ王子神谷店 |
| 距離 |
473m |
写真を見る |
| 周辺施設 |
コモディイイダ東十条店 |
| 距離 |
400m |
写真を見る |
| 周辺施設 |
ローソンストア100北区神谷1丁目店 |
| 距離 |
215m |
写真を見る |
| 周辺施設 |
ニトリ赤羽店 |
| 距離 |
707m |
写真を見る |
| 周辺施設 |
ゲオ文教堂王子神谷店 |
| 距離 |
297m |
写真を見る |
| 周辺施設 |
ほっともっと王子神谷店 |
| 距離 |
149m |
写真を見る |
ここから簡単にお問い合わせをすることができます。
(SSLでの暗号化での送信を希望されるお客さまは
こちら
よりお問い合わせください)
お問い合わせを行う前に
「個人情報の取り扱いについて」を必ずお読みください。
「個人情報の取り扱いについて」に同意いただいた場合は「上記にご同意の上 確認画面へ進む」のボタンをクリックしてください。
個人情報の取り扱いについて
皆さまが送付された個人情報はアットホーム(株)のサーバを経由し、お問い合わせ先の不動産会社にメールまたはFAXにて転送されるためアットホーム(株)にも保管されます。アットホーム(株)で保管された個人情報の取り扱いについては、【こちら】をご覧ください。
また、本画面でご記入いただいた個人情報は、お問い合わせ先の不動産会社でも保管します。 お問い合わせ先の不動産会社が保管する個人情報の取り扱いについては、不動産会社に直接お問い合わせください。
国土交通大臣免許(10)第3273号 |
|---|
- 交通:
- JR山手線/上野駅 徒歩6分
- 東京都台東区上野2丁目7-13 THE PARK 4F
- TEL:
- 03-5816-0321
- 所属団体:
- (一社)全国住宅産業協会会員(公社)首都圏不動産公正取引協議会加盟
取引態様:仲介  - 00421999
|
- スマートフォンで
この不動産会社を見る

|
- 提携サイト等より掲載されている物件情報につきましては、不動産会社詳細情報にリンクされていないものがあります。
- 物件に関するお問合せは、物件詳細ページの「情報提供会社」に表示されている不動産会社へ直接お願いいたします。
- 間取図は、現況を優先させていただきます。
- 映像は物件の一部を撮影したものです。物件の契約にあたっての最終判断はご自身の判断に基づいて行ってください。
- 仲介手数料について

アットホームは物件情報の適正化に努めております。
内容に誤りがある場合にはこちらへご連絡ください。