東京都渋谷区代々木3丁目(代々木駅)の賃貸:物件詳細
交通 所在地 |
駅徒歩 |
賃料 管理費等 |
敷金/保証金 礼金 |
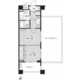
間取り 面積 |
物件種目 築年月 |
|
JR山手線/代々木
東京都渋谷区代々木3丁目
|
12分
|
16.4万円
6,000円
|
1ヶ月 / なし
1ヶ月
|
1DK
34.02m²
|
賃貸マンション
2006年1月(築19年11ヶ月)
|
楽器相談、常時ゴミ出し可能、角部屋
|
|
間取図
|
外観
|
その他の画像
|
| 交通 | JR山手線 代々木駅 徒歩12分 |
|---|
| その他の交通 | 小田急小田原線 参宮橋駅 徒歩5分 京王線 初台駅 徒歩9分 |
| 所在地 |
東京都渋谷区代々木3丁目
|
| 物件種目 |
賃貸マンション |
| 賃料 |
16.4万円 |
管理費等 |
6,000円 |
| 敷金 / 保証金 |
1ヶ月 / なし |
礼金 |
1ヶ月 |
| 敷引 |
- |
保証金償却 |
- |
| その他一時金 |
なし、鍵交換代等:22,000円~ |
保険等 |
要 2年 18,000円 |
| 維持費等 |
- |
| 間取り |
1DK |
専有面積 |
34.02m² |
| 築年月 |
2006年1月(築19年11ヶ月)
|
階建 / 階 |
15階建 / 5階 |
| 建物構造 |
RC |
総戸数 |
- |
| 主要採光面 |
南東 |
駐車場 |
- |
| バイク置き場 |
- |
駐輪場 |
- |
| 建物名・部屋番号 |
グランハイツ代々木 509 |
ペット |
-
|
| リフォーム履歴 |
- |
| リノベーション履歴 |
- |
| 備考 |
管理形態/管理員の勤務形態:-/-
生乾きの洗濯物を乾かしたい時にも役立つ、お風呂場でサッと乾燥できる浴室乾燥機があります。セキュリティ面は、オートロック・TVインターホンなど充実しているので安心して生活できます。共用部にはゴミ出し24時間OK・宅配ボックスなどが揃っております。こちらのマンションは追い焚き機能の付いた浴室になります。こちらはマンションタイプになります。システムキッチンを採用しているので、シンク下のスペースをより無駄なく有効活用できます。現在空家の物件です。アンテナ設置済みのBS対応物件なので、設置工事も不要です。駅まで徒歩12分と、立地が魅力的な物件です。ゴミ出しを楽にするために、遠くまで行かずに済むゴミ置き場を共用部に設置しています。
|
| エネルギー消費性能 |
- |
| 断熱性能 |
- |
| 目安光熱費 |
- |
| バス・トイレ |
バス・トイレ別、浴室乾燥機、追焚機能、洗面台、温水洗浄便座、トイレ |
| キッチン |
システムキッチン、ガスコンロ可 |
| セキュリティー |
モニター付オートロック、オートロック、モニター付インターホン、ディンプルキー |
| 収納 |
- |
| 設備・サービス |
室内洗濯機置場、洗濯機置場、給湯、フローリング、エアコン |
| TV・通信 |
インターネット対応、CS、BS端子 |
| その他 |
宅配BOX、ルーフバルコニー、二面バルコニー、バルコニー、エレベーター |
| 契約期間 |
2年 |
現況 |
空家 |
| 条件等 |
- |
入居可能時期 |
即時 |
| 更新料 |
新賃料 1ヶ月 |
物件番号 |
1142361115 |
| 情報公開日 |
2025年11月7日 |
次回更新予定日 |
2025年11月21日 |
| ケータイ用バーコード |
- スマートフォンでこの物件を見る
- スマートフォンからもこの物件をご覧になれます。
|
※「-」と表示されている項目については、情報提供会社にご確認ください。
| 周辺施設 |
まいばすけっと 代々木4丁目店 |
| 距離 |
476m |
写真を見る |
ここから簡単にお問い合わせをすることができます。
(SSLでの暗号化での送信を希望されるお客さまは
こちら
よりお問い合わせください)
お問い合わせを行う前に
「個人情報の取り扱いについて」を必ずお読みください。
「個人情報の取り扱いについて」に同意いただいた場合は「上記にご同意の上 確認画面へ進む」のボタンをクリックしてください。
個人情報の取り扱いについて
皆さまが送付された個人情報はアットホーム(株)のサーバを経由し、お問い合わせ先の不動産会社にメールまたはFAXにて転送されるためアットホーム(株)にも保管されます。アットホーム(株)で保管された個人情報の取り扱いについては、【こちら】をご覧ください。
また、本画面でご記入いただいた個人情報は、お問い合わせ先の不動産会社でも保管します。 お問い合わせ先の不動産会社が保管する個人情報の取り扱いについては、不動産会社に直接お問い合わせください。
東京都知事免許(1)第109214号 |
|---|
- 交通:
- JR山手線/新宿駅 徒歩7分
- 東京都新宿区西新宿3丁目1-2 Ski西新宿ビル 1F
- TEL:
- 03-4500-8852
- FAX:
- 03-6388-1741
- 所属団体:
- (公社)東京都宅地建物取引業協会会員(公社)首都圏不動産公正取引協議会加盟
取引態様:仲介  - 00275101
|
- スマートフォンで
この不動産会社を見る

|
- 提携サイト等より掲載されている物件情報につきましては、不動産会社詳細情報にリンクされていないものがあります。
- 物件に関するお問合せは、物件詳細ページの「情報提供会社」に表示されている不動産会社へ直接お願いいたします。
- 間取図は、現況を優先させていただきます。
- 映像は物件の一部を撮影したものです。物件の契約にあたっての最終判断はご自身の判断に基づいて行ってください。
- 仲介手数料について

アットホームは物件情報の適正化に努めております。
内容に誤りがある場合にはこちらへご連絡ください。