東京都目黒区中根2丁目(都立大学駅)の賃貸:物件詳細
交通 所在地 |
駅徒歩 |
賃料 管理費等 |
敷金/保証金 礼金 |
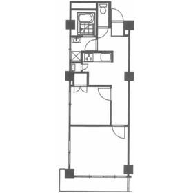
間取り 面積 |
物件種目 築年月 |
|
東急東横線/都立大学
東京都目黒区中根2丁目
|
9分
|
18万円
10,000円
|
2ヶ月 / なし
なし
|
2DK
46.01m²
|
賃貸マンション
1968年10月(築57年3ヶ月)
|
角部屋、最上階、南向き
|
|
間取図
|
外観
|
<
その他の画像
>
|
| 交通 | 東急東横線 都立大学駅 徒歩9分 |
|---|
| その他の交通 | 東急大井町線 緑が丘駅 徒歩10分 東急大井町線 大岡山駅 徒歩15分 |
| 所在地 |
東京都目黒区中根2丁目
|
| 物件種目 |
賃貸マンション |
| 賃料 |
18万円 |
管理費等 |
10,000円 |
| 敷金 / 保証金 |
2ヶ月 / なし |
礼金 |
なし |
| 敷引 |
- |
保証金償却 |
- |
| その他一時金 |
なし、鍵交換代等:49,500円~ |
保険等 |
要 2年 20,000円 |
| 維持費等 |
- |
| 間取り |
2DK |
専有面積 |
46.01m² |
| 築年月 |
1968年10月(築57年3ヶ月)
|
階建 / 階 |
7階建 / 7階 |
| 建物構造 |
RC |
総戸数 |
- |
| 主要採光面 |
南 |
駐車場 |
- |
| バイク置き場 |
- |
駐輪場 |
- |
| 建物名・部屋番号 |
秀和都立大レジデンス 705 |
ペット |
-
|
| リフォーム履歴 |
- |
| リノベーション履歴 |
- |
| 備考 |
賃貸保証等:加入要(初回月額50%・年10,000円)
管理形態/管理員の勤務形態:-/-
知らない来訪者が来てもインターホン越しに確認できるので防犯対策につながります。独立洗面台なので床が水で濡れたり鏡が曇ったりしにくく、清潔な状態を保ちやすくなっております。お住まいにネットの回線を繋げましたので暮らしに役立ちます。現在空家です。内見等お気軽にお問い合わせください。防犯対策もバッチリなマンションタイプの物件です。キッチンで作りたてのお料理を食べられる2DKの間取り。設備・環境ともに良い18万円の物件です。新社会人になる方。引越し前の頭金が抑えられる礼金不要の嬉しいマンション。抗菌性に優れていて、扱いやすい材質のシステムキッチン付き。
|
| エネルギー消費性能 |
- |
| 断熱性能 |
- |
| 目安光熱費 |
- |
| バス・トイレ |
バス・トイレ別、洗面所独立、洗面所、洗面台、シャワー、温水洗浄便座、トイレ |
| キッチン |
システムキッチン、3口以上コンロ |
| セキュリティー |
モニター付インターホン |
| 収納 |
収納スペース、シューズボックス |
| 設備・サービス |
エアコン2台以上、室内洗濯機置場、洗濯機置場、給湯、エアコン、冷房 |
| TV・通信 |
インターネット対応 |
| その他 |
バルコニー、エレベーター |
| 契約期間 |
2年 |
現況 |
空家 |
| 条件等 |
- |
入居可能時期 |
即時 |
| 更新料 |
新賃料 1ヶ月 |
物件番号 |
1142418915 |
| 情報公開日 |
2025年11月21日 |
次回更新予定日 |
2025年12月19日 |
| ケータイ用バーコード |
- スマートフォンでこの物件を見る
- スマートフォンからもこの物件をご覧になれます。
|
※「-」と表示されている項目については、情報提供会社にご確認ください。
| 周辺施設 |
ファミリーマート サンズ大岡山北口店 |
| 距離 |
948m |
写真を見る |
ここから簡単にお問い合わせをすることができます。
(SSLでの暗号化での送信を希望されるお客さまは
こちら
よりお問い合わせください)
お問い合わせを行う前に
「個人情報の取り扱いについて」を必ずお読みください。
「個人情報の取り扱いについて」に同意いただいた場合は「上記にご同意の上 確認画面へ進む」のボタンをクリックしてください。
個人情報の取り扱いについて
皆さまが送付された個人情報はアットホーム(株)のサーバを経由し、お問い合わせ先の不動産会社にメールまたはFAXにて転送されるためアットホーム(株)にも保管されます。アットホーム(株)で保管された個人情報の取り扱いについては、【こちら】をご覧ください。
また、本画面でご記入いただいた個人情報は、お問い合わせ先の不動産会社でも保管します。 お問い合わせ先の不動産会社が保管する個人情報の取り扱いについては、不動産会社に直接お問い合わせください。
東京都知事免許(1)第109214号 |
|---|
- 交通:
- 東急目黒線/武蔵小山駅 徒歩5分
- 東京都目黒区目黒本町3丁目1-2 ビビアンビル1階
- TEL:
- 03-6712-2898
- FAX:
- 03-6712-2897
- 所属団体:
- (公社)東京都宅地建物取引業協会会員(公社)首都圏不動産公正取引協議会加盟
取引態様:仲介  - 00277822
|
- スマートフォンで
この不動産会社を見る

|
- 提携サイト等より掲載されている物件情報につきましては、不動産会社詳細情報にリンクされていないものがあります。
- 物件に関するお問合せは、物件詳細ページの「情報提供会社」に表示されている不動産会社へ直接お願いいたします。
- 間取図は、現況を優先させていただきます。
- 映像は物件の一部を撮影したものです。物件の契約にあたっての最終判断はご自身の判断に基づいて行ってください。
- 仲介手数料について

アットホームは物件情報の適正化に努めております。
内容に誤りがある場合にはこちらへご連絡ください。